查看完整案例

收藏

下载
Pratt Institute Residence Hall : Void Tower
Cannon Design in Collaboration with HMA
Void Tower
Pratt Institute Residence Hall : Emerson Hall
location:
Pratt Institute, Brooklyn, NY
client:
Pratt Institute
size:
73,000 s.f.
date:
Opened September 2021
HMA hanrahanMeyers architects
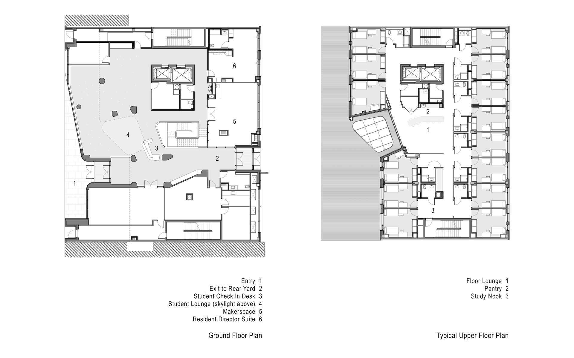
This new residence hall is designed to foster a culture of exploration and invention in its incoming first year cohort through its purposeful blending of shared and public living, learning, and making spaces. The disruption of a normative housing typology is manifested around a vertical courtyard or ‘void tower’. This distinctive exterior expression centers student community activity on each floor. The void tower is both an organizational concept for the building as well as a distinctive form that is configured in elevation to expand the dimensions of the openings to the lounges at the upper floors of the building and compress around a skylight central reception lobby.
The building is located approximately one block from the main campus gate, embedded within the Brooklyn’s Clinton Hill neighborhood. The main floors are set back from the street with the entrance through a one-story podium. Within this podium students can use the central event space for social or study activities as well as the adjacent maker spaces which include studio resources. Upper floors of the tower are composed of 14 rooms for two students each. Shared, compartmentalized bathrooms are distributed throughout the floor. The central lounge on each floor has a work counter and furniture for community use. The tower exterior is composed primarily of brick with curved stainless steel panels. These materials are intended to actively engage the historic brick campus and neighborhood while setting apart the distinctive forms of the central void and lounge spaces.
Designed as an innovative collaboration between two architecture firms and the Institute, this project presents important opportunities for the social and intellectual development of the students and promotes a culture of invention and cooperation critical to Pratt’s academic and social mission.
客服
消息
收藏
下载
最近




























