查看完整案例

收藏

下载
Projektdetail
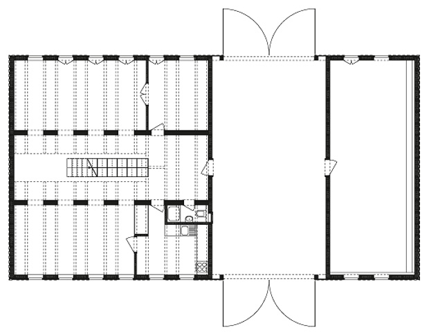
Haus SB, Paretz
Realisierung, 1998 - 2000
Neubau
Adresse:
Paretz, Brandenburg
Bauherr
: privat
Mitarbeiter
: Tobias Zepter
Leistungen
: HOAI LPH 1-9
Wohnfläche
: 270 m
2
Brandenburgischer Architekturpreis 2003
Bauen und Wohnen im Denkmal, Anerkennung
客服
消息
收藏
下载
最近
























