查看完整案例

收藏

下载
MADRILEÑO TRADITION
Client
Castizo
Location
Madrid, Spain
Category
Commercial
Dimensions
300 m2
Year
2020
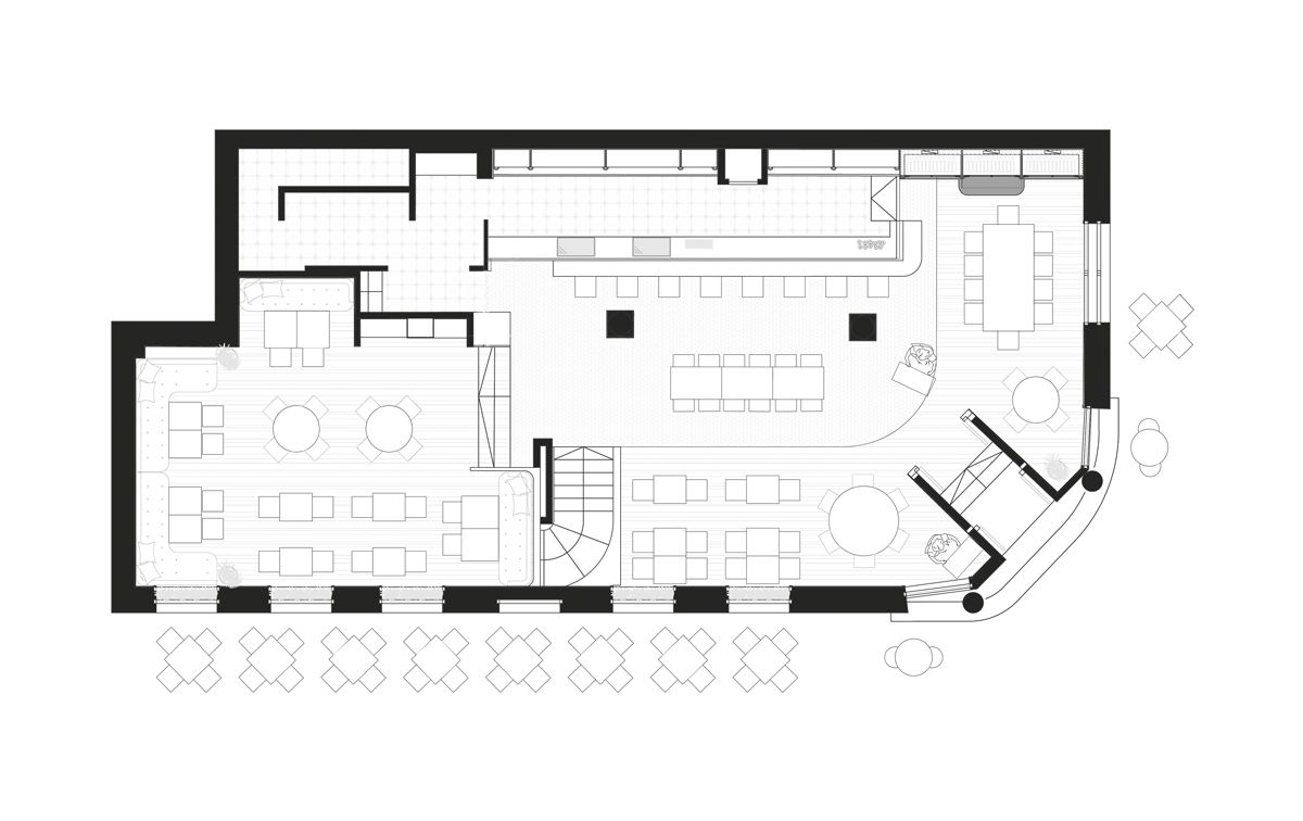
Castizo is a new take on the traditional tavern that whisks our clients back in time. An age-old concept with a fresh aesthetic where beer, vermouth and traditional cuisine remain the principal players. Natural wood, mirrors and textiles conjure up the everyday taverns typical of Madrid.
CHALLENGES
Located at one of the capital’s busiest intersections, we had to bring a degree of sophistication to the image of the traditional tavern while preserving its essential function as a daily hang-out for friends. It had to be a place capable of adapting to any time of day. It was essential to grasp this when planning the interior design. We had to incorporate classic tropes such as tiling, different woods, photos, mirrors and signs that we modernised with contemporary hues and fonts.
CHALLENGES
Located at one of the capital’s busiest intersections, we had to bring a degree of sophistication to the image of the traditional tavern while preserving its essential function as a daily hang-out for friends. It had to be a place capable of adapting to any time of day. It was essential to grasp this when planning the interior design. We had to incorporate classic tropes such as tiling, different woods, photos, mirrors and signs that we modernised with contemporary hues and fonts.
INSPIRATION
A respect for the “Madrileño” tradition was our chief inspiration and guiding principle in the design process. The open-air market stalls, bustling bars, and the custom of preparing and cooking food in front of customers, enhance the overall sense of tradition that was a cornerstone of this project. Lighting also plays a key role. Crystal lampshades recall the traditional while lending the space a sophisticated touch.
OUTCOME
Castizo is a place where hessian meets velvet, where people share tables and the bar’s wide range of gastronomy is on show. Product display and use of everyday materials, such as natural wood, tiling, mirrors and textiles, reflect our commitment to tradition and brand transparency.
客服
消息
收藏
下载
最近




















