查看完整案例

收藏

下载
No 1 Balfour Place
Residential Transformation in Mayfair
London / United Kingdom 2011
Client:
Undisclosed
Team:
Karsten Huneck, Bernd Truempler
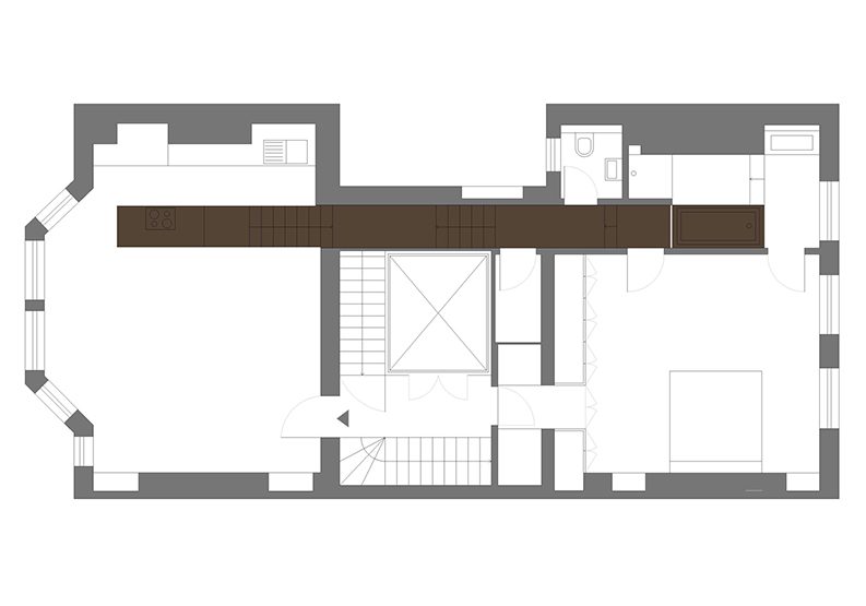
A rundown flat in prestigious Mayfair has been transformed into an inhabitable sculpture.
Formerly there were 2 separate flats which have been connected with a space defining spine.
Due to head height restrictions of the communal staircase running across this spine various steps and level changes had to be overcome.
This lead to the main concept, a meandering ribbon which becomes an inherent part of all main functions of the flat: Kitchen, Stair, Circulation and Bathroom.
Made out of precious massive walnut timber it creates a fitting character to the area and a contrasting element to the white flooring.
Photographer: Johannes Marburg
Photographer: Johannes Marburg
Photographer: Johannes Marburg
Photographer: Johannes Marburg
Photographer: Johannes Marburg
Photographer: Johannes Marburg
Photographer: Johannes Marburg
Photographer: Johannes Marburg
Photographer: Johannes Marburg
Photographer: Johannes Marburg
Photographer: Johannes Marburg
Photographer: Johannes Marburg
Photographer: Johannes Marburg
客服
消息
收藏
下载
最近
















