查看完整案例

收藏

下载
都市上空的飞行叙事与沉浸体验
在上海徐汇ITC One商城的二层,FLYBOY BARBERSHOP以飞行为主题,打造了一个融合复古工业美学与现代功能性的男士理容空间。设计师通过对飞行元素的深度解构与重组,在商业空间中创造出一段从地面到云端的完整叙事。
|项目图纸
→ 左右滑动,
查看更多
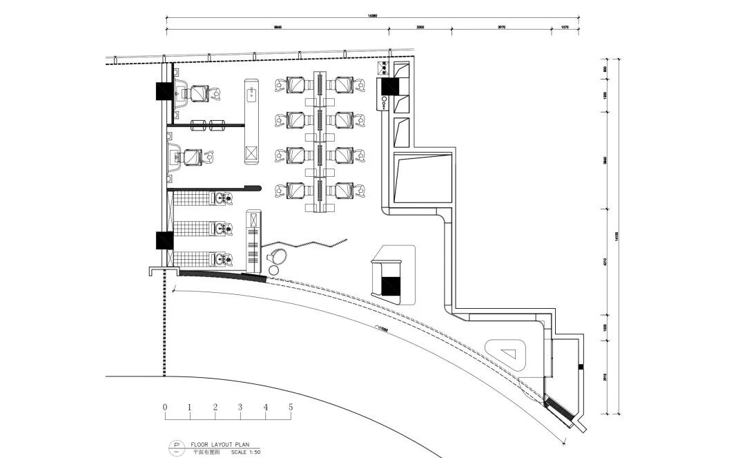
原始平面图、平面布置图
入口区:
飞行的序曲
空间的叙事,由一道精确倾斜10度的墙体徐徐展开。实墙部分覆以定制的波浪形木饰面,其富有韵律的弧线,令人联想到早期飞机的木质蒙皮结构。
墙面被一道精心设计的浅色石材边框所勾勒,连同顶部的倾斜造型,共同构成一个抽象的“机翼”形态,不仅在静态空间中注入了飞行般的动感,更为墙面中央醒目的金属LOGO提供了极具衬托性的展示背景。
与此“实”体墙面形成巧妙对比的,是全然“虚”化的敞开式产品陈列区。Flyboy自有品牌的护理系列与精选的海外男士理容产品清晰呈现,于入口处便直观地传达了空间所秉持的“服务 零售”双重属性。
入口区域的顶部,阵列排布的工业感铜质圆盘灯罩成为视觉焦点。它们如同剧场的舞台灯阵,内置的裸露灯泡投射出专注而直接的光线,精准照亮下方的产品陈列区域,有效吸引过往客人的目光,为整个序厅场景增添了戏剧性的张力。
零售区:
蜿蜒的飞行轨迹
设计师巧妙地将原本建筑结构中难以利用的锯齿形墙面转化为空间的亮点。桃木饰面包裹的墙体向内蜿蜒延伸,形成一条富有动感的陈列廊道,内嵌的银色铝制货架如同飞机内部的精密结构,将产品本身凸显为空间的主角。这个区域既解决了原始结构的缺陷,又强化了飞行主题的叙事连贯性。
一道灵感来自飞机舷窗的屏风成为空间过渡的巧妙设计。屏风以竖向条纹木饰板为基底,镶嵌着三行阵列的圆形舷窗,选用的老上海传统海棠玻璃与黄铜边框,既引入了柔和的过滤光线,又恰到好处地维护了内部空间的私密性。
理发区:
云端座舱的沉浸体验
理发区作为整个空间的核心叙事场所,将飞行主题从概念转化为可感知的沉浸体验。银色不锈钢台面以其利落的折角与精确的线条,模拟着机翼的形态与力量感。台面上线性排列的突出铆钉,既是对经典飞机结构语言的复刻,也巧妙地界定出每个理发位的独立领域。
每个座位前配备的舷窗造型理发镜,由黄铜落地灯杆稳稳支撑。灯杆顶部的横向支架悬挑而出,搭载两盏探照灯造型的专业照明灯罩,为每一次精修理容提供无眩光的精准照明。细节之处,飞行主题一以贯之:发型师手边的工具箱,其设计灵感正源自飞机上常用的金属餐车,成为兼具主题呼应与实用收纳功能的移动单元。
最为动人的,是沿窗设置的理发座位。它将徐汇街区茂盛的梧桐树冠作为动态背景,完全纳入空间的视野。随着四季更迭而不断变化的叶色与光影,为这个以金属与工业感为主导的空间,注入了自然的温度与生命力,令理发体验如同悬浮于城市上空的绿意之中。
天花设计:飞行的韵律终结
天花的设计堪称整个空间叙事的点睛之笔。一系列弧形白色构件如同悬浮的机翼,以精确的韵律贯穿主要空间。隐藏于构件上方的间接照明系统,通过洗墙效果勾勒出流畅的光影线条。
洗头室:宁静的过渡空间
洗头室区域选用米白色石材与镜面的组合,营造出明亮、洁净且宁静的氛围,与理发区的金属质感形成鲜明而舒适的对比。这个区域通过材质的转换,在功能与情绪上实现了自然的过渡,为客人提供了一段理容过程中的静谧插曲。
VIP室:专属的飞行舱
两间VIP室进一步提升了空间的层次与专属体验。木饰面与可调节的木百叶构建出沉稳而私密的基调,舷窗造型的理发镜在此扩大为舱门尺度,强化了领域的专属感。定制的不锈钢洗头盆精准嵌入镜面墙体,在复古美学与现代工艺之间取得完美平衡。
其中临窗的VIP室,室外茂盛的梧桐树叶透过木百叶的缝隙渗入室内,形成斑驳摇曳的光影效果,使自然景观成为空间不可或缺的组成部分。VIP区地面采用的专属木花砖图案,与其他区域形成微妙而精致的区分,进一步强调了空间的尊贵属性。
特别值得一提的是圆形藻井内安置的木叶风扇,既呼应了飞机引擎风扇的机械美学,又为空间注入了一丝复古的未来主义气质。
细节之处,飞行主题一以贯之:发型师手边的工具箱,其设计灵感正源自飞机上常用的金属餐车,成为兼具主题呼应与实用收纳功能的移动单元。
FLYBOY BARBERSHOP通过克制的设计语言与细腻的场景营造,将飞行主题转化为一种可感知的空间体验。从材料的选择到细节的打磨,从功能的安排到氛围的塑造,每个元素都服务于整体的叙事逻辑,最终在商业空间中实现了一种兼具主题性、功能性与艺术性的完美平衡。这里不仅是一个理容场所,更是一段关于飞行梦想的空间诗学。
项目信息
项目名称:FLYBOY BARBERSHOP
项目地点:上海
项目面积:105平方米
设计时间:2025年1月
完工时间:2025年7月
设计公司:明合文吉(Studio MVW)
设计主持:徐明
项目摄影:陈華工作室
徐 明
联合创始人、室内建筑师
明合文吉(Studio MVW)由徐明与Virginie Moriette(文吉)于2006年在上海共同创立,是一家专注于建筑设计、室内设计与家具设计的创意工作室。
明合文吉的设计秉持“融汇东西,连接传统与现代”的理念,从现代生活的实际需求出发,汲取自然灵感,融合东方美学与当代设计语言,在家具、室内及建筑等多个维度中,实现功能与美学、工艺与创新的和谐统一。
在商业设计实践中,他们尤为注重“探寻每个品牌的DNA”,以此为基础寻找最契合的设计语言与策略,从而强化品牌特质,实现“设计为品牌赋能”。
凭借独特的设计风格与卓越的表现,明合文吉屡获业界权威奖项肯定,包括七度入选《安邸AD》AD100中国榜单,荣获安德鲁·马丁国际室内设计大奖、Wallpaper*设计大奖,并多次摘得Elle Decoration国际设计大奖等重要荣誉。
其代表作如“金石”、“相生”、“BlooMing”系列,曾参展巴黎PAD、佳士得拍卖及巴黎现代艺术馆“AD珍藏展”等艺术与设计盛会,受到国内外设计界的广泛关注。明合文吉的客户涵盖多个领域的知名企业与品牌,包括历峰集团、摩瑟水晶、欧莱雅、瑞安地产、华侨城、华住酒店集团、证大集团、Ubisoft、法国罗奇堡及意大利Giorgetti等
客服
消息
收藏
下载
最近
































