查看完整案例

收藏

下载
Maison d’Adeline
mission permis de construire
type construction neuve
maître d’ouvrage privé
maître d’œuvre CoCo architecture
date 2016-2019
surface 125m2
prix 200K€HT
lieu Proissan (24)
statut livré
programme construction d’une maison neuve écologique en bois
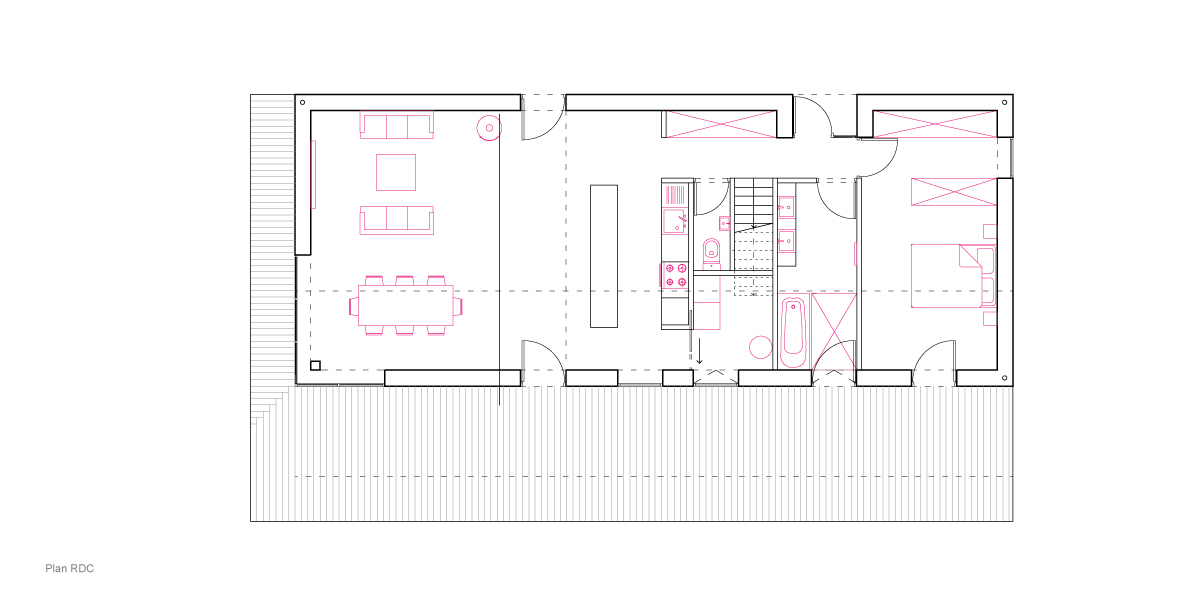
Pour concevoir cette maison, nous avons cherché à réinterpréter la volumétrie classique des maisons dans un volume simple et compact. Ainsi la maison utilise l’espace sous comble pour ne pas trop s’étaler au sol et minimise les surfaces déperditives.
La bâtisse est partitionnée en deux : la partie nuit à l’est dispose d’un étage tandis que la partie jour à l’ouest offre un séjour en double hauteur. La circulation de desserte à l’étage à été élargie pour être une circulation utile type pièce de jeu et bureau.
Au RDC, coté Sud, nous avons créé un décalage de façade par rapport à la ligne d’égout, de façon à protéger le vitrage des rayons du soleil en été. Une terrasse en bois permet d’utiliser cet espace abrité comme une varangue.
En façade, les percements verticaux évoquent le rythme des façades des hangars agricoles de la région.
La maison a été réalisée en ossature bois et bardage en mélèze.
Crédits photos : Edouard Decam
CoCo architecture
Dordogne
2 rue Jean - Jacques Rousseau
F - 24200 SARLAT LA CANEDA
France
Tel +33 (0)5 53 31 10 42
CoCo architecture
Aveyron
2 avenue de Sauveterre de Rouergue
F - 12800 NAUCELLE
France
Tel +33 (0)5 65 46 11 35
CoCo architecture
Drôme
16 rue des Alpes
F - 26400 CREST
France
Tel +33 (0)4 75 56 54 03
CoCo architecture
Normandie
120 Bd Amiral Mouchez
F - 76600 LE HAVRE
France
Tel +33 (0)7 50 35 07 17
CoCo architecture
Autriche
Lenaugasse 2 - 4
A - 1080 VIENNE
Autriche
Tel +43 (0)1 913 7621
客服
消息
收藏
下载
最近









