查看完整案例

收藏

下载
Bon Pastor H3
Building Projects
- Bon Pastor H3
name:
Bon Pastor H3
type:
Social dwelling
size:
8.800 m2
time:
2015-2020
location:
Barcelona
architects:
Untercio + Miel
collaborators:
Quim Olea
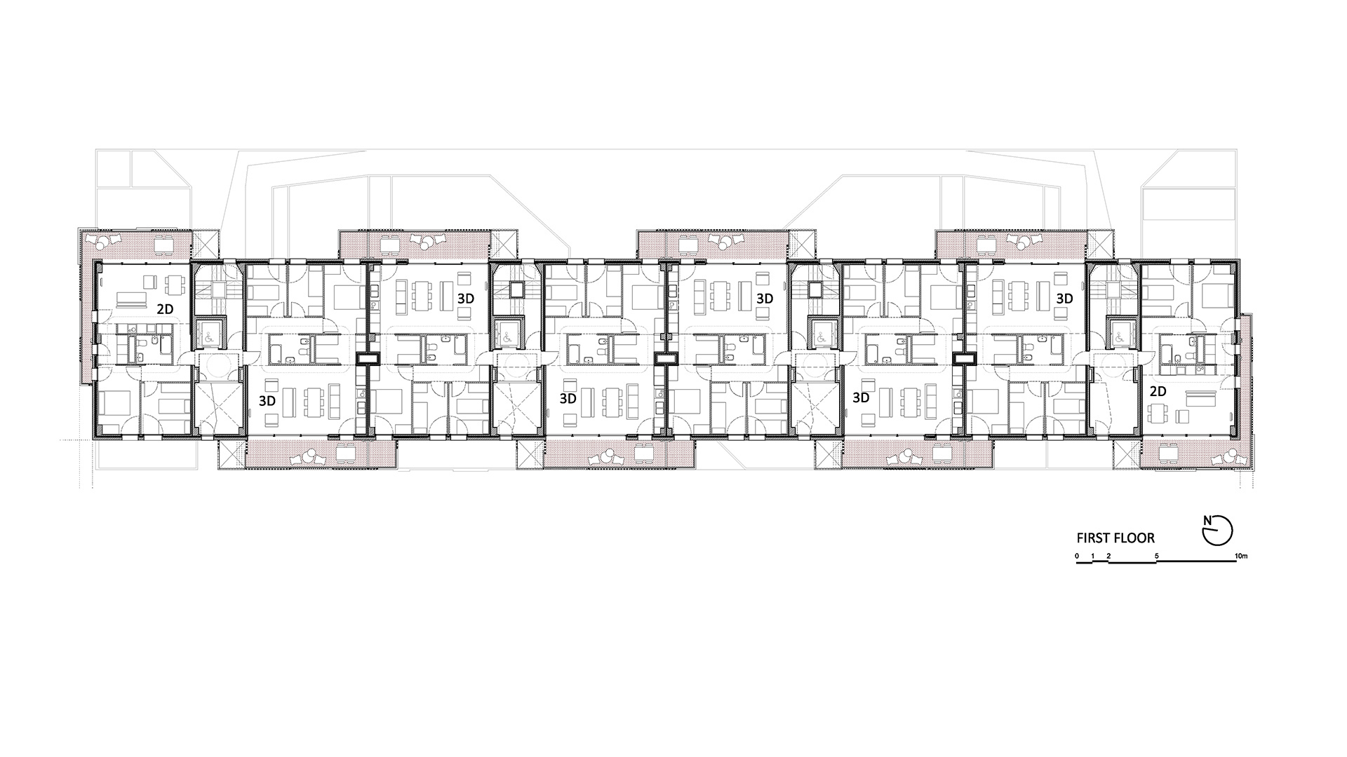
Our team along Untercio has been awarded by Patronat de l’Habitatge with the first prize for a restricted competition for the construction of a residential building in the plot H3 in Bon Pastor, Barcelona. It will be a honor to work in such a representative area of the recent history of Barcelona. “De peus a terra” is a mixture between “seny” (sanity) and “rauxa” (outburst); the proposal gives an efficient response to the commission by providing natural light and ventilation to each room, and still they are given a large space to imagine, hard defining, between a garden and a terrace.
PLANS
PROCESS
客服
消息
收藏
下载
最近
















