查看完整案例

收藏

下载
Primary School in Modigliana
COMPETITION ENTRY
PRIMARY SCHOOL, MODIGLIANA 2018
DESIGN TEAM:
2A+P/A (Gianfranco Bombaci, Matteo Costanzo)
PHOTOGRAPHS:
Giulio Aleandri
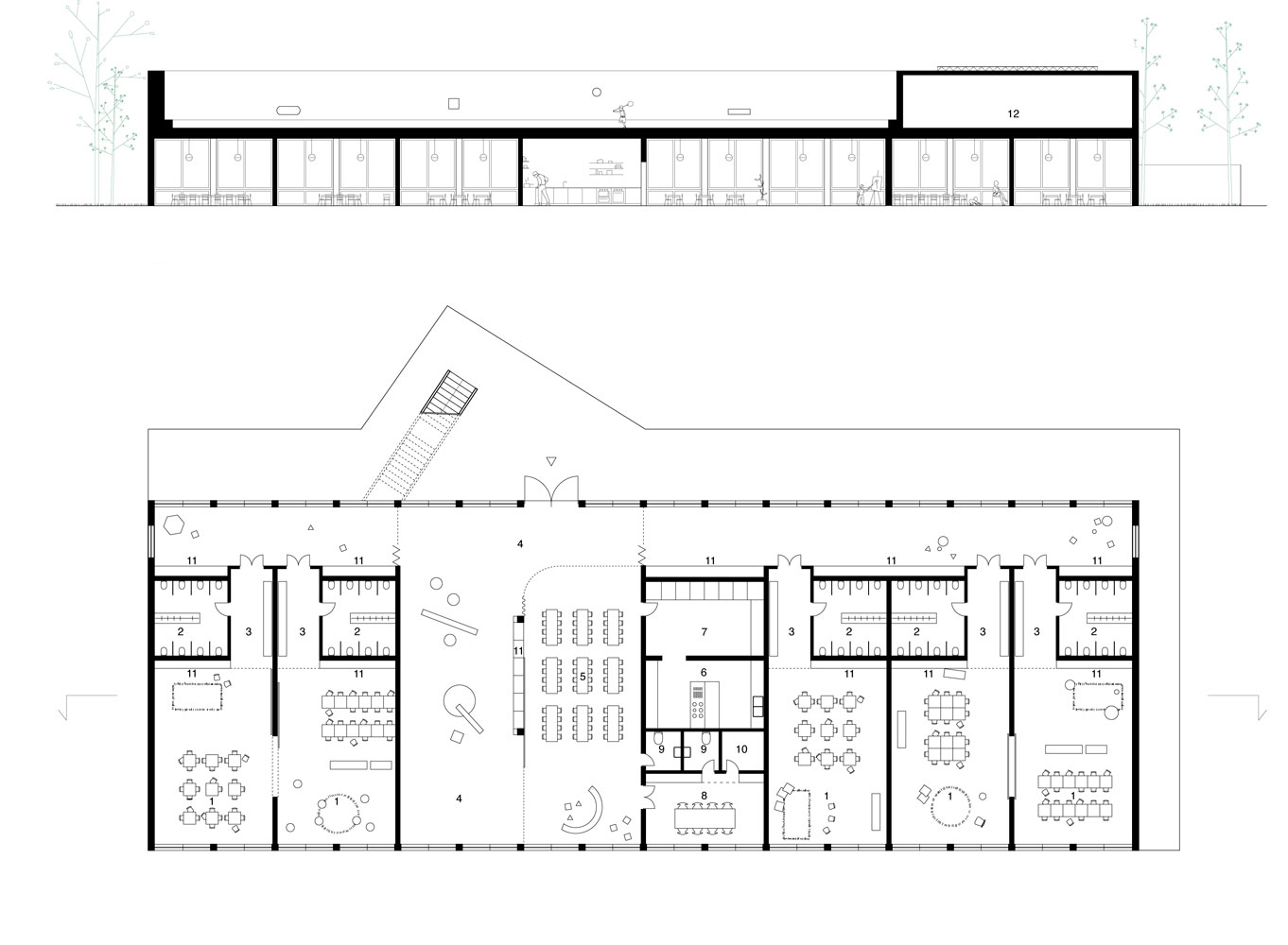
The New School is a building with a compact shape: a volume that fits into a dense wood. The project organizes the activities of the school on the ground floor and to create on the first floor on the roof, an open air playground, enclosed by walls. This strategy derives from the lack of spaces to play in the exteriors of the school compound. The main idea of the project is to reserve for the children of the kindergarten an open room, surrounded by the foliage of the trees, which separates and isolates them from the large central garden of the entire campus.
客服
消息
收藏
下载
最近








