查看完整案例

收藏

下载
Campus Tensta
Kulturhistorisk byggnad ser nytt ljus
Fakta om projektet
Uppdragsgivare:
Plats: Tensta, Stockholm
Uppdragsår: Pågående
BTA: 15 000 m²
Samarbetspartner: Byggprojekt, Seveko, Reichmann antikvarier, Projektel
Fotograf: Felix Gerlach
Den tidigare gymnasiebyggnaden i Tensta, blåklassad med synnerligen högt kulturvärde, står inför återinvigning för att bli Campus Tensta i regi av Hemsö. Byggnaden representerar en blandning av senmodernism och brutalism med influenser från asiatisk arkitektur. Tengbom har varit ansvariga arkitekter inför den varsamma renoveringen som tar stor hänsyn till byggnadens originalidentitet.
År 1984 invigdes den Gösta Uddén-ritade gymnasieskolan i Tensta. Några ser skolan som ”den sista riktigt påkostade skolan i Sverige”. Andra menar att den bör klassas som byggnadsminne.
Sedan 2018 har skolan ekat tom och rivningsryktena har skapat oro bland såväl arkitekturkännare som allmänhet. Men det är tvärt emot visionen som Hemsö har: skolan ska varsamt renoveras och byggnadens arkitektoniska originalidentitet bevaras.
Att släppa egot
— Som arkitekt vill man gärna sätta sin prägel på sina projekt. Men när det handlar om bevarande av kulturbyggnader får man släppa sitt ego till förmån för byggnadens ursprung, säger Josefine Larsson, arkitekt och affärsutvecklare på Tengbom inom byggnadsvård, kulturhistoria och omvandling av befintliga byggnader.
Kulturhistoriskt detektivarbete
Tengbom har varit ansvariga arkitekter inför den omfattande renoveringen som ska återställa skolan till originalskick. Utmaningen i renoveringen av en blåklassad byggnad med synnerligen högt kulturmiljöhistoriskt värde är att uppfylla de moderna kraven som rör bland annat tillgänglighet, ljudnivåer och brandskydd.
— Det ligger mycket kreativitet bakom ett sådant här arbete. Ett slags detektivarbete där det inte främst handlar om vad man gör utan hur man gör det.
Josefin Larsson
I förarbetet till renoveringen har Tengbom samarbetat med Reichmann antikvarier. I arbetet har man kartlagt och dokumenterat de kulturhistoriska projektförutsättningarna. Antikvarien är sakkunnig i kulturvärden enligt plan- och bygglagen (PBL) och ansvarig för att projektet uppfyller kraven vid ändringar av kulturhistoriskt värdefulla byggnader.
Dåtiden. Fotograf: Bo Eriksson
— Det blir alltid bäst i ett sådant här projekt när man får samarbeta med antikvarier från start. Och just det har vi kunnat göra här, säger Josefin. Här fick vi möjlighet att tillsammans se över alla detaljer, såsom vilka materialval man ursprungligen gjorde, vilka kulörer man använde – och i vilken kontext.
Reichmann antikvarier har gjort en antikvarisk förundersökning av fastigheten som satte ramarna för projekteringen. Därefter har man gjort en konsekvensanalys på underlag av projekteringshandlingarna.
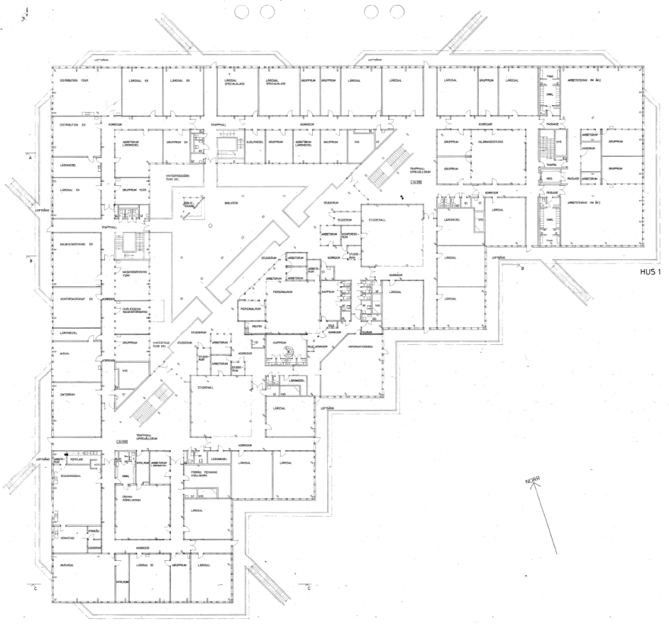
Ritning: Uddén arkitektkontor
Mönstergjuten betong och asiatiska pagoder
Anläggningen som Gösta Uddén fick i uppdrag att skapa innefattade både skolan, samlingslokalerna Tensta Träff med bibliotek och senare ett medborgarkontor, samt en idrotts- och simhall. De tre byggnaderna formar tillsammans en triangel. Fasaderna består i huvudsak av gedigna material som rött tegel, mönstergjuten och obehandlad betong, samt limträ och svartmålat stål. I hjärtat av skolan stoltserar en vacker vinterträdgård som tar in ljuset ovanifrån. Med element som loftgångar och diagonalt utskjutande betongtrappor blandat med asiatiska inslag som kraftigt svängda takfall och pagoder är gymnasiebyggnaden och Tensta Träff blåklassade enligt Stockholms stad och Stadsmuseets klassificering. Det betyder att de anses vara en del av det gemensamma kulturarvet i Sverige. Man har värderat att ”bebyggelsen bedöms ha synnerligen höga kulturhistoriska värden” och därmed fått den högsta klassificeringen. Som jämförelse är alla byggnader i Gamla stan i Stockholm blåklassade.
— För Campus Tensta gäller ett förvanskningsförbud enligt plan- och bygglagen. Det innebär att man inte får göra förändringar av egenskaper som utgör kulturvärden i byggnaden, förklarar Josefin.
Men trots blåklassning och förvanskningsförbud behöver en ny skolbyggnad bli anpassad till rådande standarder och krav.
Tillägg som smälter in
— De olika rumsmiljöerna har kartlagts enligt den antikvariska bedömningen och de mest bevarandevärda har märkts ut som ”Rum av särskild karaktär”, fortsätter Josefin. I de här rummen bör man genomföra minimal förändring och återställningen sker strikt utifrån originalutförandet. Rummen utan särskild karaktär, som till exempel klassrum och toaletter, blir renoverade enligt moderna behov och krav, och utifrån grundtanken med huset.
Klassrummen i Campus Tensta blir anpassade utifrån grundläggande krav gällande akustik, belysning och tillgänglighet. Till exempel byter man ut samtliga undertak. Samtliga toaletter får nytt klinker, nya handfat och toaletter. Men i andra rumsliga miljöer som bland annat korridorer och vinterträdgården, som är av ”särskild karaktär”, blir allt återställt till ursprungliga material.
— Principen för husets renovering är varsam transformation. Det vill säga, vi tar vår utgångspunkt i byggnadens logik, säger Josefin. Tillägg ska smälta in, i stället för att bryta av, och så mycket material som möjligt återanvänds. Tekniska system som läggs till kommer i möjligaste mån att döljas. Vi strävar mot att använda det som finns och hålla tilläggen enkla med minimal förbrukning av material för att få en maximalt funktionell byggnad.
Campus Tensta enligt ursprungsvisionen
År 2021 förvärvade Hemsö gymnasiebyggnaden och Tensta Träff. Visionen är att skapa Campus Tensta – en plats där utbildning och kultur delar tak. Hemsös ambition är att gymnasium, vuxenutbildning och även högskoleutbildning ska samlas i lokalerna, tillsammans med verksamheter för kultur, innovation och entreprenörskap.
— Vi ser verkligen fram emot att återigen fylla de här vackra byggnaderna med liv och rörelse så att både lokalboende och hela Stockholm upplever en förbättrad miljö och att vårt Campus Tensta bidrar till både utbildning, kultur och kreativitet, säger Johan Einarsson, projektutvecklare på Hemsö.
Redan till höstterminen 2024 välkomnar man den första pusselbiten till Campus Tensta i form av Järva Gymnasium, ett stiftelsebaserat nystartat gymnasium med högskoleförberedande program från start.
Historia
70-talets gymnasiereform förespråkade ”den samordnade skolan” där utbildning, idrott och kultur skulle samlas på ett ställe. Målet var demokratiska skolmiljöer - öppna och tillgängliga för alla. Byggnaderna innehöll då gymnasieskolan, samlingslokaler i Tensta Träff med bibliotek och senare ett medborgarkontor, samt en idrotts- och simhall (ritad av Uddén och Wåhlström arkitektkontor). Gymnasiet ersatte Norra Latins gymnasium när det stängde 1982. Skolgården ligger i slutet av Tenstastråket som går genom centrum. Landskapsarkitekt Gunnar Martinsson ritade skolgården som planterade 300 silverpilar på området.
Kontaktperson
Josefin Larsson
Uppdragsansvarig arkitekt
Josefin.Larsson@tengbom.se
+46 72 183 02 34
客服
消息
收藏
下载
最近

















