查看完整案例

收藏

下载
Bâtiment des laboratoires et de logistique de l’hôpital Cochin
Bâtiment des laboratoires et de logistique de l’hôpital Cochin
Localisation
Paris
Maîtrise d’Ouvrage
Assistance Publique-Hôpitaux de Paris,
Groupe Hospitalier Cochin Saint-Vincent de Paul
Équipe de maîtrise d’œuvre
Ateliers 2/3/4/ (architecte + paysagiste) - Incet (bet structure) - Choulet (bet fluides) - Camebat (économiste) - Delphi (acousticien) - Nodal (assistance Synthèse) - Breack (assistance conception stérilisation)
Nature du projet
Santé
Programme
Plate-forme logistique dont :
Stérilisation, pharmacie,
Centre de tri, zone de formation, PUI, logistique,
Parking :104 places,
Cour de service.
Statut
Construit, 2020
Surface
17 000 m²
Coût de l’opération
39,9 M€ ht
Crédits
©Nicolas Fussler
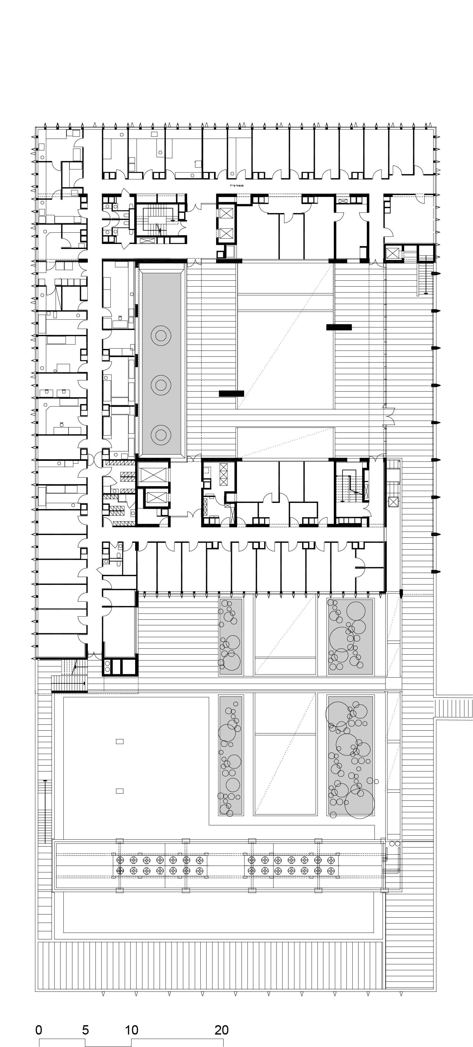
Une grande partie du travail s’est concentrée autour de la cour, bien qu’enfouie au cœur de l’édifice c’est elle qui le gouverne et le met en relation avec son environnement.
Située entre terre et ciel, elle réunit d’une part un socle dans lequel sont rassemblées les activités de logistique ou celles qui nécessitent une accessibilité de plain-pied, et d’autre part un ruban de bureaux et de laboratoires, parfaitement réversible et qui peut demain être étendu.
La cour est une cour ouverte, comme un télescope, elle capte par de grandes fenêtres divers horizons de l’hôpital ou du skyline de Paris.
C’est une cour propice à la concentration, où le soleil rythme les heures du jour, la couleur flotte au milieu de l’espace comme un nuage coloré par les rayons du soleil.
rdc haut
r+1
客服
消息
收藏
下载
最近
















