查看完整案例


收藏

下载

翻译
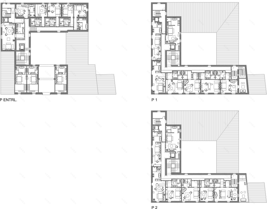
A 12th-century monastery/farm in the foothills of the Serra de Tramuntana whose restoration has honoured its architectural features while converting it into a modern, design-oriented luxury boutique hotel surrounded by acres of vineyard.
客服
消息
收藏
下载
最近




























