查看完整案例

收藏

下载
Site des anciens prêtres de Tournai
Conserver « l'esprit » et le « sens » du monument ainsi que lui façonner une nouvelle identité en continuité avec son histoire.
Composer avec la cathédrale, le remarquable quartier des arts, les édifices, mais aussi les fragments emblématiques afin de créer un lieu ouvert sur la ville, une intersection entre l’urbain et le sacré, un espace de rencontres, d’expérimentations et de créations, un lieu des possibles à offrir aux Tournaisiens.
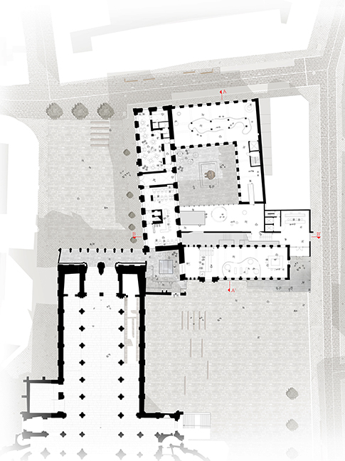
L’hôtel des anciens prêtres est un site patrimonial riche -notamment grâce à sa proximité avec la cathédrale gothique et romane Notre-Dame de Tournai- mais aussi complexe, dû à de multiples démolitions, transformations et reconstructions au cours du temps. Cette complexité s’exprime par la présence de bâtiments édifiés à différentes époques, possédants des niveaux distincts ainsi que des entrées propres à chacun. Le défi du futur Smart Center sera de retrouver une cohésion perdue au fil des reconstructions, tout en gardant l’essence du lieu et les traces de son passé. Les objectifs principaux de ce projet de réhabilitation seront de rétablir une cohérence entre nouveaux espaces et espaces existants et une lisibilité du projet grâce à une circulation fluide et évidente.
Durant l’étude du projet, le principal problème rencontré a été le manque de surface disponible actuelle. En effet le programme du futur Smart Center demande une surface de 6600m² alors que la surface disponible est de seulement 4 000 m². Plusieurs solutions peuvent alors être envisagées comme couvrir la cour intérieure de l’Hôtel des anciens prêtres, ou encore démolir un édifice pour y construire un autre plus fonctionnel.
La première proposition a rapidement été écartée : le vide de la cour a toujours existé, il est l’un des seuls éléments à avoir traversé les époques. Son empreinte patrimoniale engendre une identité symbolique non négligeable. De plus, elle permet un apport de lumière naturelle à l’ensemble des bâtiments ainsi qu’un jardin extérieur ouvert au public. Afin d’éviter la perte d’identité du lieu et de se démarquer des équipes concurrentes, nous déciderons de laisser la cour extérieure. Elle devient le jardin du nouveau projet, incarnant l’esprit de cloître avec ses façades rythmées.
Beaucoup de projets antérieurs non réalisés car jugés peu respectueux du site, proposaient la démolition du bâtiment des anciennes archives (qui n’est pas encore classé). Ainsi l’espace récupéré pouvait être repensé plus efficacement. Mais la plainte des locaux témoignant de l’attachement au patrimoine de leur ville, nous a convaincu de la nécessité de garder l’édifice. D’autant plus qu’il est possible que ce bâtiment soit classé dans les années à venir.
Ainsi la seule solution pour palier au problème du manque de surface sera la construction d’un nouvel élément. Ce nouveau volume vient se glisser entre la cour et l’ancien bâtiment des archives. Il s’insère dans le parcellaire existant de manière juste et évidente, ne laissant entrevoir de l’extérieur que quelques éléments contemporains. Ce nouvel édifice permet de reconnecter les quatre corps de bâtiments entre eux et de déterminer une entrée principale aux lieux d’expositions.
La complexité du lieu tient comme nous l’avons dit de la pluralité des entrées existantes (une place des évêchés dans le bâtiment de l’ancienne bibliothèque, une place Paul Emile Janson présentant un fronton voyant et une plus privée…) Nous déciderons alors que l’entrée principale s’effectue dans le nouvel édifice contemporain, fonctionnant comme un repère intuitif, guidant vers l’espace muséal par la circulation principale. Bien que le nouvel édifice ne soit qu’à l’étape de pré-esquisse, les circulations ainsi que les niveaux des étages ont pu déjà être déterminé.
Il s’agit ici de mettre en place une circulation intuitive qui permettra la liaison entre les différents corps de bâtiment. Cette circulation prend la forme d’un grand escalier s’insérant entre le bâtiment des archives et le nouvel édifice, permettant d’atteindre toutes les fonctions du projet. L’escalier droit desservant tous les étages engendre une circulation visible et instinctive pour le visiteur. Cet espace est essentiel à la gestion des liaisons des différents éléments mais il est également une véritable mise en scène de l’entrée qui appelle à l’ascension et à la visite. Une intention future serait également d’ouvrir une perspective visuelle sur la cathédrale à l’arrivée en haut des escaliers. Cette percée couverte par une verrière apporte une lumière zénithale naturelle dans le parcours muséal.
A la suite des projets polémiques qu’a connus le site de l’Hôtel des anciens prêtres, nous proposons ici un projet particulièrement attentif à la conservation du patrimoine. Nous gardons une attention à la mémoire collective en mettant en place des volumes contemporains soucieux et revalorisant le contexte historique existant.
Le nouveau volume s’insère dans le parcellaire existant de manière juste et évidente, ne laissant entrevoir de l’extérieur que quelques éléments contemporains.
Galerie
+
客服
消息
收藏
下载
最近











