查看完整案例

收藏

下载
Житловий будинок в Венеції
Житловий комплекс, Венеція
Житловий будинок в Венеції
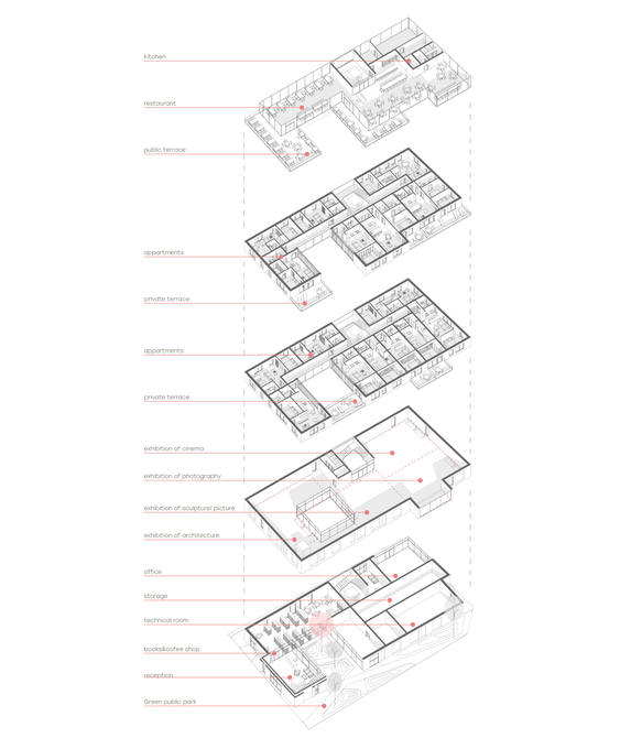
П'ятиповерховий житловий будинок об'єднаний з виставковим залом в історичному районі Венеції, де проходить бієнале.
3 360
м
2
Площа
2019
Таймлайн
Концепція
Статус
Види послуг
Концепція
Локація
Італія, Венеція, Калле Монте Санто
Нагороди і відзнаки
#VENICECALL architectural ideas contest - 1st place, 2019
客服
消息
收藏
下载
最近










