查看完整案例

收藏

下载
Ordos Villa 93
Ordos Villa 93
Ordos, Inner Mongolia
Design 2008
12,000 sq. ft.
LTL was selected for the Ordos 100 project, choreographed by artist Ai Weiwei as an elaborate performance piece, in which one hundred architects from around the world were asked to design one hundred villas in one hundred days for a new development in Ordos, Inner Mongolia. Each house was to be unique but designed according to a consistent set of parameters: a defined spatial volume within a predetermined master plan. This ambitious experiment incorporated a series of contradictory constraints: the cultural aspirations of the project versus the limitations of local material and construction methods; the striking climate of the Gobi Desert, in contrast with the global framework of the commission; and the desire for individual architectural explorations to coexist in close proximity.
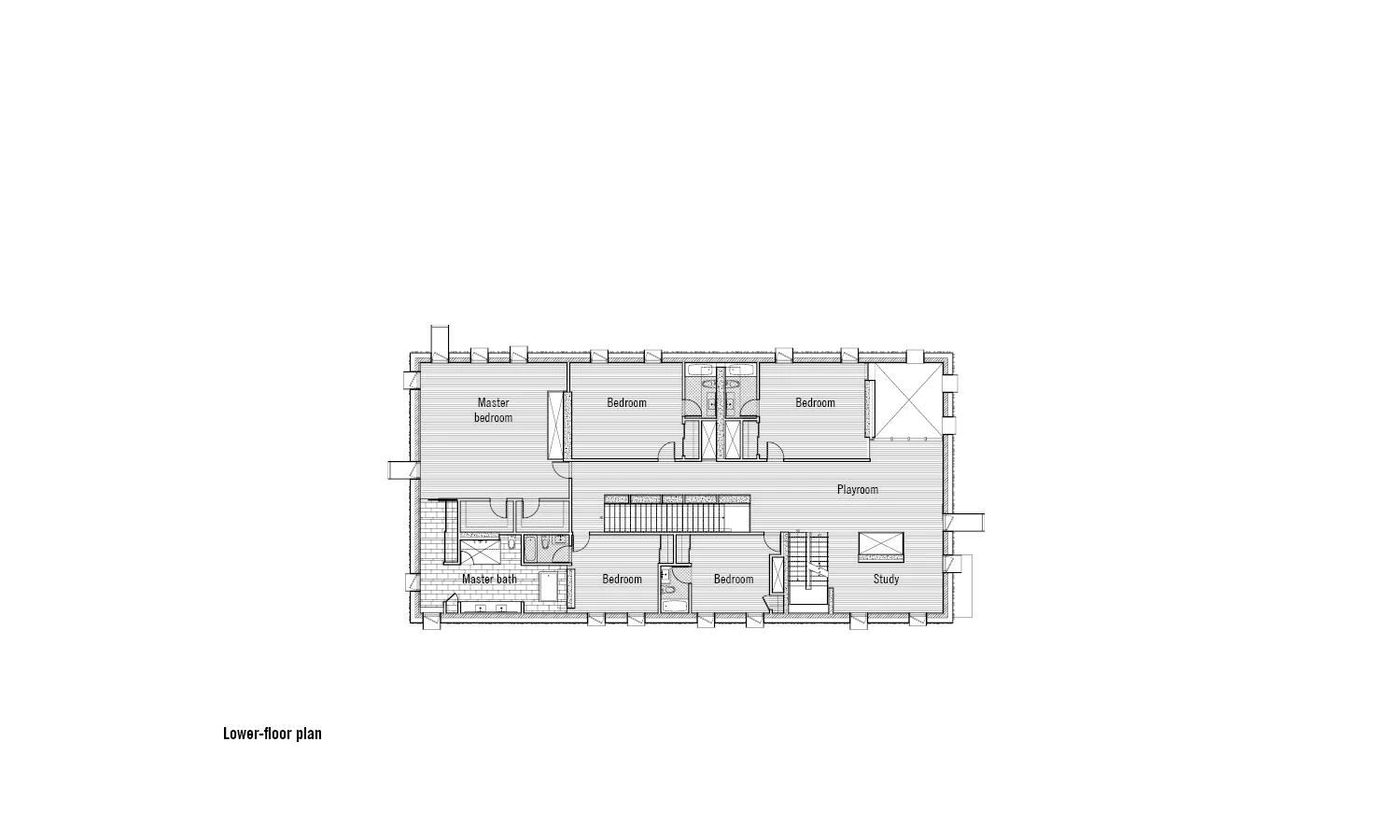
Mining the inherent contradictions of these parameters, the resulting design is intentionally schizophrenic –combining exteriority and interiority, shelter and exposure in a single spatial logic. Split in two horizontally, the house combines an introverted cluster of private rooms elevated above an open plan ground floor. Whereas the private house is treated as a solid mass clad in local grey brick, the public spaces are woven into the surrounding site via a series of courtyard walls which move from inside to outside and back again. These walls create exterior spaces - differentiated by contrasting material cladding - linked to the major public rooms and extend vertically to produce sectional connections to the upper story. Separated by a narrow band of glazing, the two halves of the house allow for spatial connection to the landscape while maintaining privacy for the villa’s inhabitants.
Type
Residential
Credits
Client:
Jiang Yuan Water Engineering
Project team:
Paul Lewis, Marc Tsurumaki, David J. Lewis; Michael Tyre, Kate Snider, Deric Mizokami, Laura Cheung
Curator:
Ai Weiwei / FAKE Design
Mechanical engineer:
Arup
客服
消息
收藏
下载
最近





















