查看完整案例

收藏

下载
Kingfield Mountain Spec Home
Taking advantage of views and maximizing space in this 4 bedroom spec home.
Style
Scandinavian
Size
2600 SF (241.5 sq m) + Garage
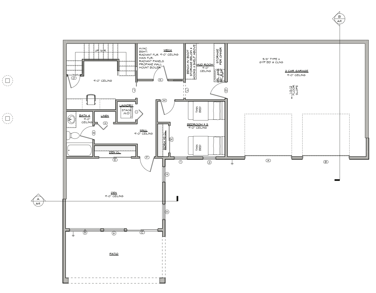
First Floor/ Daylight Basement Floor Plan
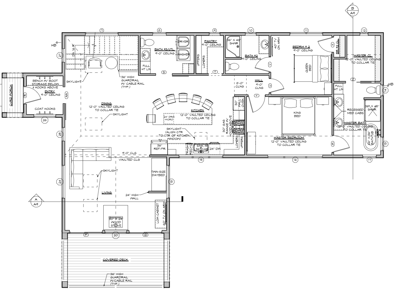
Second Floor Plan
Ashley’s Notes
PRIORITIES
This is a spec house so, on the surface, it was
all about return on investment (ROI)
. While we were trying to keep the footprint compact to save on
excavation and concrete work
, we also wanted it to feel
luxurious
and worth a good chunk of change.
But
it’s never just about money
. This is a new neighborhood so this house helps define the development’s trajectory; it had to be pretty. The client requested
Scandinavian style which I was very excited about
. You can see elements of that style in the
general massing
of the house but also in the way the
siding changes at the underside of the decks
.
One thing to note, this client did not use my services during construction or even siting the house. I really wish they had because the
excavation was overdone and it resulted in a very tall and very unfitting set of stairs to the front door
. But alas, it’s still a gorgeous and very functional building.
WORK DONE
This was
brand new construction
. When I started there was a rough driveway but the lot hadn’t been graded.
PHOTOGRAPHY
These photographs were created by Katherine Ripley, a Kingfield-based interiors and architecture photographer and marketing consultant.
MY FAVORITE DETAIL
The big wall of windows out to the incredible view. I designed this house so as
many rooms had the view as possible
. You can see the Bigelow Mountain range from the Living Room, Dining Area, Kitchen, Main Bedroom, and Main Bathroom.
You can even see those mountains from the bath tub!
Want to build a new house? Let me know! Perhaps we can collaborate to bring your vision to life.
Get in Touch
Ashley Hopwood Farrar
客服
消息
收藏
下载
最近






























