查看完整案例

收藏

下载
NAS architecture
Bibliothèque Tiers-lieu
Rochefort-du-Gard (30)
Equipement culturel - Réhabilitation
Maître d’ouvrage: Mairie deRochefort-du-Gard
Surface: 500 m² int. 500 m² ext.
Budget: 1 400 000 € HT
Architecte: NAS architecture
Mission: Complète + DIAG + GES + SSI + SIG
Equipe: Inse, Artotec
Année: 2020 - 2025
Photos: ©Severin Malaud
NAS architecture
Bibliothèque Tiers-lieu
Rochefort-du-Gard (30)
Equipement culturel - Réhabilitation
Maître d’ouvrage: Mairie deRochefort-du-Gard
Surface: 500 m² int.
Budget: 1 400 000 € HT
Architecte: NAS architecture
Mission: Complète + DIAG + GES + SSI + SIG
Equipe: Inse, Artotec
Année: 2020 - 2025
Photos: ©Severin Malaud
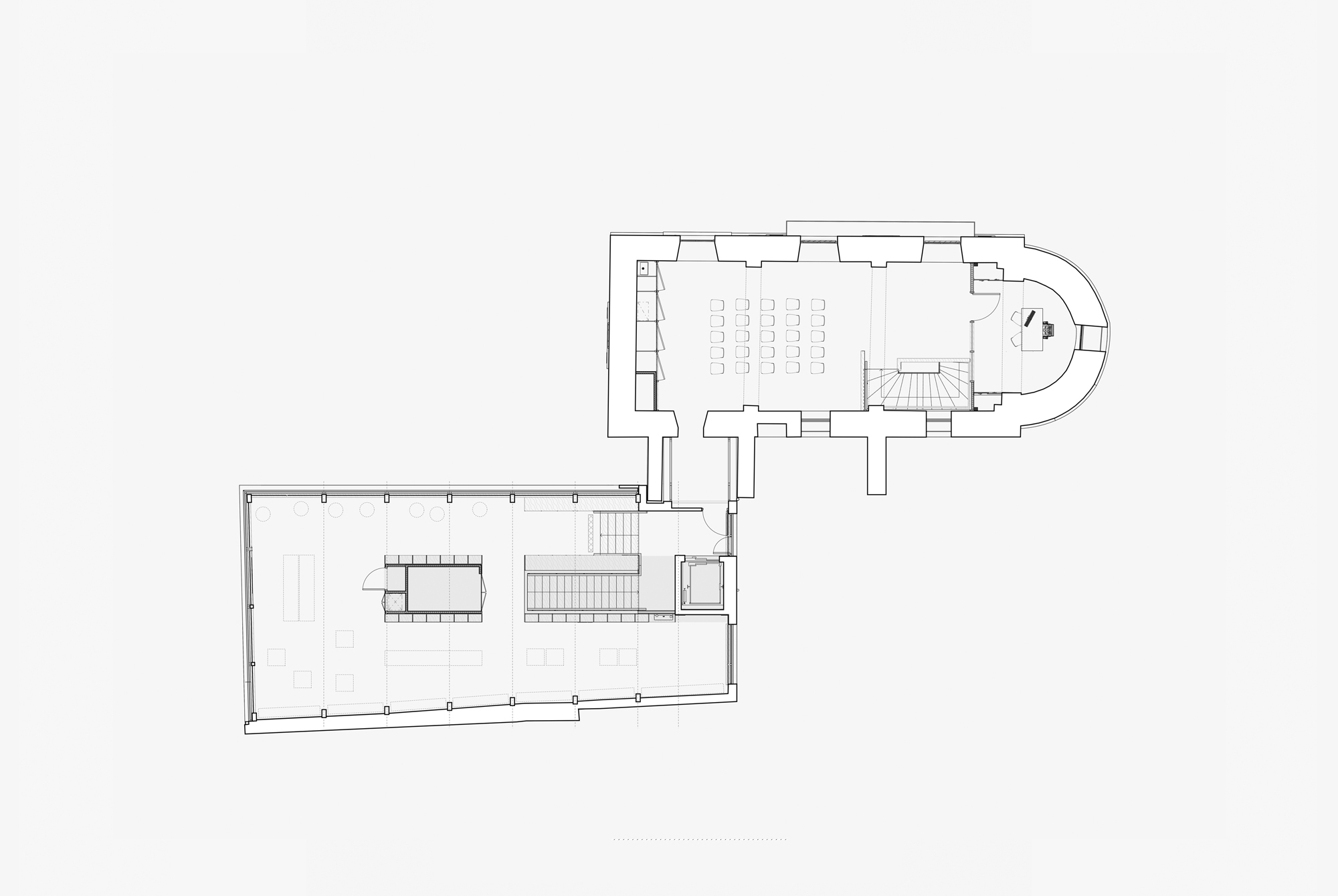
Programme :
- 1 Bibliothèque
- 1 Musée numérique
- 1 Fab-lab
Accompagner la transformation du centre ancien
La Chapelle Saint-Joseph fut construite, agrandie et modifiée entre 1638 et 1734 en lieu et place d’un modeste ermitage en utilisant les pierres du Chateau du Castellas suite à la guerre des religions. Devenue à plusieurs reprise Maison Commune, Ecole et Mairie depuis la Révolution Française, la Chapelle Saint-Joseph subit de nouvelles modifications avec la démolition de son habitations attenante en 1995. Cette modification a eu pour résultat de créer une petite place à l’angle de la rue de l’Eglise et de la rue du Grand Pont. Cette nouvelle respiration dans le tissu urbain dense du centre ancien de Rochefort-du-Gard était jusqu’alors peu mise en valeur. La place était alors délimitée à l’Est par Chapelle Saint-Joseph, alors Mairie jusqu’en 2017 fermée pour cause de risques d’effondrement, et au Sud par une ancienne grange aveugle et dégradée.
L’extension/réhabilitation de la Chapelle Saint-Joseph en Bibliothèque Tiers-lieu vient alors constituer un acte important pour engager une nouvelle situation urbaine en sauvegardant le patrimoine et la vie quotidienne du village de Rochefort-du-Gard en dépeuplement au profit de sa périphérie.
L’enjeu principal était donc de rassembler les Rochefortais et les Rochefortaises autour d’une culture forte et vivante. L’articulation globale s’est concentrée autour de cette place du village en actant une relation forte avec le Rez-de-Chaussée de la Bibliothèque pour propager les évènements vers l’extérieur.
Constituée de menuiseries en accordéon, la façade Nord s’ouvre entièrement et favorise les échanges avec la ville en effaçant les limites et en déployant le champ des possibles.
Une passerelle vient liaisonner la nouvelle Bibliothèque avec la Chapelle Saint Joseph réhabilitée qui abrite maintenant un Musée numérique qui déploiera, tout au long de l’année, des ateliers pédagogiques variés autour de différentes thématiques culturelles.
Une ruralité contemporaine
La matérialité du bâtiment d’extension se développe autour d’une dualité par strates.
Au Rez-de-Chaussée, la massivité joue le rôle de socle protecteur en accompagnant la minéralisé du village à travers un ouvrage en béton. Ces murs sont ensuite bouchardés pour trouver une patine et une expression capable de soutenir le rapport aux murs environnants du village. Le béton est surtout utilisé pour ses propriétés mécaniques en déployant une portée de plus de quinze mètres de long qui permet de faire disparaître la limite de la Bibliothèque lorsque la menuiserie en accordéon s’ouvre entièrement.
A l’étage, une structure poteaux poutres bois vient compléter le volume avec légèreté en aménageant des débords de toiture et une gestion discrète des eaux pluviales. La couverture métallique s’adapte aux géométries de la parcelle avoisinante tout en déployant une pente unique vers la place, réduisant son échelle à proximité de la Chapelle Saint - Joseph.
En contraste avec la façade opaque de la Chapelle, la Bibliothèque joue sur des horizontalités largement vitrées qui accentuent les transparences et invitent les Rochefortais et Rochefortaises à venir occuper le lieu et participer à cette nouvelle dynamique culturelle.
Composition intérieure
Les espaces intérieurs sont traités avec pragmatisme et retenue. L’identité de la Bibliothèque se fait à travers sa matérialité constructive et une lecture claire de ses composants.
Au Rez - de - Chaussée les pavés extérieurs se prolongent jusqu’à une bande programmatique centrale délimitée par les poteaux bétons qui regroupent les éléments support : Sanitaires, accueil, liaisons verticales et locaux techniques. Le bois est utilisé en remplissage pour refermer ces espaces, les aménager et créer un mobilier fixe qui regroupe également les passages de réseaux. L’ensemble est donc rythmé par cette alternance capable d’évoluer dans le temps avec logique.
A l’étage les portiques bois calepinent les menuiseries extérieures et orientent le regard vers place du village en contrebas. La charpente, composée de pannes et de panneaux en pin, dessinent la sous - face de cet espace dédié à la lecture.
La bande programmatique centrale se prolonge à l’étage pour continuer l’insertion des locaux techniques. Les parements bois se généralisent à l’ensemble de l’espace et offrent une monochromie adaptée à la mise en valeur des œuvres littéraires qui y sont présentées. L’étage possède donc une identité clairement assumée et en constate avec le Rez - de - Chaussée permettant de varier les ambiances et les thématiques au sein d’un même équipement.
La Chapelle Saint-Joseph a été entièrement réhabilitée avec le confortement des voutes principales ainsi que la reprise et l’ajout de tirants avec platines invisibles. Une eau forte a été appliquée à l’ensemble des murs intérieurs pour retrouver une homogénéité du volume tout en conservant l’aspect des pierres d’origine.
L’ajout de mobiliers bois permet, d’une part, de regrouper tous les équipements nécessaires au fonctionnement du Musée numérique et, d’autre part, de délimiter le bureau de la direction largement ouvert sur le lieu d’exposition. Un grand luminaire suspendu vient compléter une intervention qui se veut sobre et qui préserve la qualité d’espace de la Chapelle tout en le projetant vers une nouvelle utilisation culturelle.
La Bibliothèque Tiers-lieu crée un trait d’union entre un patrimoine important du Village de Rochefort-du-Gard et un nouvel équipement résolument ouvert et porté vers la mise à disposition de la culture pour tous.
客服
消息
收藏
下载
最近


































