查看完整案例

收藏

下载
Aleppo Opera House
Aleppo Opera House
Aleppo, Syria
2010
Aleppo is the largest city in Syria and regional capital of the most populous constituency (pop. 4.6m) in the Levant. For centuries, Aleppo was the third largest city of the Ottoman Empire, after Constantinople and Cairo. Although relatively close to Damascus, it enjoys a distinct identity, architecture and culture, shaped by a markedly different history and geography.
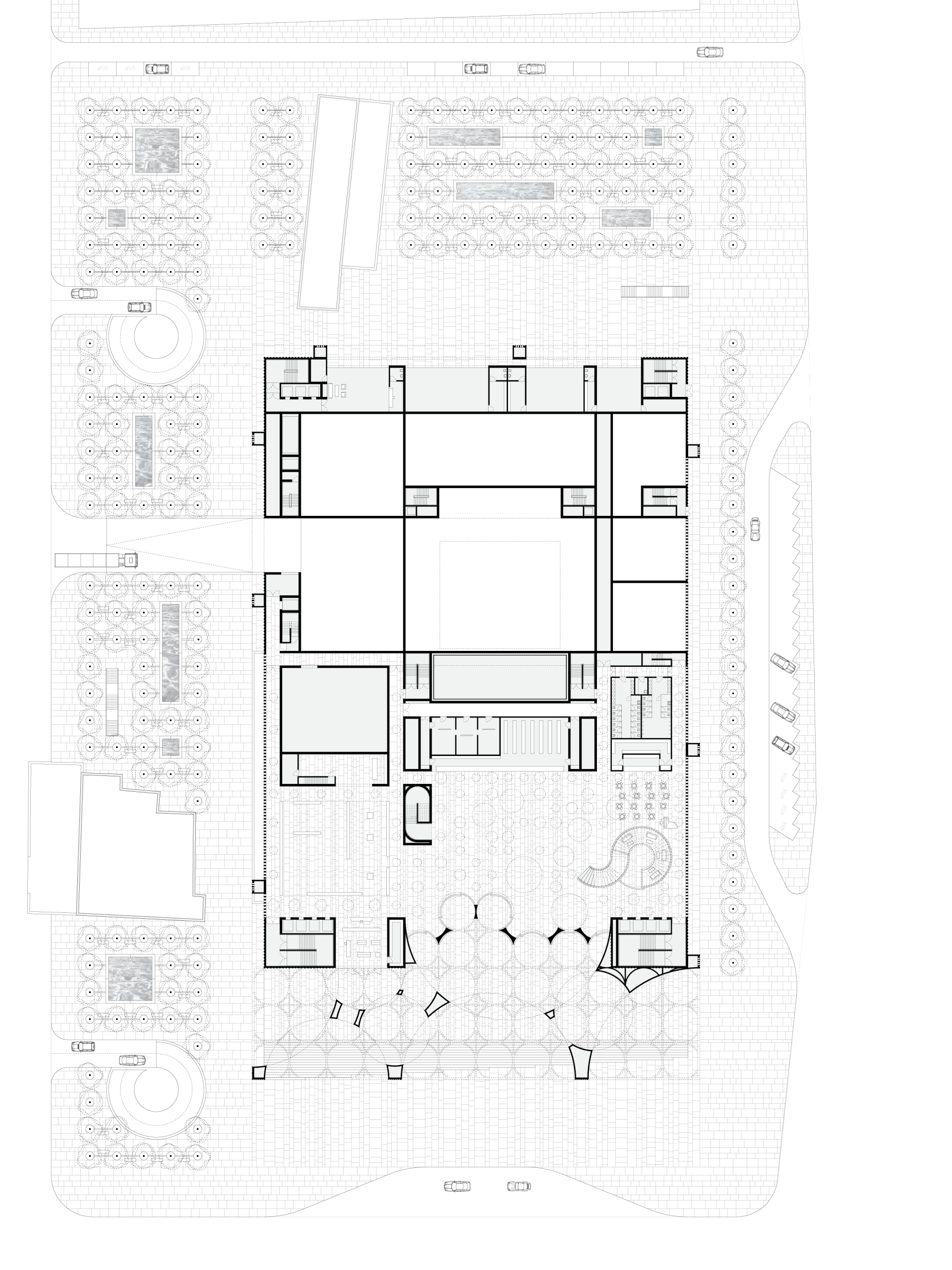
Just before the outbreak of the war, the Syrian government launched an international competition by invitation for a large mixed-use cultural centre to include a 1,600-seat opera house, a 500-seat theatre and the city’s library. Located at a major junction of the city centre — between the Great Mosque and Sabaa Bahrat Square — the plot was subject to tight building restrictions. The ensemble’s massing complies,
ipso facto
, with the planning constrains and programme requirements, namely, limiting the building footprint to a maximum of 45% of the plot.
All this led to a simple and compact architectural form: in essence, a rectangular box within which the various functions share the same hall. A semi-transparent drapery of lace, or wickerwork, envelops the ‘box’ behind the structural façade, using an evocative pattern of Aleppo’s historically celebrated motif of pistachio leaves and flowers — a pattern whose intricate combinations recurrently migrate from the tradition of tapestry, ceramics and metalwork into architecture. The idea of lightness and transparency behind this veiled box is further reinforced by the archway that evolves in a rising sequence, touching the ground and finally merging with the curtained theme.
Geometrically conceived as a structural grid of squares and cylinders intersected by arches and spherical domes, a vast open-air pronaos announces the entry to the building. The latter, conveying a ceremonial pathos and symbolic solemnity that echoes the magnitude of this civic structure, is also spatially reminiscent of the ambiance of Aleppo’s Souk, imparting a sense of being, rather than just transience, to the location. The same principle of intersected archways follows through, in a unified sequence, to the foyers. By this means, the entire public space is based on a three-dimensional architectural grammar of Arab and Levantine influences, such as the transition from a monochromatic external surface in stone to the white concrete and gold-leafed interior space.
Inside, the opera is formed as a quintessential classical auditorium with stalls, boxes and multi-level balconies, its bulkheads adorned by an acoustic gold-leafed pattern with a large central chandelier. The library rests on top of this theatre box, thereby concealing part of the volume of the stage tower and the technical areas, whilst simultaneously offering the opportunity for a landscaped rooftop courtyard. The competition was never awarded, and the last we heard, at the beginning of the war, was that the architectural models had been put in Bashar al-Assad’s office awaiting his decision.
Conceptual diagram
Model, east entrance and north façade
Model, east entrance and south façade
Opera hall and theatre
Fifth-level floor plan (library)
Cross section through opera fly tower and stage
Third-level floor plan (second balcony, rehearsal and dressing rooms)
Cross section through the theatre and opera balconies
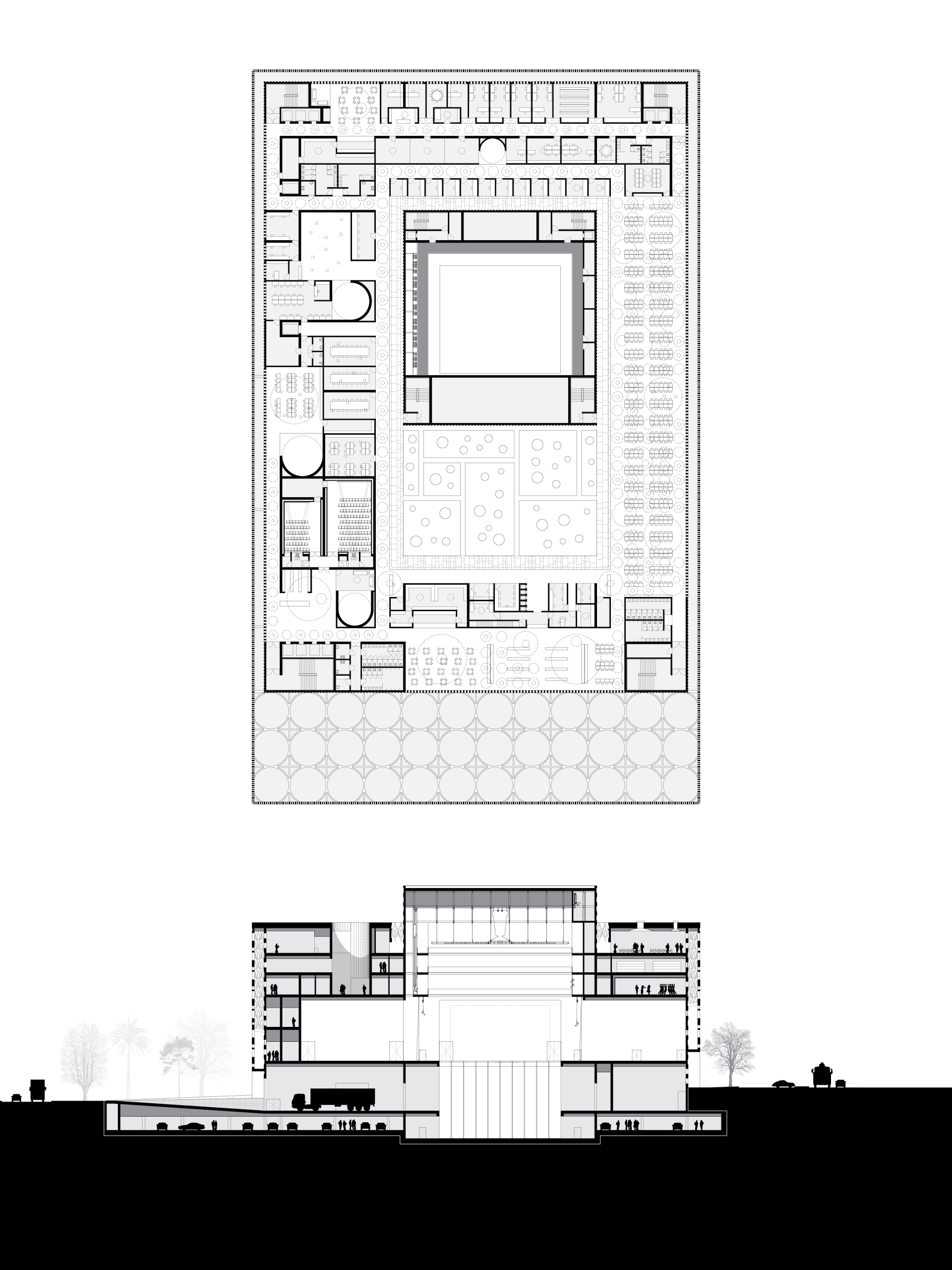
Ground-level floor plan (main foyer)
Basement-level floor plan (technical level)
Model, north façade
Lighting concept
Main foyer (ground-level), Opera hall (first-level), Opera hall first balcony (second-level), Opera hall second balcony and administration (third-level), Library (fifth-level) and Rooftop
Longitudinal section and chandelier
Location: Aleppo city centre, Syria
Client: Municipality of Aleppo
Local architects: Conser Syria
Scope of services: Architecture
Project brief: Opera house, theatre and library
Plot area: 2.1 ha
Gross floor area: 65,000 sq. m
Construction cost: USD 250m (estimated)
Project status: 2010 (shortlisted competition)
Model: Norigem
Photography: Promontorio (model)
客服
消息
收藏
下载
最近















