查看完整案例

收藏

下载
ACACIA HOUSE
Newbury Park, CA | Custom House
Tucked away in a quiet hillside suburb of Los Angeles, the ACACIA House is a
‘modern Shangri-La’
for a busy family who are always on the go.
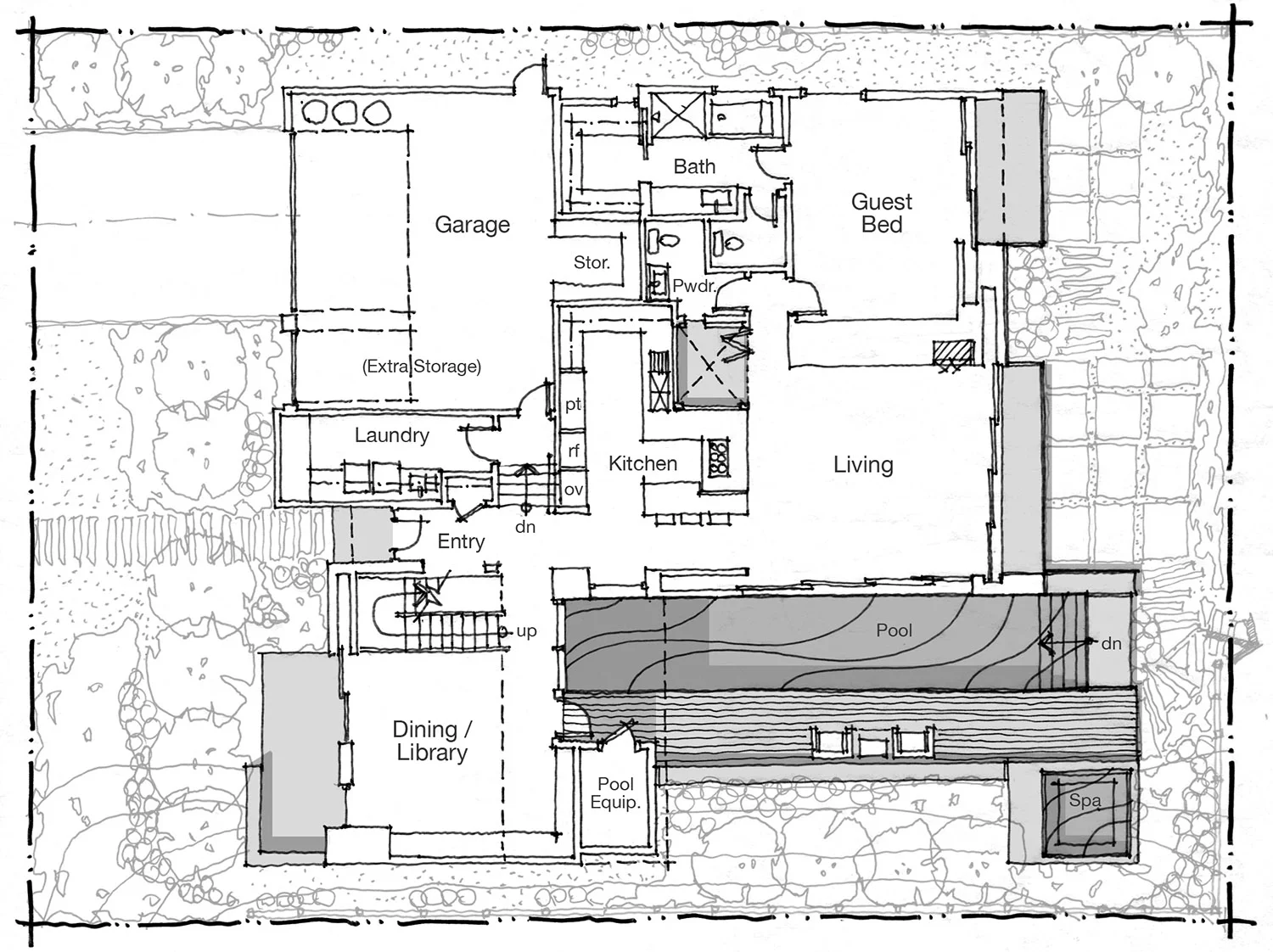
The lower portions of the new, modern home are focused inward with specifically framed views and interactions with the rear garden lot, interior koi pond and water lily garden, and a lap pool that seems to flow right under the living room and kitchen. The porosity of spaces celebrates the Southern California indoor/outdoor living experience. The second floor is geared more toward private, individual space with an expansive landscaped roof garden and fireplace adjacent to the master suite. Travel up the interactive glass stair from the terrace garden and you arrive at a secluded rooftop lounge and fire feature made for watching the sunset over the western mountains.
Warm, natural materials of wood and rough hewn limestone integrate with landscape and water elements that naturally cool the house and soften the hardline aesthetic of a modern home.
TEAM
Structural Engineer -
MOR Engineers
General Contractor -
Tapie Construction
Furnishing Selection -
Parisa O'Connell Interior Design
Landscape Design - Hunter Leggitt Studio, Mark Matthews,
Photos -
Steve King
&
Adam Tenenbaum
Video -
Special Place Productions
LEVEL 01
LEVEL 02
客服
消息
收藏
下载
最近


































