查看完整案例

收藏

下载
Rezidence Mendlova v Opavě
Návrh domu vychází z místní lokality, kterou tvoří rozptýlená vilová zástavba volně přecházející do zahuštěnější sídelní struktury bytových domů. Za stavebním pozemkem se nachází Tyršův stadion, od kterého je zamýšlený dům oddělen stávající zahradou se vzrostlými stromy. Do této klidné lokality jsme navrhli dům obsahující byty vyššího standardu.
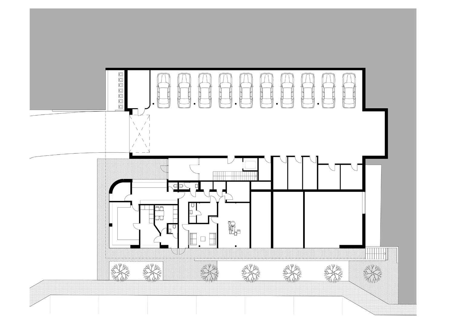
Objekt je řešen jako třípodlažní s polyfunkčním parterem a podzemními garážemi. V nejvyšším podlaží se nachází dva byty, ve středním podlaží tři až čtyři byty. Součástí všech bytů jsou terasy obíhající ze všech stran domu. Dva byty ve druhém podlaží jsou navíc přímo otevřeny do parku. Z veřejné části tohoto prostoru jsou k těmto bytům přičleněny soukromé zahrady.
V parteru jsou navrženy prostory pro zdravotnická zařízení a laboratoře. Tyto provozy jsou přístupné samostatně přímo z ulice Mendlova.
The design of this house is inspired by the locality with scattered villas gradually changing into a denser structure of apartment buildings. Behind the building plot, there is the Tyrš stadium and it is separated from the intended house by the garden with full-grown trees. We suggest building a house with apartments of higher standard in this locality.
We designed it as a three storey building with a multifunctional parterre and underground garages. In the top floor, there are two apartments, in the second floor, there are three. All the apartments have access to terraces that run around the whole building. Moreover, two flats in the second floor have a view of the garden – park. These flats also include private gardens.
We also designed the space for health-care facilities and laboratories in the parterre. These facilities have a separate access from Mendlova street. The garden – park behind the house is intended to be accessible to the public.
Architektonická studie 2012, realizace 2013–2015
Lokalita: Mendlova ul., Opava
Stavebník:
REZIDENCE MENDLOVA s.r.o.
Autor studie: Kamil Mrva, Martin Rosa / Kamil Mrva Architects, s.r.o.
Autor projektu: Martin Matušek / AMG studio s.r.o.
Foto:
Studio Toast
Rezidence Mendlova v Opavě
ARCHITEKTONICKÁ STUDIE
客服
消息
收藏
下载
最近


























