查看完整案例

收藏

下载
/ Espace de congrès au bord du Sornin
Espace de congrès au bord du Sornin
mission
concours lauréat – Base loi MOP+ EXE+OPC+SSI+SIGN+MOB
type
construction neuve
maître d’ouvrage
Mairie de Charlieu
maître d’œuvre
CoCo architecture mandataire, Bost, GBA, Arter, Sigma acoustique, B Ingénierie
date
2019-2027
surface
990m²
prix
3,5 M€ HT
lieu
Charlieu (42)
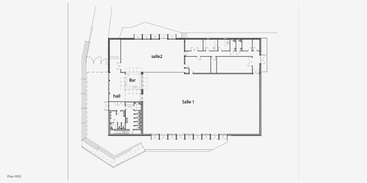
programme
espace polyvalent pour accueillir diverses manifestations (congrès, mariage, mais aussi loto ou thé dansant)
Ce projet se démarque par les choix architecturaux et paysagers opérés dès la conception du projet en proposant au visiteur une plongée dans l’imaginaire des maisons bourgeoises. On y retrouve les symboles de l’allée monumentale arborée, du jardin clos, du verger ou encore la présence d’un parvis qui offre une vision dominante sur la rivière, les champs et le château de Tigny.
Le bâtiment qui s’implante en bord de rivière et en frange de ville se démarque par son bardage métallique embouti et perforé. Il forme une paroi complexe qui joue avec les reflets de la nature en journée et se transforme en lanterne énigmatique et scintillante la nuit.
Le projet a été pensé afin de garantir la polyvalence des espaces grâce à des systèmes constructifs axés sur la modularité. Un système de volets et cloisons acoustiques amovibles permettent de s’adapter aux différents usages : utilisation en journée avec des salles largement ouverte sur l’extérieur, utilisation festive avec la fermeture des volets pour maîtriser l’impact acoustique, mutualisation des salles ou au contraire événements qui se déroulent en simultanés.
Les salles pouvant s’adapter aux différents besoins de la commune et de ses habitants permet un investissement optimal qui garantit la durabilité du bâtiment.
客服
消息
收藏
下载
最近











