查看完整案例

收藏

下载
two row houses, dehesa de la villa. madrid
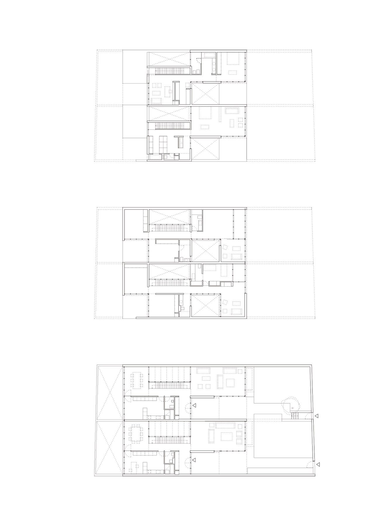
the project develops two terraced single-family homes for two clients who decide to join forces building on an old house in disuse of the pasture of the town. the plot enjoys a privileged situation in front of the pine grove of the pasture and with south orientation. it is actually two narrow and deep mediator plots (8.50 x 33 m) that have access to the street on both fronts with an uneven floor between one access and the other. the housing program is developed in four floors; semi-basement and ground floor solve the public and services part with differentiated access, and the first and second floors of rooms, are adapted specifically to the needs of each family. the housing solution is supported by two operations: the volume sponge maximum buildable by two patios that fill the solid capacity with light, and the alternation of full and empty by plants that allows all rooms of the house to enjoy an exterior at height. the result has a strong three-dimensional component that is enriched with multiple diagonal views and alternate sequences between interior and exterior. the light floods the whole house and reinforces the effect of continuity that is pursued by unifying the finishes. through a succession of voids, patios, terraces and rooms a perforated volume is formed in which it is not immediate to guess what is outside and what is inside.
facts
location: mártires maristas street 6a and 6b. dehesa de la villa. madrid.
completion date: 2003-2005
built area: 398 sqm (each house)
design team: estudio__entresitio; maría hurtado de mendoza, césar jiménez de tejada, josé maría hurtado de mendoza, carolina leveroni, teresa barco, jorge martínez, verena ruhm, carolin löeser, stefan vogt.
consultans: ignacio aspe (structures), juan carlos corona, david gil (technical engineer)
main contractor: construcciones lahb
photo credits: fernando alda
awards
finalist
II premio de arquitectura enor
客服
消息
收藏
下载
最近













