查看完整案例

收藏

下载
Planar House
Phoenix, AZ, United States.
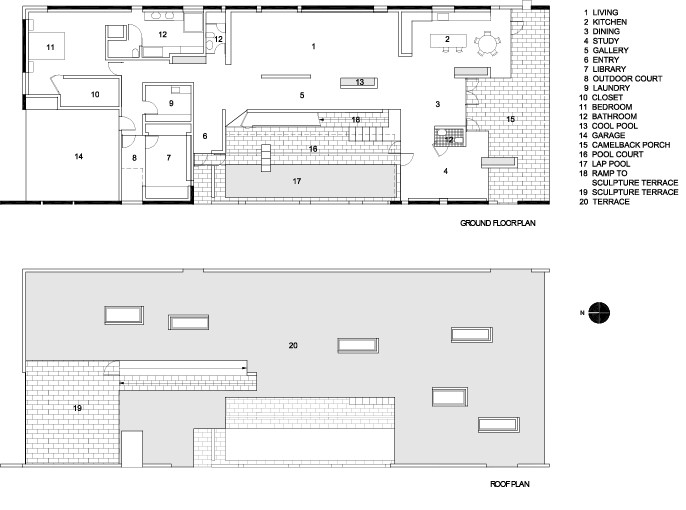
Sited in Paradise Valley, Arizona, with a direct vista to Camelback Mountain, this house is a vessel for a large contemporary art collection. Great 20th-century works by Bruce Nauman, Robert Ryman, Jeff Koons and Jannis Kounellis are part of the collection, in addition to significant video artworks.
Constructed of tilt-up concrete, the flat and rotated nature of the walls merges with the simple orthogonal requirements for displaying art. Shape extensions and light and air chimneys connected to cooling pools articulate the planar geometry. From an entry courtyard, a ramp leads to a rooftop sculpture garden—a space of silence and reflection.
Location
Phoenix, AZ, United States.
Years
2002–2005
Size
3,320 sq ft
Status
Complete
architect
Steven Holl Architects
Steven Holl (design architect)
Martin Cox (project architect)
Tim Bade (schematic design)
Robert Edmonds, Annette Goderbauer, Hideki Hirahara, Clark Manning (project team)
general contractor
The Construction Zone
structural engineer
Rudow & Berry
mechanical engineer
Roy Otterbein
civil engineer
Fleet Fisher Engineering
electrical engineer
Associated Engineering
landscape architect
Steve Martino & Associates
客服
消息
收藏
下载
最近



















