查看完整案例

收藏

下载
由R-BAS大棟建築设计的INSIDE奥体南路店已于广州天河区如期营业。本项目包含室内、部分景观及家具设计。
INSIDE has opened its flagship restaurant and brand headquarter on South Aoti Road, Tianhe, Canton. R-BAS was invited to complete the custom design of the interior, landscape and many of the furniture pieces.
「日常的西餐厅、多元办公区暨社区复合活动中心」,该店被希冀于实现INSIDE琶洲店的赓续与迭代——一处轻松、共享的场域——进而推求空间和人的行为的自由交感。
With the keywords of ‘an everyday bistro, multi-space office and a communal spot for the local residents’, INSIDE Aoti is conceived as a cosy and inclusive room that preserves and further celebrates the design notion of INSIDE Guangzhou, i.e., the behaviourally created space acting as a context of the customers’ activities.
奥体南路店位于广州环城高速外一座正值适应性改造的商业园区内,面朝数间社区运动场。鉴于原建筑进深18m,单面采光致使室内体验与商业剥离率异常消极,如何将此尺度积极转化是本次方案的重点。
Facing several sports fields by a pedestrian road, the new restaurant is located within a once thriving shopping mall that is undergoing an adaptive renewal outside the Guangzhou Ring Motorway. The existing site is 18m deep with no openings on the rear. Thus, R-BAS’s main design intent is to effectively increase the footfall, optimising the ungifted, dark aura of the interior.
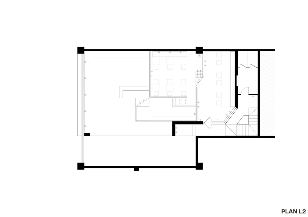
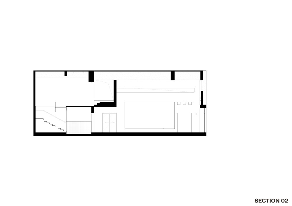
经由协商,一个根植于露天剧场的形态学重写本被提出。R-BAS采用现场浇筑的混凝土向店内置入了阿利坎特红墙式的巨构。五个不同标高的平台巧妙地容纳就餐、自习、办公、活动及内部更衣的功能。其下方为后厨与休息区,旨在同时提升商业坪效。前勤平台之间没有硬质分隔以创造延续增高的人行路径,并灵活地连接通往一层后厨的艺术化的黑色钢制楼梯和顶部错层会议区。最上层平台背墙吊挂的镜面通过精确计算,反射出运动场周边茂密盎然的自然光景。故此,开阔分明的铺内/外视线被室外/内的上下观者获得。
Considering the status quo, the idea of placing a thick massing of concrete onto the site was agreed through negotiation. This morphological palimpsest of La Muralla Roja features five platforms of varying heights with kitchen underneath, slowly ascending, offering spaces for dining, studying, coworking, recreational activities and staff relaxation, connecting an exquisite staircase made of steel at the back and an internal meeting room on the adjacent attic level. Users can meander freely without solid barriers on the platforms; an angled horizontal mirror hung atop subtly reflects the lush vegetation around the sports fields. Thereby a clear holistic vision is gained from both the indoor and outdoor perspectives.
巨构立面的边界被模糊后移,使下沉水吧的前方区域空出,形成半户外。加掺炭黑的水洗石铺地渗透至抬高的开放庭院,重申了空间的社区公众性。混凝土长椅旁的树池栽植了适应广州在地气候的羽绒狼尾草(Pennisetum setaceum)及大型凤凰木(Delonix regia);在室内则是密叶猴耳环和小型凤凰木。三两方桌安置树下,仿佛从前邀约邻里来做客一般。
The black exposed aggregate concrete laid on L1 stretching from the area at the front of the sunken bar to the raised al fresco yard is extroverted in nature, depicting a public liminal realm amidst the façade of the massive platform-structure being shifted inwards. Accommodating several benches and tables under the foliage shadows of a flamboyant tree (Delonix regia) and alongside a tuft of gently swaying fountain grass (Pennisetum setaceum) grown in the carefully designed planters, the open yard brings a laid-back sense of philoxeníā déjà vu.
R-BAS在方案中试图探讨「室内」概念的反叛性解构。这种宣言意在阐述一种逻辑上粘连的空间三要素(天、地、墙)形式上的不粘连性。前勤同后勤区域的隔墙被设计为不到顶。阁楼的会议区墙面一侧保留了100mm宽空隙,不与外立面墙面相接,以构建「无形的栏杆」。一条100mm高的缝绵亘于作为主体元素的平台体块底部,彰显该混凝土巨构拒绝成为「地面的藩属」的趣味。
INSIDE Aoti seeks to question the perception of the interior as interiority by developing a language of uncontinuous architectural elements—the wall, floor and ceiling planes that define the physical boundaries of space. Partition walls between the costumer and service zones extend only partway high. At the upper attic meeting room, where a 100mm gap is left from the perpendicular exterior wall of the building, a balustrade is constructed invisible in itself. Decorated with a linear fissure at the base, the monolithic concrete massing seems afloat over the ground, declaring independence from the tribute to the floor.
平面图
剖面图
轴测图
项目信息
项目名称:INSIDE奥体南路店
Project Name: INSIDE Anti
项目设计完成年份:2023
Completion Year: 2023
建筑面积:360m2
Gross Built Area: 360m2
建筑设计/室内设计:R-BAS大棟建築
Design Firm: R-BAS
主创建筑师:吴泽玮
Lead Architects: Ryan Wu
项目地址:广东省广州市天河区
Project location: Guangzhou, Guangdong
委托方(公司名称)Client:四月五月(广州)餐饮管理有限公司
项目类别:餐厅酒吧室内设计;共享办公室室内设计
Type&Scope: Restaurant & Bar Interiors; Cowork Interiors
材料:现浇混凝土;水洗石;纹理漆
Materials: Concrete; Exposed aggregate concrete; Textured paint
摄影师:张超
Photo credits: ZCStudio
客服
消息
收藏
下载
最近






















