查看完整案例

收藏

下载
ODE TO WOMEN
Client
La Diva
Location
Valencia, Spain
Category
Commercial
Dimensions
750 m2
Year
2021
The restaurant is a tribute to a woman, a Diva. The space, inspired by the Modernist architecture of the city of Valencia, is designed as a stage to show off her freedom and virtuosity.
The ambiance is transformed through light. Used as a material, it allows a day-night duality that puts in display an extravagant and outrageous look that adds to the Diva character.
CHALLENGES
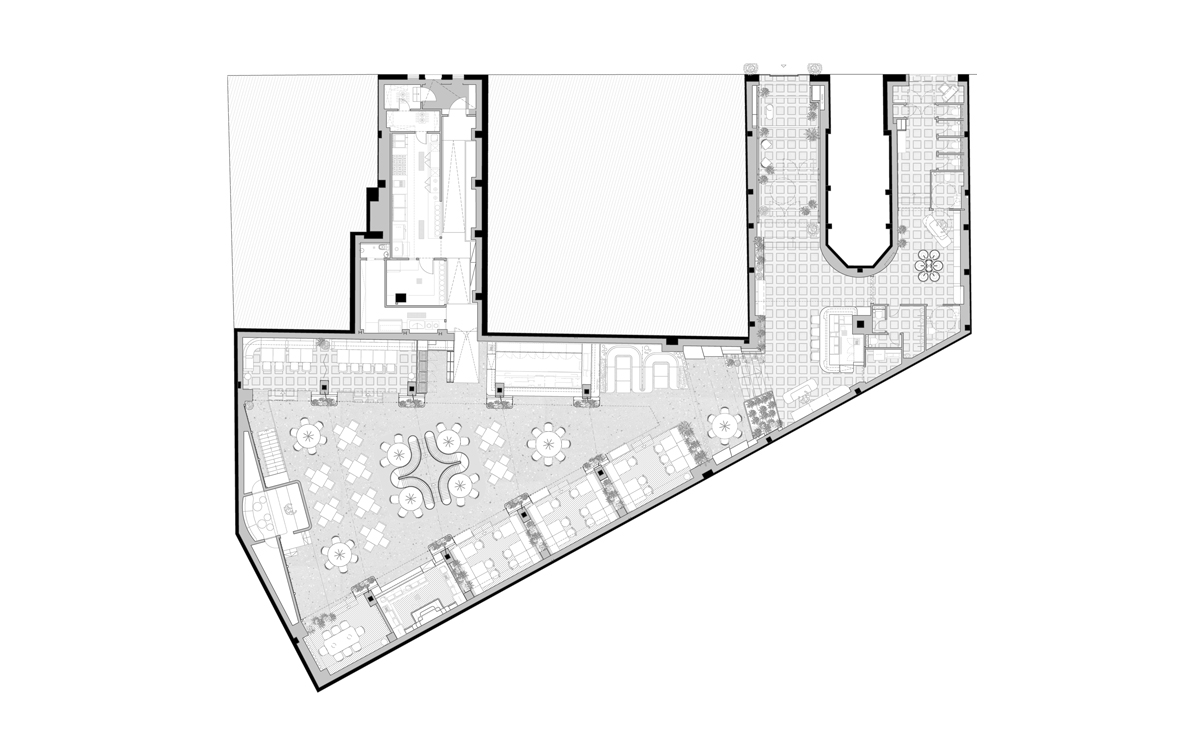
Taking advantage of the industrial characteristics and size of the premise, we transformed the space to support the concept in scale and character. Different lounge and dining areas are visually impactful through the combination of materials such as wood, fabrics and brass.
One of the main challenges was creating versatile enough areas to be used from lunch through dinner and late-night drinks beyond the light changes. Warm and sensible enough to hold a bite or a lunch, while powerful and resistant enough to act like a night club. The transformation was a must.
Being such a big premise, we generated a unifying structure that accommodates the whole space and embraces the skylight. Creating a particular environment that helps it work as a whole.
CHALLENGES
Taking advantage of the industrial characteristics and size of the premise, we transformed the space to support the concept in scale and character. Different lounge and dining areas are visually impactful through the combination of materials such as wood, fabrics and brass.
One of the main challenges was creating versatile enough areas to be used from lunch through dinner and late-night drinks beyond the light changes. Warm and sensible enough to hold a bite or a lunch, while powerful and resistant enough to act like a night club. The transformation was a must.
Being such a big premise, we generated a unifying structure that accommodates the whole space and embraces the skylight. Creating a particular environment that helps it work as a whole.
INSPIRATION
She has two sides: the show-woman and the more intimate. Both are perfectly intertwined and differentiated at the same time. The main space holds a theatrical approach enhanced by natural light and great heights, enhanced by vegetation, furniture pieces and the lighting installations. While the more intimate side is captured through the galleries or boxes, these allow the singular elements to come together and create private, yet mighty areas.
OUTCOME
When all the mentioned elements such as lighting, surrounding lattice, combination of materials and vegetation come together, we are able to achieve a unique space full of character.
The very typical hydraulic tiles, particular to Modernism, play a significant role. Creating a natty and flirtatious atmosphere that combines with fancier materials like wood that builds into the unique surroundings.
A great gastro environment, distinctive and mutable where our Diva’s personality is captured and showed. Distinctive elements like the DJ front and the bathrooms, are exceptional nodes where the daring and jolly charm of our Diva can be felt.
客服
消息
收藏
下载
最近























