查看完整案例

收藏

下载
Pure love
Название
Pure love
Локация
г. Киев, ЖК "Новопечерские липки"
Площадь
83.4 м.кв.
Статус
В процессе реализации
Игра воздуха и света
Pure love
Дизайн двухкомнатной квартиры с детской
. Проект для семьи: мамы, папы и мальчика. Главное пожелание клиентов – создать просторную и очень светлую квартиру. Локация – Киев, Печерск. ЖК Новопечерские липки.
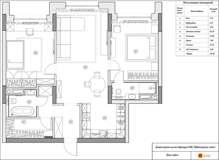
Ещё при первой встрече хозяйка рассказала нам о своей мечте: просторной квартире, наполненной светом и воздухом. Мы сразу же принялись за реализацию и создали дизайн двухкомнатной квартиры с детской. На площади 83,4 кв. м нам удалось организовать отдельные детскую, спальню, разделить санузлы, выделить гардероб, и, конечно же, сделать воздушную и светлую студию.
Главная задача, которая стояла перед нами во время работы над проектом – это раскрытие всего потенциала площади квартиры. Планы были грандиозные, поэтому каждый сантиметр ценился особенно дорого. Мы сумели оптимизировать площадь помещений, это позволило создать дизайн двухкомнатной квартиры с детской, где нет ощущения стеснённости и дискомфорта.
Каждый элемент квартиры пропитан светом и простором. Это заслуга двух приёмов: грамотной планировки и использования материалов, визуально увеличивающих пространство.
Гостиная стала центральным элементом дизайнерской композиции. Мы предложили сразу два решения: нежные, пудровые оттенки или более сдержанные, кофейные нотки. Оба варианта отлично обыгрывали пространство, наполняя его уютом.
Дальше – спальня. Мы стремились сделать эту комнату настоящим уголком умиротворения и спокойствия. Использовали спокойные, базовые оттенки в мебели и декоре, разбавляющие основной белый цвет стен и потолка.
Детская комната получилась светлой и достаточно большой благодаря грамотной расстановке мебели: рабочий стол по периметру стены, диван-трансформер, скрытая система хранения для вещей и игрушек.
Прогулявшись по этой квартире, ощущаешь прилив энергии и сил, но в то же время абсолютное спокойствие и умиротворённость. Дизайн двухкомнатной квартиры с детской получился таким, о котором мечтали заказчики: уютным, современным и функциональным.
В этом проекте каждая деталь имела значение. Грамотная планировка позволила открыть скрытые участки помещений. Подбор оттенков придал дизайну лёгкость и воздушность. Мебель и декор дополнили пространство акцентами и сделали квартиру уютной.
Этот дизайн двухкомнатной квартиры с детской отличный пример того, как на относительно небольшом пространстве могут уживаться функциональность и комфорт, где у каждого члена семьи есть свой уютный уголок.
客服
消息
收藏
下载
最近























