查看完整案例

收藏

下载
深圳南山区新建成的金蝶云大厦与现有软件园一期形成互补。这座 211 米高的大厦位于绿化带的边缘,为领先的企业管理云公司金蝶提供办公、会议和餐饮空间。
©STUDIO FANG
The Cloud Tower completes the existing Kingdee software park in Shenzhen’s Nanshan neighborhood, which is an emerging tech district. Located on the edge of a green strip, the 211-meter-high tower provides space for offices, conferences and a restaurant for Kingdee, a leading provider of enterprise management cloudservices globally.
▼项目鸟瞰,aerial view of the project© TianFangfang
▼项目概览,overview of the project© TianFangfang
大厦基座位于两个现有办公翼之间的狭小地块上。新高层建筑的五边形平面最大限度地利用场地空间。随着塔楼超出现有建筑的高度上升至高空,相对较小的开放式底层建筑面积在上层办公楼层得到延伸。这种延伸创造了独特的悬臂,标志着软件园的入口,并与邻近的建筑和公园等城市环境相呼应。塔楼雕塑般的整体形状以精心布置的悬臂为特色,并根据视角的不同而变化。▼体量,volume©HENN 海茵建筑
The tower base is nestled between two existing office wings, on the narrow space that is still free on the site. The pentagonal footprint of the new high-rise is the result of maximizing the given space on site. The relatively small floor area of the open base floors is extended in the upper office floors as the tower rises above the existing buildings towards the sky. This extension creates distinct cantilevers, which mark the entrance to the software park and relate to its urban surroundings: its neighboring buildings and the park. The tower’s sculptural overall shape is characterized by the consciously placed cantilevers and varies depending on the viewpoint.
▼大厦基座,tower base©TianFangfang
向外看,基座楼层保持开放,以形成一个公共大厅,作为城市客厅,上方是一个高架花园,可举办活动和艺术展览。花园作为现有建筑的连接平台,内设休闲空间、体育设施和咖啡馆,同时面向公众开放。开放式基座让庭院和较低的办公楼内都能获得充足的日光和新鲜空气。▼城市客厅与功能,urban living room and program©HENN 海茵建筑
Towards the outside, the base floors are kept open in order to create a publicly accessible lobby, which serves as an urban living room, and an elevated garden above, where events and art exhibitions can be held. The garden functions as a connecting platform for the existing buildings and houses leisure spaces, sports facilities, and cafés—also benefitting the wider public in the area. The open base allows for daylight and air in the courtyard and the lower office buildings.
▼休闲空间,leisure spaces©TianFangfang
▼体育设施,sports facilities ©TianFangfang
▼开阔的视野,wide field of vision©TianFangfang
塔楼的外立面给人一种折叠外壳的感觉,由相互错开的不锈钢面板组成。受天空中云朵的轻盈与可塑性启发,浮雕般的立面元素在不同时间与天气下呈现出丰富的光影效果。立面反射玻璃表面捕捉着当下的云景,使建筑仿佛与天空融为一体。建筑各立面设置了根据朝向与日照角度灵活变化的面板,既减少了直射阳光,又保证室内拥有充足自然采光。
▼立面,facade©HENN 海茵建筑
The façade of the Cloud Tower gives the impression of a folded envelope, which is composed of stainless-steel panels slightly shifted against each other. Inspired by the lightness and transformability of clouds in the sky, the relief-like façade elements create a lively interplay of light and shadow that changes depending on the time of day and weather. The reflective glass surfaces of the façade capture the current cloudscape, making the building appear to merge with the sky. Flexible panels, which vary depending on the side of the building and the position of the sun, help to reduce direct sunlight and allow plenty of daylight to flow into the interior.
▼外立面,façade ©TianFangfang
▼项目夜景,night view of the project© TianFangfang
该塔楼在城市数千米范围内都能看到,它为金蝶的总部提供了一个新的显著象征,同时积极融入现有的城市和社会结构肌理。
Visible for miles around the city, the tower gives Kingdee a new prominent home for their head office and contributes to the urban and social fabric of the city.
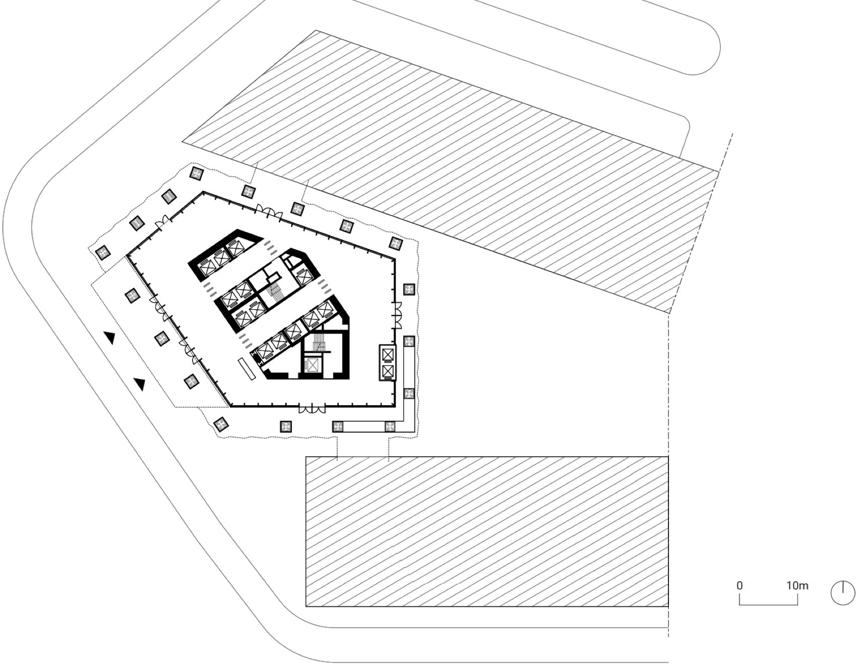
▼场地平面,site plan© HENN 海茵建筑
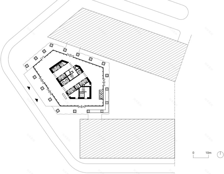
▼首层平面,ground floor plan©HENN 海茵建筑
▼5层平面,fourth floor plan©HENN 海茵建筑
▼18层平面,seventeenth floor plan©HENN 海茵建筑
▼剖面,section©HENN 海茵建筑
▼模型,model© STUDIO FANG
▼模型细部,model details© STUDIO FANG
项目信息
金蝶云大厦,中国深圳,2025
建筑竞赛:一等奖
动工年份:2020
建成年份:2025
设计范围:建筑设计、概念到方案设计、初步设计和施工文件审查、场地审查
设计类型:新建
业主:金蝶国际软件集团有限公司
地址:广东省深圳市南山区南山高新技术开发区科技南十二路2号
场地面积:5,000 m²
总建筑面积:98,800 m²
建筑高度:211 m
楼层:地上40层,地下2层
工位:6,000
设施:办公室餐厅会议区空中花园
可持续认证:LEED 铂金
建筑设计:HENN海茵建筑
设计团队
主持合伙人:Hans Funk
项目总监:王雨辰, 廖沙
总设计师:Martin Henn
Giovanni Betti, Denise Gellinger, Thomas Grabner, 李元昊, Janine Parvis, Georg Pichler, 杨雅茜, 张婉怡
竞赛团队
主持合伙人:Martin Henn
Thomas Grabner, Nora Graw, Klaus Ransmayr
本地规划合作伙伴:深圳华阳国际设计集团
室内设计:Gensler
顾问:PAG Façade Systems (立面), ACLA (景观建筑), RDI (灯光设计)
施工方:中国建业(总包) 方大集团股份有限公司(外墙)
Project info
Kingdee Tower, Shenzhen, China, 2025
Competition :2014 (1st prize)
Construction start:2020
Completion :2025
Scope of work :Architecture Design, Concept to Schematic Design, Design Development and Construction Documentation Review, Site Review
Typology :New build
Client :Kingdee International Software Group Company Limited
Address:No.2, Hi-tech Development Zone Hi-tech South 12th Road, Shenzhen, Guangdong
Site area :5,000 m²
Gross floor area:98,800 m²
Height:211 m
Floors:40 above ground, 2 below ground
Workstations:6,000
Program:OfficeRestaurantConference areaElevated garden
Sustainability certificate:LEED Platinum
Architecture:HENN
Project team
Partner in charge:Hans Funk
Project directors: Yuchen Wang, Sha Liao
Design Principal:Martin Henn
Giovanni Betti, Denise Gellinger, Thomas Grabner, Yuanhao Li, Janine Parvis, Georg Pichler, Yaxi Yang, Wanyi Zhang
Competition team
Partner in charge:Martin Henn
Thomas Grabner, Nora Graw, Klaus Ransmayr
Local Planning Partner (LDI):Shenzhen Capol International & Associates
Interior Design:Gensler
Consultants:PAG Façade Systems (Façade), ACLA (Landscape architecture), RDI (Lighting design)
Contractors:CSCEC (General contractor), China Fangda Group (Façade contractor)
客服
消息
收藏
下载
最近

































