查看完整案例

收藏

下载
Het Zinken Schip
Rotterdam
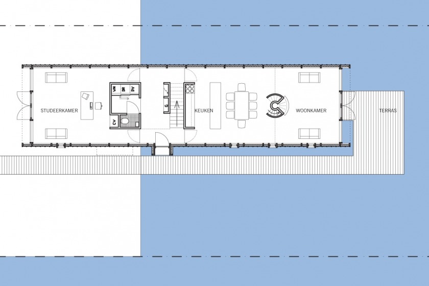
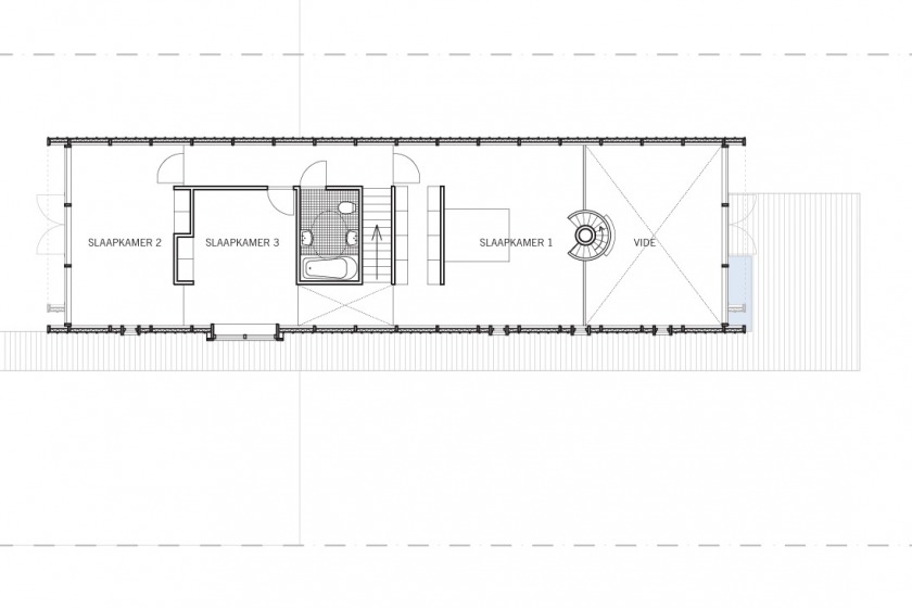
Het Zinken Schip (The Zinc Ship) is a competition entry for private housing in the newly developed area of Rotterdam Nesselande. Length and shape of the house enforce the experience of the vast and open landscape in this area.
Thanks to the open floor plan it is possible to feel the lake throughout the whole house. The outside of the house is made of a curved zinc roof which blends perfectly in the gray shades of the Dutch skies.
Competition
2005
Gross floor area
185 m²
Links
Architectuurcatalogus
Architectenweb
Team
Joris van Hoytema
客服
消息
收藏
下载
最近













