查看完整案例

收藏

下载
Rodinný dům v Hodoňovicích
Přízemní rodinný dům je navržen pro bydlení mladé rodiny s kocourem. Stavebníci si náš ateliér vybrali na základě referencí v časopisech a již od počátku chtěli jednoduchý malý dům na malé parcele. Proto jsme jej navrhli umístit co nejblíže k východní hranici pozemku, aby byla jeho nezastavěná část využitelná v co největší míře jako zahrada.
Návrh vychází z principu tzv. „Sokratova domu“, jehož obytné místnosti jsou rozměrnými okny otevřeny směrem na jihozápad, zatímco v zadní části domu se nachází místnosti s technickým, skladovacím a hygienickým zázemím. Proti letnímu slunci jsou okna chráněna přesahem střechy, zatímco zimní slunce naopak dopadá hluboko do nitra domu. Střešní přesah zároveň kryje velkou pobytovou terasu a dvě parkovací stání.
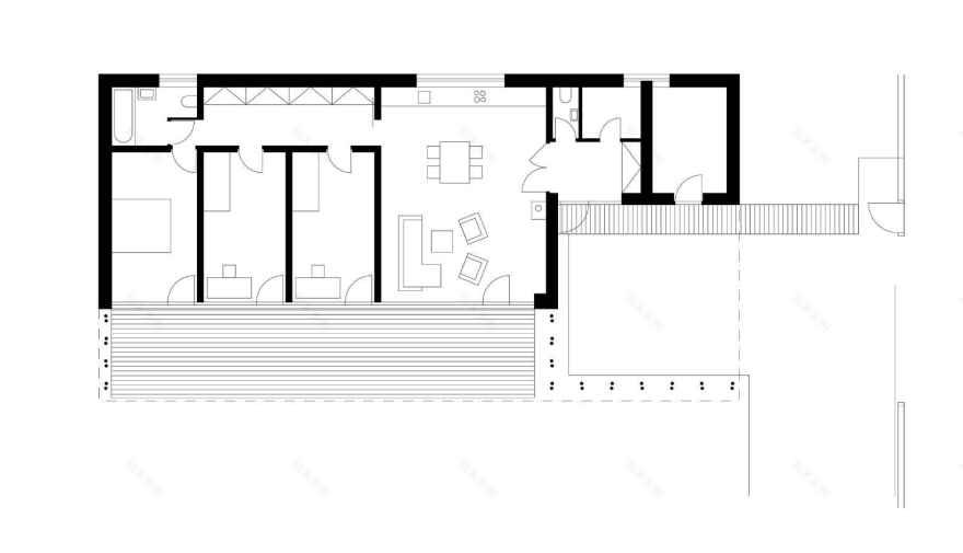
Dispoziční řešení je navrženo v třímetrové modulové síti. Na hlavní obytný prostor domu navazuje klidová část se dvěma dětskými pokoji a ložnicí rodičů.
Stěny domu jsou realizovány z pórobetonových tvárnic, konstrukce pultové střechy je dřevěná. Vnější fasádu domu tvoří cementotřískové desky v přírodním odstínu.
This single storey house was designed for a young family with a cat. They chose our studio after seeing the recommendations in magazines and decided for a simple small house on a small plot right from the beginning. Therefore, we suggested it be placed as close to the eastern border of the plot as possible and use the rest of the area as a garden.
The design is based on the “Socrates’ house” principle having the living quarters with large windows turned to the south-west, whereas the rooms for the technical, storage and sanitary purposes are placed in the back of the house. The overlap of the roof protects the windows from the summer sun, while the winter sun shines deep into the house. The overlap of the roof also covers a big terrace and two parking places.
The layout of the house is based on 3-metre module network. The main living room is separated from the section for resting with two children’s rooms and a bedroom for parents. The walls of the house are made of aerated concrete blocks and the framework of the roof is wooden. The façade of the house is made of cement chipboards and has a natural look.
Architektonická studie a projekt 2008, realizace 2008–2012
Autor: Kamil Mrva
Spolupráce: Jitka Pospíšilová, Jaroslav Holub, Lenka Burešová
Foto:
Studio Toast
Rodinný dům v Hodoňovicích
Původní stav
客服
消息
收藏
下载
最近











