查看完整案例

收藏

下载
architects Henley Halebrown
Piano Factory
London
2021–
A mixed use development providing purpose built student accommodation and commercial space on the site of the former Broadwood Piano Factory.
The designs for the Piano Factory will strengthen the creative community on Fish Island, providing homes for the University of the Arts London fashion students, affordable incubator space for their graduates and a new base for Stour Trust, a local business that provides affordable workspace for creatives. The project integrates an existing boiler house and free-standing chimney stack with 3 new building in a new ensemble interspersed with amenity spaces and new areas of public realm. The largest of which will transform the arrival point on Fish Island for visitors crossing the River Lea footbridge from the Olympic Park.
Piano Factory received planning permission in September 2022.
Proposed view on approach across the River Lea bridge from the Olympic Park
New and existing structures give shape to a new piece of public realm
The location of the site offers the opportunity to create a meaningful arrival space for Fish Island on approach across the bridge from the Olympic Park
The existing boiler house, chimney and 3 new buildings are arranged to create a series of public and private spaces and courts
A combination of 3, 4, 5 & 6 storey elements provide a rich and varied street scene
Site plan
Site figure ground
A sinuous brick gable accommodating the commercial buildings stair, provides a back drop to the canopies of the existing trees
The character and appearance of the scheme have been designed in response to the industrial legacy of Fish Island
The character and appearance of the scheme have been designed in response to the industrial legacy of Fish Island
Concept sketch of a ‘cluster of buildings’
View of student entrance and amenity yard
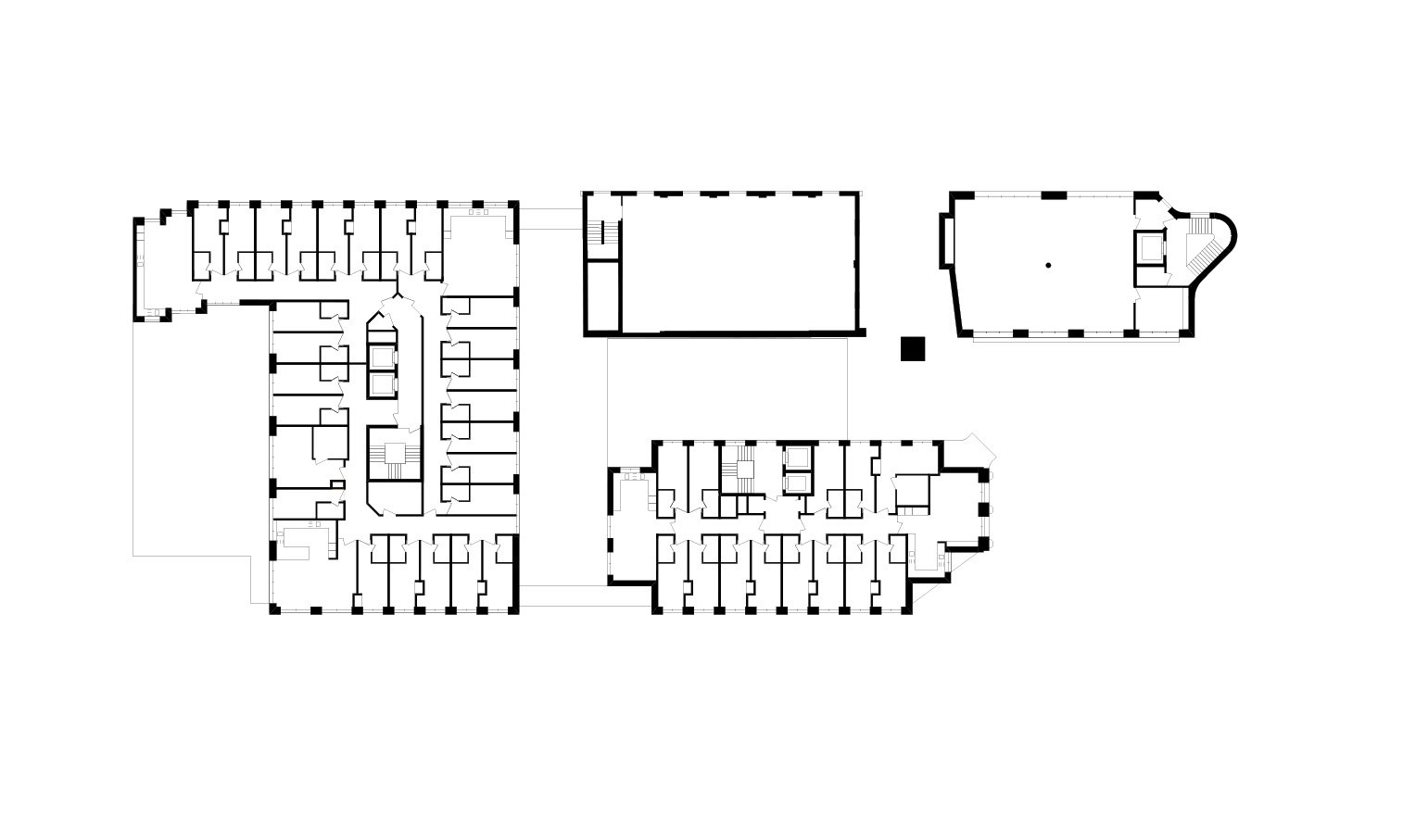
Ground floor plan
First floor plan
Façade composition and detail
Typical floor plan
View of rooftop yard space
Yard elevation with integrated 'benches’
Technical
Appointment: 2021
Client: Southern Grove / University of the Arts London / Stour Trust
Awards
Housing Design Awards,
(Shortlisted)
2025
客服
消息
收藏
下载
最近





















