知末
知末
创作上传
VIP
收藏下载
登录 | 注册有礼
知末案例   /   建筑   /   商业综合体

Merzifon İş ve Yaşam Merkezi – Ali Yönder

2021/01/12 00:00:00
查看完整案例
微信扫一扫
收藏
下载
Merzifon İş ve Yaşam Merkezi
Ekip
Ali Yönder
İşveren
Merzfion Belediyesi
Tarih
2017
Yer
Amasya, Tr
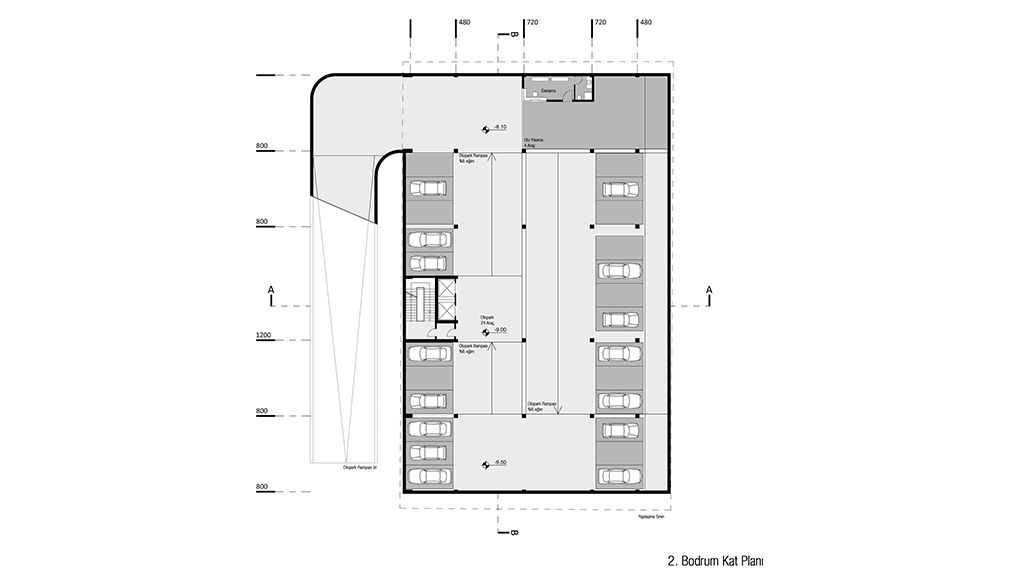
Merzifon İş ve Yaşam Merkezi – Ali Yönder-9
Merzifon İş ve Yaşam Merkezi – Ali Yönder-10
Merzifon İş ve Yaşam Merkezi – Ali Yönder-11
Merzifon İş ve Yaşam Merkezi – Ali Yönder-12
Merzifon İş ve Yaşam Merkezi – Ali Yönder-13
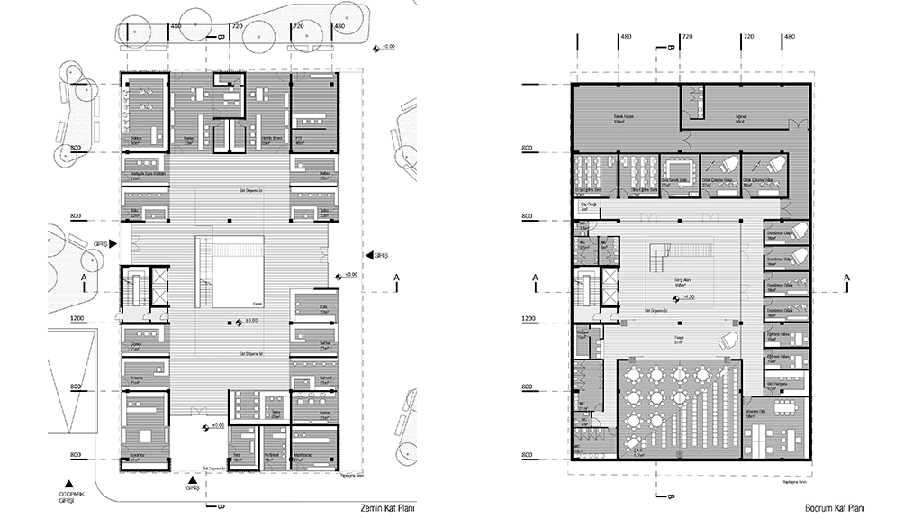
Merzifon İş ve Yaşam Merkezi – Ali Yönder-14
Merzifon İş ve Yaşam Merkezi – Ali Yönder-15
Merzifon İş ve Yaşam Merkezi – Ali Yönder-16
Merzifon İş ve Yaşam Merkezi – Ali Yönder-17
Merzifon İş ve Yaşam Merkezi – Ali Yönder-18
Merzifon İş ve Yaşam Merkezi – Ali Yönder-19
Merzifon İş ve Yaşam Merkezi – Ali Yönder-20
Merzifon İş ve Yaşam Merkezi – Ali Yönder-21
Merzifon İş ve Yaşam Merkezi – Ali Yönder-22
南京喵熊网络科技有限公司 苏ICP备18050492号-4知末 © 2018—2020 . All photos and trademark graphics are copyrighted by their owners.增值电信业务经营许可证(ICP)苏B2-20201444苏公网安备 32011302321234号
客服
消息
收藏
下载
最近