查看完整案例

收藏

下载
Siedlung Ried, Niederwangen
1983-1990
Auftraggeber: E. Badertscher und E. Zimmermann
Das Projekt Ried W2 entstand als Teil einer vom Atelier 5 erarbeiteten Gesamtplanung, über ein grösseres Baugebiet, das in verschiedene, in sich geschlossene, aber durch eine öffentliche Wegführung miteinander verbundene Einheiten aufgeteilt wurde. Zwei ringartig ineinander verflochtene dreigeschossige Baukörper umschliessen und formen die öffentlichen Aussenräume der Siedlung. In die beiden Höfe münden die Zugänge zu allen Wohnungen. Die einfache, geschlossene Grundform der Anlage, die gegen den Hof gerichteten Wohnungen, die dichte räumliche Atmosphäre, geben dem Ganzen eine städtische Prägung. Bestimmend für den Charakter des Projektes sind auch die verschiedenen Formen der Erschliessung, die direkten Zugänge vom Hof her zu den zweigeschossigen Wohnungen und die offenen Treppenanlagen zu den Wohntürmen in den Ecken der Gebäude und zu den eingeschossigen Wohnungen in der dritten Etage. Die Wohnungen im Erdgeschoss sind von der Ebene der Höfe so abgehoben, dass ein direkter Einblick von den öffentlichen in die privaten Bereiche nicht möglich ist.
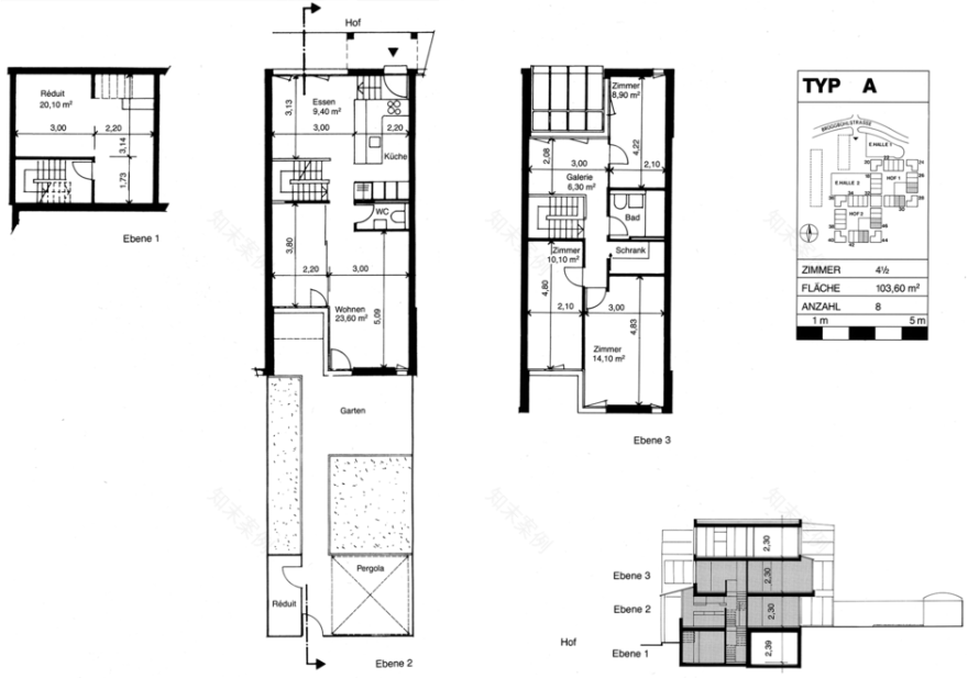
Der Grundriss der Duplexwohnung teilt sich in zwei seitlich angelegte Raumschichten von 2,10 Meter mit einer dazwischen liegenden 80 Zentimeter breiten Erschliessungsschicht, die keinen geschlossenen Flur bildet, sondern immer wieder Teil eines Raumes wird. Die gegeneinander verschobenen Schichten ermöglichen diagonale Durchblicke, die den Grundriss als Ganzes lesbar machen, und sie lassen Flächen offen, deren Verwendung nicht von vornherein festgelegt ist.
Fotos: Yoshi Kusano
Download PDF
Innenhof der Wohnanlage
Blick über den Hof
Im Garten
Treppensituation
Innenaufnahme Wohnraum
Situationsplan
Grundriss Erdgeschoss
Grundriss Wohnungstyp A
Schnitt durch die Anlage
客服
消息
收藏
下载
最近











