查看完整案例

收藏

下载
Martin Kos | Cutis
Na začátku tohoto projektu stála otázka, k čemu nám vlastně slouží zdi domů. K čemu tam jsou dobré? A musí být vždy vyrobené stejným způsobem z cihel, kamene či dřeva?
Nebo můžeme pevné vnější stěny domu zcela vynechat a pokusit se najít nový druh kůže domu, která nabídne jiné možnosti využití. Kůže, která je lehčí a vyrobená z materiálů méně energeticky náročných na výrobu.
Při hledání odpovědi jsem přišel s konceptem domu pojmenovaným Cutis. Dům skládající se z lehké ocelové konstrukce potažené izolační membránou.
Cutis je medicínský výraz pro epidermis a dermis, dvě nejsvrchnější vrstvy naší kůže, dvouvrstvá kůže je použita i na obalení tohoto domu.
Kůže je natažena na lamelový systém žeber o trubkovém průřezu, toho řešení bylo vybráno jako energeticky nejméně náročnější a současně umožňuje značnou volnost při tvarování objektu.
Použitám membrána je kompozitní materiál skládající se ze tří vrstev:
PTFE fiberglass membrane exterior skin
Tranluscent blanket, embedded with aerogel thermal and acoustic insulation
PTFE fiberglass aacoustic and vapor barrier
Tvar objektu určilo několik aspektů. Zaprvé topologie terénu, prudký svah se zlomem za hranicí pozemku. Dále požadavky na vnitřní prostory a orientace ke světovým stranám. Velké okno na jih, otevřené do zahrady s výhledem na město.
Příroda byla inspirací tomuto projektu, tvarem připomíná tělo housenky a anatomie hadí kostry je použita na nosnou konstrukci. Další inspirací byl princip metaballů.
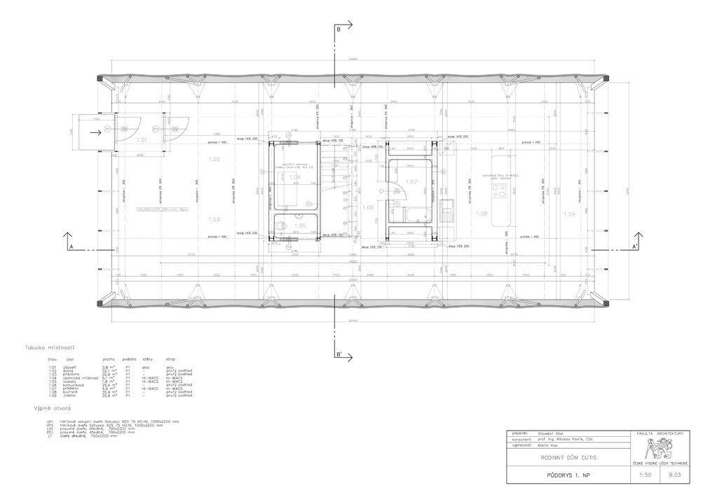
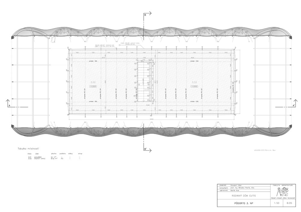
Dům kombinuje bydlení a poloveřejnou část sloužící jako sídlo rodinné firmy, to se nachází hned u vchodu v prvním podlaží společně s kuchyní a jídelnou. Ve druhém patře jsou ložnice a pokoje, nejvyšší patro slouží jako velký otevřený obývací prostor.
客服
消息
收藏
下载
最近










