查看完整案例

收藏

下载
The New Residence at the Swiss Embassy
Washington D.C., US
This scheme placed first in the competition of ten Swiss-American team’s designs for the replacement of the Washington D.C. residence of the Swiss Ambassador. It is not only to be a private house but also a cultural gathering place on which standards and self-image of a country are measured.
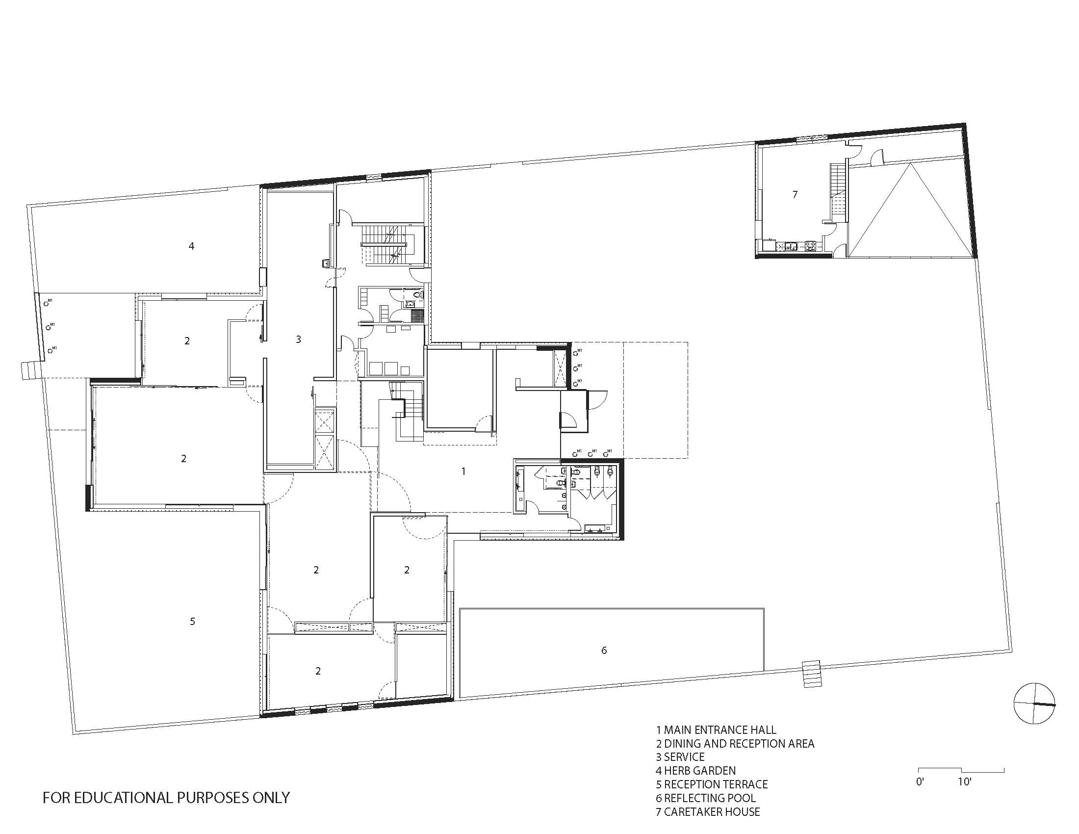
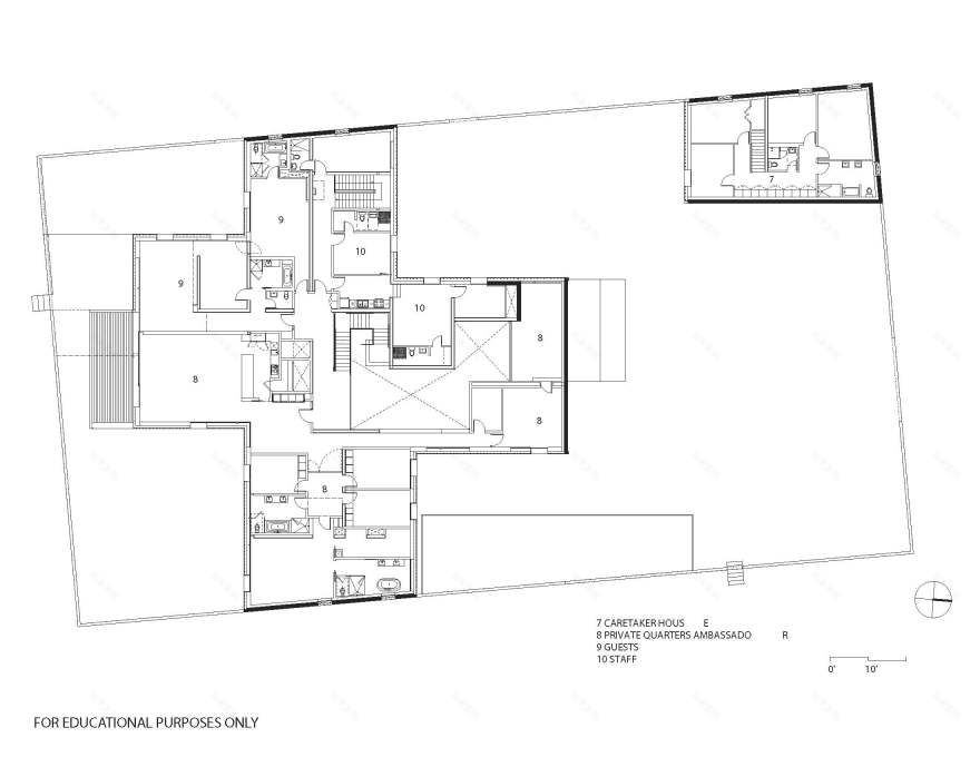
Sited on a hill with a direct view through the trees to the Washington monument in the distance, a diagonal line of overlapping spaces drawn through a cruciform courtyard plan was the conceptual starting point. Official arrival spaces and ceremony spaces are connected along this diagonal line on the first level, while private living quarter functions are on the floor above.
Materials are charcoal integral color concrete trimmed in local slate and sand-blasted structural glass planks. Constructed according to Swiss ‘Minergie Standard’, the south facades use passive solar energy. The roof is a ‘sedum’ green roof with PVC panels.
The existing natural landscape will be clarified with new walkways and trees, while the plateau of the residence defines an arrival square: a reception courtyard and an herb garden with sub-floor wiring flexibilities.
Client
Swiss Federal Office for Buildings and Logistics (BBL)
Location
Washington D.C., US
Years
2001–2006
Size
23,000 sq ft
Status
Complete
landscape architect
Robert Gissinger
architect
Steven Holl Architects
Steven Holl (design architect)
Tim Bade, Stephen O'Dell (associate in charge)
Olaf Schmidt (project architect)
Arnault Biou, Peter Englaender, Annette Goderbauer, Li Hu, Irene Vogt (project team)
Rüssli Architekten AG
Mimi Kueh (project architect)
Justin Rüssli (design architect)
Andreas Gervasi, Phillip Röösli, Rafael Schnyder, Urs Zuercher (project team)
structural engineer
A. F. & J. Steffen Consulting Engineers
Robert Silman Associates
mechanical engineer
B2E Consulting Engineers
B+B Energietechnik AG
interior designer
ZedNetwork Hannes Wettstein
general contractor
James G. Davis Construction
Niersberger Gebäudetechnik Pforzheim GmbH
Timeline
Swiss Ambassador recounts meeting Steven Holl in his 2015 Highlights
January 6, 2016
客服
消息
收藏
下载
最近















