查看完整案例

收藏

下载
Muhliusschule
Die Sporthalle und der Verbindungsbau der Muhliusschule erhalten zur konstruktiven, energetischen und gestalterischen Sanierung eine neue Gebäudehülle. Die Gebäudegestaltung erfährt eine kritische Weiterentwicklung unter Berücksichtigung des älteren baulichen Kontextes.
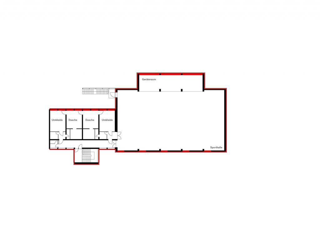
Bestandsanalyse
Die Gestaltung und Substanz des Bestandsbaus ist zunächst zu würdigen: Die sichtbare Tragstruktur, die großzügige Belichtung der Halle und einzelne Gestaltungselemente, wie das Ziegelmuster der Gebäudestirnseite und der auskragende Geräteraum haben einen eigenen, für die Bauzeit typischen, gestalterischen Wert.
Mit der Sanierung gilt es, den erkennbaren Schwächen des Gebäudes nachhaltig entgegen zu wirken: Die sichtbare Tragstruktur ist eine alle Gebäudeteile betreffende Wärmebrücke. Alle Oberflächen sind in schlechtem Zustand. Die nachträglich angebaute Rettungstreppe stört das Gebäudebild. Die bodentiefen Fenster der Halle sind ein Unfallrisiko. Die Fenstergrößen der Umkleiden widersprechen der Nutzung. Der Anschluss zwischen dem Verbindungsbau und der Halle erscheint gestalterisch ungelöst. Im Verhältnis zu den ruhigen Baukörpern des Altbaus scheint der Hallenbau insgesamt unruhig und zu kleinteilig gegliedert.
Neugestaltung
Eine energetische Sanierung unter Erhalt der Bestandsgestaltung wäre nur um den Preis einer Aufdickung und Veränderung wichtiger Gebäudeelemente und Proportionen möglich. Vorgeschlagen wird eine neu gestaltete Gebäudehülle. Diese reduziert die Anzahl der gestalterischen Elemente, beruhigt die Linienführung und löst die gestalterischen Schwächen des Anschlusses zwischen den Gebäuden.
Halle
Die Halle wird weiterhin über beidseitige Obergaden großzügig belichtet. Optisch reichen diese Fensterbänder bis zur Traufkante. Als Rahmenmaterial ist eloxiertes Aluminium vorgesehen. Alle geschlossenen Fassadenflächen darunter erhalten eine neue Hülle aus Mineralwolldämmung und Verblendmauerwerk. Das Mauerwerk nimmt die Farbigkeit des älteren Bestandes auf. Die bodentiefen Fenster der Halle und die Glasbausteine an der Rückwand des Geräteraums werden zugemauert und überdämmt. Ein durchgehendes Lochblech in Farbe der Fensterprofile umhüllt den Gymnastikraum und den Einstellraum für Maschinen/Geräte als Sichtschutz.
Die Lochblechverkleidung wird an der Gebäuderückseite als freistehende Wandscheibe über der Stirnseite des Hallenbaukörpers hinaus verlängert. Hinter der Lochblech-Wandscheibe wird unauffällig die notwendige Außentreppe als einläufige Stahltreppe platziert. Die vorhandene Stahltreppe soll dazu möglichst umgearbeitet werden. Die Außentreppe wird über eine neue Türöffnung in der Hallenstirnseite erreicht.
Verbindungsbau
Die dem Schulhof zugewandten Flure und die verglasten Stirnseiten des Treppenhauses werden geschosshoch mit einer Aluminium-Pfosten-Riegel-Fassade verglast. Geschlossene Flächen des Tragskelettes werden gedämmt und mit einer hinterlüfteten Aluminiumblechfassade in Farbe der Fensterprofile versehen. Die Stirnwand des Treppenhauses erhält ein gedämmtes Verblendmauerwerk. An der Gebäuderückseite wird der Fensteranteil entsprechend der Anforderung der Umkleideräume auf schmalere Fensterbänder oberhalb der Augenhöhe reduziert. Auch hier erhalten die geschlossenen Außenwandflächen ein gedämmtes Verblendmauerwerk.
Dächer
Der vorhandene Dachaufbau muss voraussichtlich vollständig abgebrochen werden. Bauzeitliche Dämmschichten z.B. aus Kork sind häufig PAK-belastet, nach Leckagen feucht, und können nicht erhalten werden. Ältere Sanierungsdämmschichten sind über die Jahre geschrumpft und weisen Lücken zwischen den Platten auf. Die ausführenden Firmen übernehmen für eine Sanierung unter Erhalt des Bestandes keine Gewährleistung. Für die Sanierung beider Dächer wird eine neue Gefälledämmung, möglichst aus Mineralwollplatten, vorgesehen. Die Dachabdichtung erfolgt bituminös. Dachabläufe, Fallrohre und Blitzschutz werden erneuert, Sekuranten ergänzt.
Deckenuntersichten / Gedämmte Innenwand
Die Deckenuntersichten und freistehenden Stützen werden mit verputzen Multiporplatten gedämmt. Gefährdete Ecken der Stützen werden mit Panzergewebe und Schrammboards geschützt. Die Wand zwischen dem Gymnastikraum und dem Einstellraum wird mit einem Mineralwoll-WDVS gedämmt.
WBW 2017
2. Platz
Planung
2017
Bauherr
Stadt Kiel
Standort
Kiel
Team
Julian Hillenkamp, Christoph Roselius, Marcel Tomschi, Hannah Rotzinger
客服
消息
收藏
下载
最近











