查看完整案例

收藏

下载
/ Showroom Gironde Habitat
mission
études et chantier
type
aménagement
maître d’ouvrage
Gironde Habitat
maître d’oeuvre
CoCo architecture
date
2014-2015
surface
120m²
prix
120 000€ HT
lieu
Bordeaux (33)
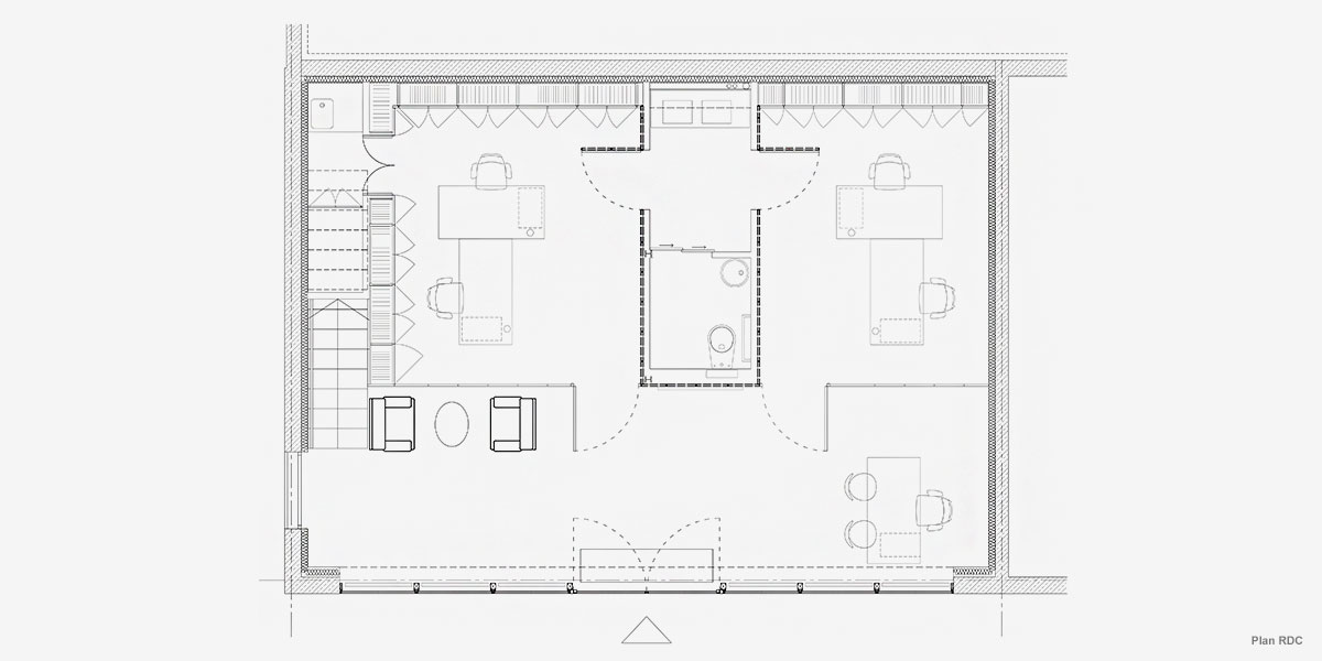
Un lieu de haute qualité architecturale était nécessaire à l’OPH Gironde Habitat pour la présentation et la mise en valeur de ces produits. Proposant 4 bureaux ainsi que toutes les fonctionnalités sanitaires nécessaires, ce projet est un travail sur la finesse de l’aménagement intérieur. Profitant de la hauteur du local a aménager, l’espace propose un hall d’accueil chaleureux, animé de luminaires suspendus, sur lequel donne les bureaux, éclairés en seconds jours par de large baie vitrée. Tous les placards et fonctionnalités ont été soigneusement intégrés afin d’offrir un espace clair et efficient.
CoCo architecture
Dordogne
2 rue Jean-Jacques Rousseau
F-24200 SARLAT LA CANEDA
France
Tel +33 (0)5 53 31 10 42
CoCo architecture
Aveyron
2 avenue de Sauveterre de Rouergue
F-12800 NAUCELLE
France
Tel +33 (0)5 65 46 11 35
CoCo architecture
Drôme
16 rue des Alpes
F-26400 CREST
France
Tel +33 (0)4 75 56 54 03
CoCo architecture
Normandie
120 Bd Amiral Mouchez
F-76600 LE HAVRE
France
Tel +33 (0)7 50 35 07 17
CoCo architecture
Autriche
Lenaugasse 2-4
A-1080 VIENNE
Autriche
Tel +43 (0)1 913 7621
客服
消息
收藏
下载
最近









