查看完整案例

收藏

下载
Hascher Jehle Architektur
Messehalle 11 und Portalhaus FFM
© Svenja Bockhop, Berlin
© Svenja Bockhop, Berlin
© Svenja Bockhop, Berlin
© Svenja Bockhop, Berlin
© Svenja Bockhop, Berlin
© Roland Halbe, Stuttgart
© Svenja Bockhop, Berlin
© Svenja Bockhop, Berlin
© Svenja Bockhop, Berlin
Projekt
Messehalle 11 und Portalhaus
Ort
Frankfurt am Main
Architekt
HASCHER JEHLE Architektur, Berlin
Bauherr
2006-2009
WB
BGF
Auszeichnungen
Deutscher Architekturpreis 2011 | Engere Wahl
Deutscher Holzbaupreis 2011 | Anerkennung
pbb Architekturpreis 2010 | Anerkennung
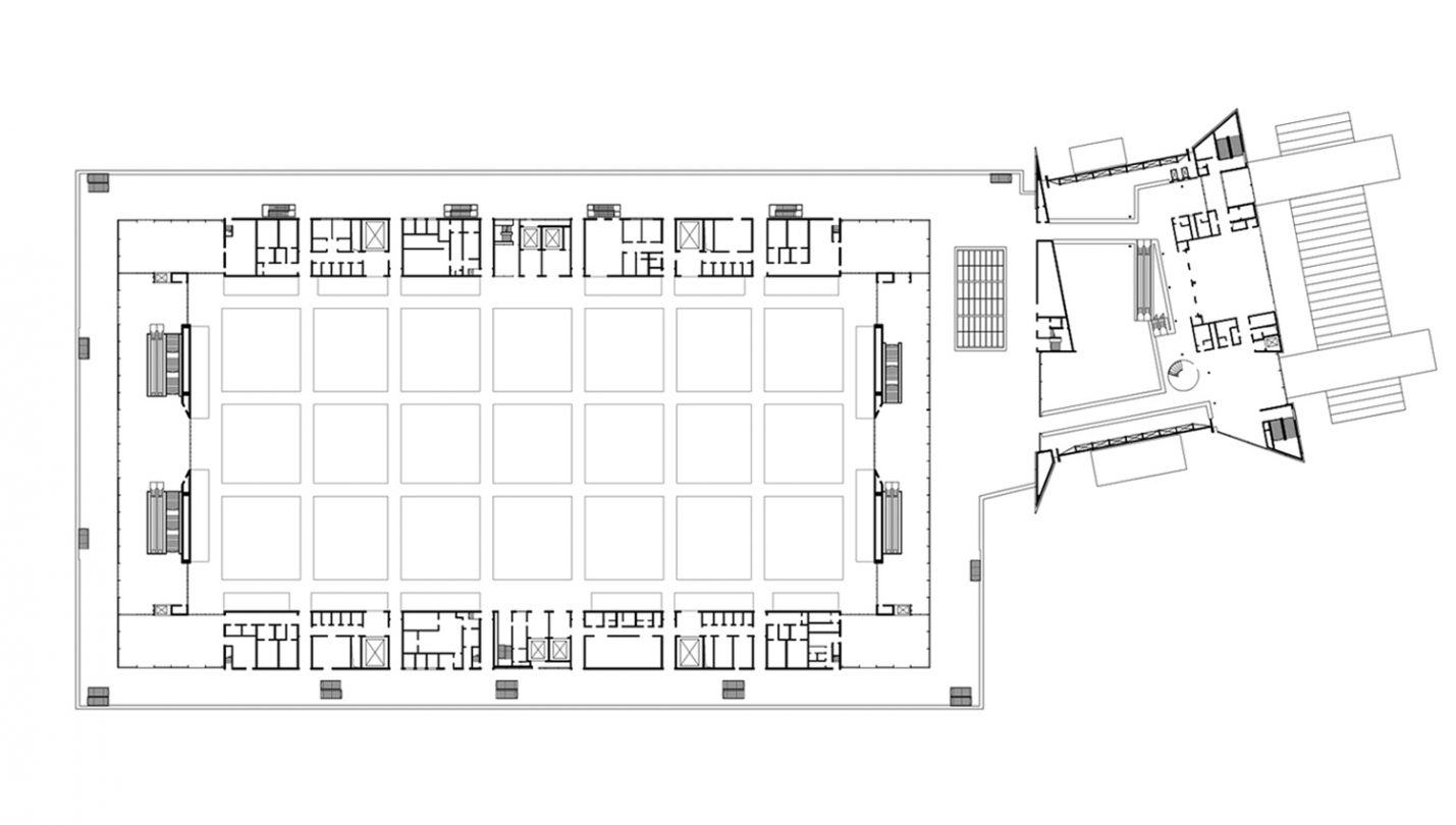
Die Messe Frankfurt profitiert von ihrer zentralen Stadtlage, die jedoch Erweiterungen besondere Rahmenbedingungen auferlegt. Zudem stellt die Integration der hohen zweigeschossigen Hallen in den städtischen Kontext eine besondere architektonische Herausforderung dar. Der Entwurf für die Messehalle 11 und das neue transparente Eingangsgebäude mit Konferenzbereich hebt gezielt die weithin sichtbare Geste des Empfangs hervor. Die Vermittlung zwischen den beiden städtebaulichen Hauptrichtungen, den bestehenden Messehallen 8, 9 und 10 sowie dem zukünftigen Südwestgelände der Messe am Europaviertel, ist das architektonische Thema des großzügigen Empfangs- und Verteilergebäudes. Es ist übersichtlich und transparent gestaltet und führt im Inneren die Besucherströme, die dort aus den verschiedenen Richtungen und Ebenen aufeinandertreffen, zusammen. Der mehrgeschossige Luftraum verleiht dem Gebäude mit seinen Durchblicken auf das ‚Torhaus‘ und den Messeturm eine weitläufige Atmosphäre.
Die zweigeschossige Halle 11 orientiert sich in ihrem orthogonalen Bezug an der bestehenden Halle 9 und hält so Distanz zur Kuhwaldsiedlung. Um Maßstäblichkeit zu erzeugen, wird ihr hohes Volumen in horizontale Schichten gegliedert. Das ebene, leichte, ‚schwebende‘ Dach begleitet unaufdringlich und ruhig den Straßenraum. Ein begrünter Wall überdeckt die massive Logistikarkade und schirmt die Kuhwaldsiedlung gegen Schallemissionen ab.
客服
消息
收藏
下载
最近














