查看完整案例

收藏

下载
土壤污染超标42%,8.8公里城区的空间鸿沟、四座沉默矗立的废弃油罐——这里曾是安庆城市的一道“伤疤”。项目以“民生本位”为核心理念,通过创造性转化,将这片承载45年记忆的工业“绣带”重塑为年接待超百万人次的“城市客厅”,为工业遗迹活化提供可复制的“安庆方案”。
© 孙智建筑摄影工作室
The site had long been perceived as an “urban scar”: soil contamination exceeding standards by 42%, an 8.8-kilometer spatial rupture within the urban fabric, and four abandoned oil tanks standing in silence. Anchored in a people-centered urban development ideology, the project undertakes an inventive transformation — recasting this industrial “ribbon” that carries 45 years of collective memory into an “urban living room” receiving over one million visitors annually. It offers a replicable “Anqing Model” for revitalizing industrial remnants within contemporary urban environments.
▼昔日的灰色孤岛,今日的“城市客厅”, Once a grey industrial enclave, now a welcoming “urban living room”© 孙智建筑摄影工作
▼如同嵌入江畔的“城市绿肺”, A “green lung” embedded along the Yangtze riverfront© 孙智建筑摄影工作室
01原境:工业孤岛的静默与潜能
01 Original Context: The Silence and Potential of an Industrial Enclave
基地坐落于安庆滨江片区,原为1974年建成的安庆石化港贮油罐区。这片曾见证工业辉煌的“厂城一体”区域,承载着城市的集体记忆,却在时代变迁中沦为割裂城市肌理的“灰色孤岛”。
The site is located within Anqing’s riverside urban belt, originally developed in 1974 as the oil tank storage zone of the Anqing Petrochemical Port. Once a “factory–city integrated” industrial district that bore witness to the city’s industrial heyday, it carried deep layers of collective memory.
▼项目区位,Project Location© 安徽坊地建筑景观规划设计有限公司
当设计团队介入时,4座废弃油罐、117米石化管廊、153米管沟及散落的工业建、构筑物在荒芜中静默矗立,其独特的结构张力与空间特质,为再生设计提供了空间基底与叙事起点。
Yet over time, it gradually deteriorated into a “grey enclave” severed from the surrounding urban fabric. When the design team entered the site, four abandoned oil tanks, a 117-meter petrochemical pipeline corridor, a 153-meter service trench, and a series of scattered industrial structures stood in silent desolation. Their structural tension and spatial singularity offered both the physical foundation and narrative starting point for the regeneration design.
▼已被拆除一半的罐体,The oil tanks had been partially dismantled©安徽坊地建筑景观规划设计有限公司
02重构:从CBD到ECD的城市叙事
02 Reframing: Urban Narratives from CBD to ECD
项目标志着城市发展理念的重要转变——从追求经济密度的CBD模式,转向注重民生服务的ECD(Ecological Culture District,生态文化中心区)模式。这一转变打破了传统中心区的精英化倾向,为基地赋予了更具公共性的使命。
The project signifies a pivotal shift in the city’s development paradigm—from a Central Business District (CBD) model that prioritizes economic density, toward an Ecological Culture District (ECD) model centered on public welfare and civic services. This transition challenges the traditional elite-oriented character of central districts and assigns the site a renewed mission defined by public accessibility and social inclusiveness.
▼“ECD+CBD”的双心鼎立格局,The Dual-Core Configuration of “ECD + CBD”©安徽坊地建筑景观规划设计有限公司
与东侧聚焦商务办公的滨江CBD形成功能互补,ECD以“一馆两中心”(市图书馆、青少年活动中心、妇女儿童活动中心)及湿地公园为核心,两者共同构建“商务-文化”双引擎格局,重塑长江岸线的公共空间秩序,实现从生产岸线向生活岸线的本质转变。
Complementing the riverside CBD on the east—an area focused primarily on business and office functions—the ECD is anchored by “one library and two community centers” (the Municipal Library, the Youth Activity Center, and the Women & Children Activity Center) alongside a restored wetland park. Together, they constitute a dual engine of commerce + culture, restructuring the public-space order along the Yangtze waterfront and driving a fundamental shift from a production-oriented shoreline to a living-oriented urban edge.
▼“一馆两中心”及湿地公园,“one library and two community centers” alongside a restored wetland park © 孙智建筑摄影工作室
03转译:工业DNA的空间再生
03 Transcoding: Spatial Regeneration of Industrial DNA
项目的核心魅力在于对工业遗存的极致保留与创意转化。设计保留95%的工业构件,以“连接(Connect)、开放(Opening)、趣味(interest)”三大策略,实现从工业容器到公共生活的深刻转变。▼建筑设计策略,Architectural Design Strategies©安徽坊地建筑景观规划设计有限公司
The core appeal of the project lies in its rigorous preservation and inventive reinterpretation of industrial heritage. By retaining 95% of the original industrial components and adopting three key strategies—Connect, Opening, and Interest—the design orchestrates a profound transformation from industrial containers to spaces of public life.
▼从工业容器到公共生活的转变,transformation from industrial containers to spaces of public life © 孙智建筑摄影工作室
油罐图书馆:结构再利用的诗意
Oil Tank Library: The Poetics of Structural Reuse
四座油罐构成场地的灵魂,在延续工业沧桑感的同时,被赋予现代化图书馆的复合功能与舒适环境。
The four oil tanks, forming the spiritual core of the site, retain their industrial patina while being reprogrammed into a contemporary library complex with enhanced environmental performance and user comfort.
▼改造前的罐体,Oil Tank Before Transformation©安徽坊地建筑景观规划设计有限公司
结构性改造:最大油罐的锈蚀钢板作为“历史文献”被完整保留,三座小罐更换为同色系耐候钢板。罐体内植入新建结构体系(含保温层、砌块墙体、混凝土楼板等),置换采光天窗屋顶,实现工业遗存与现代建筑性能的共生。
-Structural Retrofitting: The weathered steel panels of the largest oil tank were preserved in their entirety as a form of “material archive,” while the three smaller tanks were reclad with weathering steel in a coordinated palette. New structural systems—insulation layers, block walls, and concrete floor slabs—were inserted within the cylindrical shells, and the roofs were replaced with daylighting skylight assemblies, enabling a symbiosis between industrial heritage and contemporary building performance.
▼改造后的罐体与玻璃体量,Transformed Oil Tanks with the Glass Volume© 孙智建筑摄影工作室
新旧体量咬合:为满足市立图书馆功能需求,设计在东侧植入通透的”玻璃盒子”,将四座独立罐体有机联系。新建体量采用极致纯净的超白玻璃,通过体量退让与立面消隐,使工业遗存始终占据视觉主导地位,形成新旧时空的和谐对话。
Interlocking of Old and New Volumes:To meet the functional requirements of a municipal library, a transparent “glass box” was inserted on the eastern side, stitching the four stand-alone oil tanks into a coherent whole. Clad with ultra-clear glass, the new volume withdraws visually through massing setbacks and façade dematerialization, ensuring that the industrial remnants retain visual primacy and establishing a harmonious dialogue across time.
▼超白玻璃盒子,Ultra-Clear Glass Box© 孙智建筑摄影工作室
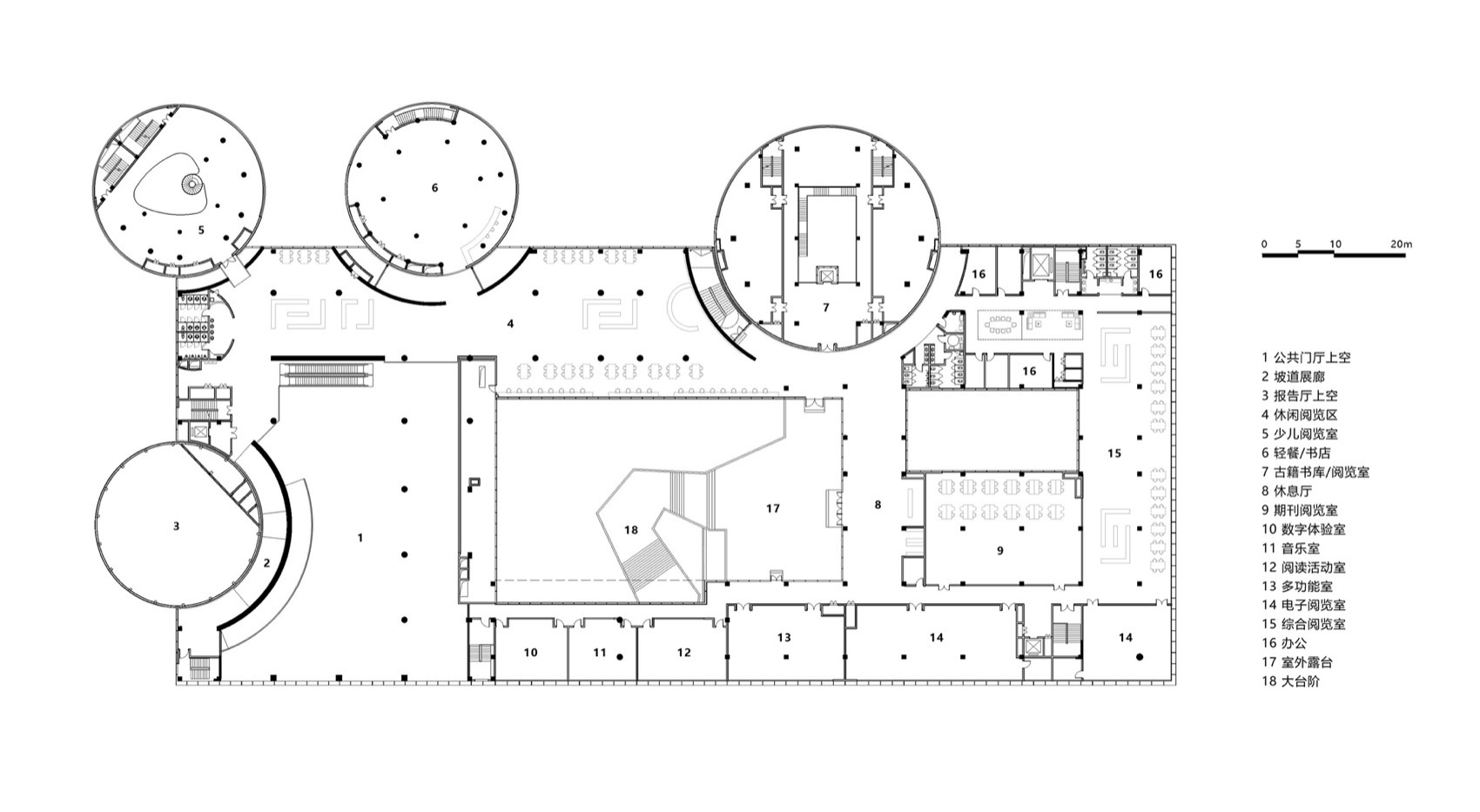
空间叙事展开:主入口设于玻璃中庭内部,沿场地中轴进入,“水墨轻舟”艺术幕墙与橙色旋转楼梯共同营造沉浸式的到达体验。8.8米净高大厅以原始油罐为背景,弧形清水混凝土墙上镌刻着博尔赫斯的名句:“我心里一直都在暗暗设想,天堂应该是图书馆的模样”。结合下沉休息区、圆形书架与悬浮吊灯,构建出兼具仪式感与亲和力的公共空间。
Spatial Narrative Unfolding:The main entrance is positioned within the glazed atrium, aligned with the site’s central axis. An artistic “Ink-Boat” feature wall and an orange spiral stair choreograph an immersive arrival sequence. The 8.8-meter atrium, backed by an exposed oil tank shell, features a curved fair-faced concrete wall engraved with Borges’s famous line: “I have always imagined that Paradise will be a kind of library.” Together with a sunken lounge, circular bookshelves, and suspended luminaires, the space achieves a balance between ceremonial grandeur and public warmth.
▼图书馆入口中庭与大厅,Entrance Atrium and Main Hall© 孙智建筑摄影工作室
▼中庭内扭转的大台阶,Twisting Grand Staircase in the Atrium© 孙智建筑摄影工作室
▼大厅,Hall© 孙智建筑摄影工作室
▼净高8.8米的入口大厅,8.8-Meter-High Entrance Hall© 孙智建筑摄影工作室
功能与空间的契合:新建体量设置高频使用的阅览区与开放书库,主油罐改造为报告厅,其余罐体容纳少儿阅览室、VR展馆及恒温恒湿的古籍库,并融入书店、轻餐等商业空间。通高中庭与特色楼梯破解圆形平面局限,使工业遗存成为空间体验的有机组成。沿坡道缓步而上,新建混凝土墙体与保留钢板罐壁并置,阳光从顶部倾泻而下。不同时代的建筑语汇在此交织,营造出穿越时空的沉浸体验。
Functional-Spatial Integration:The new volume houses high-frequency reading areas and open stacks, while the primary oil tank is converted into an auditorium. The other tanks accommodate a children’s reading hall, a VR exhibition gallery, and a temperature- and humidity-controlled archive for ancient books. Bookstores and light-food retail are interwoven into the circulation. The vertically linked atrium and signature staircases overcome the inherent limitations of circular floor plates, allowing the industrial relics to emerge as integral components of the spatial experience. As visitors ascend the sloped ramp, newly cast concrete walls stand in juxtaposition with the preserved steel tank shells, illuminated by cascading daylight from above. Architectural vocabularies of different eras intertwine, creating an immersive experience that feels both temporal and transcendent.
▼少儿阅览室中庭及旋转楼梯,Children’s Reading Atrium with Spiral Staircase© 孙智建筑摄影工作室
▼旋转楼梯,Spiral Staircase© 孙智建筑摄影工作室
▼坡道空间,Ramp Space© 孙智建筑摄影工作室
▼工业元素保留,Preserved Industrial Elements© 孙智建筑摄影工作室
活动中心群(青少年活动中心及妇女儿童活动中心):工业肌理中的活力网络
Activity Center Cluster (Youth Activity Center & Women & Children Activity Center): A Vibrant Network within the Industrial Fabric
与图书馆的庄严气质形成对话,散落于场地中的工业附属建筑群,以轻盈姿态扮演“活力配角”角色。在完整保留建筑粗犷工业外观的同时,内部注入符合当代教育需求的多功能空间。
In dialogue with the solemn character of the library, a dispersed cluster of former industrial ancillary buildings plays the role of a light-footed “vibrant supporting cast.” While the coarse industrial exteriors are preserved in their entirety, the interiors are retrofitted to accommodate multifunctional spaces tailored to contemporary educational needs.
▼青少年和妇女儿童活动中心鸟瞰,Aerial view of the Youth and Women & Children Activity Centers© 孙智建筑摄影工作室
▼青少年活动中心主入口,Main entrance of the Youth Activity Center© 孙智建筑摄影工作室
适应性改造:基于各建筑原有空间特质,对建于上世纪80年代的厂区附属建筑及海员俱乐部进行结构加固与功能重塑,分别被改造为青少年活动中心的小剧场、音体教室、科创中心、风雨操场及各类小教室,新增门厅、展厅与连廊将其有机串联,围合出多尺度的半开放庭院。
Adaptive Reuse: Based on the intrinsic spatial characteristics of each building, the ancillary facilities dating from the 1980s—including the seafarers’ club—underwent structural reinforcement and programmatic reconfiguration. They were converted respectively into a small theatre, music and physical-education studios, an innovation & maker center, a covered (rain-sheltered) play court, and a variety of small classrooms. Newly inserted entrance lobbies, exhibition rooms, and connecting corridors knit the ensemble together, forming a series of multi-scale semi-open courtyards.
▼原水处理间改造为小剧场和音体教室,Former water-treatment room repurposed as a small theatre and music/PE studios© 孙智建筑摄影工作室
▼原锅炉房改造为青少年科创中心,Former boiler house converted into the Youth Innovation & Maker Center© 孙智建筑摄影工作室
▼原海员俱乐部内布置各类小教室和办公室,Former seafarers’ club reconfigured with small classrooms and offices© 孙智建筑摄影工作室
▼增设电梯及由穿孔铝板包裹的空调室外机位,Added elevators and outdoor HVAC units enclosed by perforated aluminum screens© 孙智建筑摄影工作室
新旧细部对话:保留的室外楼梯通过加设钢丝网护栏,以现代设计语汇和谐融入。妇女儿童活动中心选址于原海关办公楼,其独立功能与周边色彩明快的游戏场地有机结合,为特定人群打造安全友好的专属活动空间,使工业遗产焕发新的育人价值。
Dialogue Between Old and New Details: Retained exterior stairways were integrated with contemporary interventions—such as wire-mesh guardrails—that mediate between the historic fabric and modern design language. The Women & Children Activity Center is sited within the former customs office; its autonomous program, together with adjacent brightly colored play zones, creates a safe and friendly environment tailored to specific user groups, thereby reactivating the educational value of the industrial heritage.
▼保留原楼梯并加设护拦,Original stair preserved with added guardrails© 孙智建筑摄影工作室
▼多尺度的半开放庭院,Multi-scale semi-open courtyards© 孙智建筑摄影工作室
▼连接庭院与屋顶的室外楼梯,Exterior stair connecting courtyards to rooftop© 孙智建筑摄影工作室
立体漫游系统:巧妙利用建筑间隙植入连廊与楼梯,将117米管廊变身为空中漫步道,构建出激发探索的立体活动体系。153米管沟经生态处理后化身儿童探险乐园,让孩童在攀爬跑跳间体验空间趣味。
Three-Dimensional Promenade System: By employing interstitial spaces to insert skybridges and stairways, the 117-meter pipeline corridor is transformed into an elevated promenade, generating a layered system of exploratory movement. The 153-meter service trench, following ecological remediation, is reimagined as a children’s adventure playground—inviting play, climbing, and running as modes of spatial engagement.
▼工业管廊的再生,Regeneration of the pipeline corridor© 孙智建筑摄影工作室
▼架设于管廊上部的空中连廊,Elevated skybridge mounted above the corridor© 孙智建筑摄影工作室
▼妇女儿童活动中心与游戏场地,Women & Children Activity Center and adjacent play areas© 孙智建筑摄影工作室
04内核:民生本位与技术赋能的融合
04 Core: The Convergence of People-Centered Values and Technological Enablement
项目的成功根植于“民生为本”的价值坚守与“技术赋能”的创新实践。民生导向的价值回归:拒绝“贵族化”开发路径,以全民共享的图书馆、活动中心及湿地公园等公共设施取代高档会所,将工业孤岛彻底转变为开放的城市客厅。年均200余场高品质文化活动,形成从清晨图书馆到夜间星光派对的8大主题体验序列,构建全时段、多维度的活力公共空间。
The project’s success is grounded in its steadfast commitment to people-centered values and its innovative practice of technological empowerment. A People-Oriented Value Shift: Rejecting the path of elite-oriented development, the project replaces exclusive clubs with public facilities—such as a civic library, activity centers, and a wetland park—open to all. In doing so, it transforms the former industrial island into an urban living room. Over 200 high-quality cultural events are held annually, forming eight themed experience sequences that span from early-morning reading rituals to nighttime starlit parties, creating a vibrant public realm that operates across all hours and dimensions.
▼鸟瞰,aeril view© 孙智建筑摄影工作室
技术驱动的系统支撑:通过引入90%本土植被重建滨江湿地生态系统,实现白鹭回归和水质显著改善。创新“空间租赁+特色消费+政府服务”三位一体营收模式,确保项目的长效运维。
Technology-Driven Systemic Support: By reintroducing 90% native plant species, the project reconstructs the riverside wetland ecosystem, resulting in the return of egrets and notable improvement in water quality. An innovative tripartite revenue model—combining spatial leasing, specialty consumption, and government service provision—ensures sustainable long-term operations.
▼秋景,autumnal scenery© 孙智建筑摄影工作室
05范式:可复制的“安庆模式”
05 Paradigm: The Replicable “Anqing Model”
安庆滨江ECD的故事,是一场城市价值的深刻回归。它证明,发展的答案不在于涂抹过去,而在于智慧地转译历史。
The story of the Anqing Riverside ECD is a profound return to the intrinsic values of a city. It demonstrates that the answer to urban development lies not in erasing the past, but in the intelligent translation of history.
▼夜景,night view© 孙智建筑摄影工作室
通过“抢救式保护+被动式设计”,项目实现了三大创新:工业基因的系统性转译,ECD与CBD的双核驱动、全周期的闭环管理。这一模式为中小城市工业遗产活化提供了可行路径——当工业记忆与当代生活诗意交融,城市才真正成为人民的城市。
Through “rescue-oriented preservation + passive design,” the project delivers three key innovations: the systemic translation of industrial DNA, a dual-core dynamic between ECD and CBD, and a full-cycle closed-loop management model. This model offers a viable pathway for industrial-heritage activation in small and medium-sized cities—affirming that only when industrial memory blends poetically with contemporary life can a city truly become a city for its people.
▼总平面图,master plan© 安徽坊地建筑景观规划设计有限公司
▼图书馆一层平面图,Floor plan of the ground floor of the library© 安徽坊地建筑景观规划设计有限公司
▼图书馆二层平面图,Second plan of the first floor of the library© 安徽坊地建筑景观规划设计有限公司
▼图书馆立面图,facade of the library© 安徽坊地建筑景观规划设计有限公司
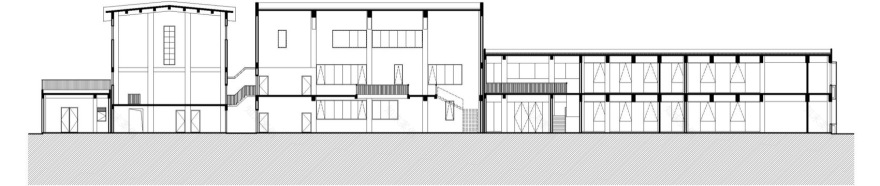
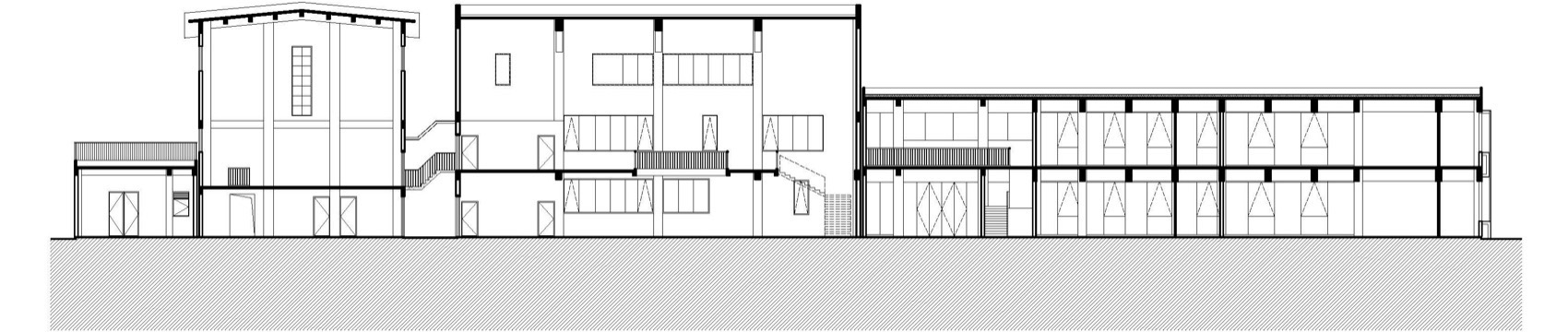
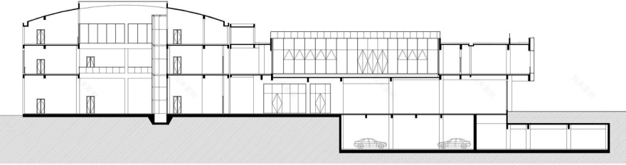
▼图书馆剖面图,section of the library© 安徽坊地建筑景观规划设计有限公司
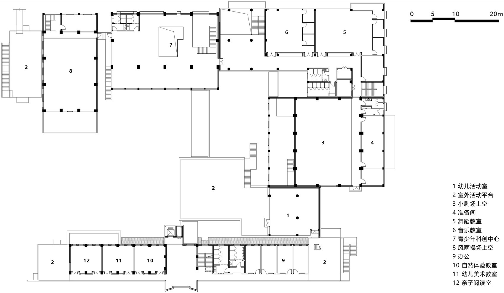
▼青少年活动中心一层平面图,ground floor plan of theYouth Activity Center © 安徽坊地建筑景观规划设计有限公司
▼青少年活动中心二层平面图,first floor plan of the Youth Activity Center© 安徽坊地建筑景观规划设计有限公司
▼青少年活动中心立面图,facade of the Youth Activity Center© 安徽坊地建筑景观规划设计有限公司
▼青少年活动中心剖面图,section of the Youth Activity Center© 安徽坊地建筑景观规划设计有限公司
▼细部,details© 安徽坊地建筑景观规划设计有限公司
项目名称:安庆市滨江ECD油罐生态文化中心
项目地址:安徽省安庆市
项目周期:2019 / 2023
项目类型:工业遗址更新
占地面积:102000㎡
建筑面积:28000㎡
业主单位:安庆市重点工程建设处
设计团队:陈军、吴敏、江海东、马末妍、陆冰清、江亚琳、廖仪超、李咏、宣传超、郑璇、王蓉蓉、张智惠、曹伟、肖本松、汪昕、杜玮璇、张正兵、施晨骏、黄帅
总体规划:安徽坊地建筑景观规划设计有限公司
建筑设计:安徽坊地建筑景观规划设计有限公司
景观设计:安徽坊地建筑景观规划设计有限公司
施工图设计:安徽地平线建筑设计有限公司
全过程咨询:安徽地平线建筑设计有限公司
摄影版权:孙智建筑摄影工作室
客服
消息
收藏
下载
最近





















































































