查看完整案例

收藏

下载
GABRIEL FERRATER LIBRARY
The new library is proposed as a friendly building, under the park carpet, but permeable to the city and the park. The library, located in the center of the new cultural axis of the town, will mean a great boost to improve the park, both in terms of its routes structure and its offer of activities and relation with the citizenship.
The geometry of the new building is organic, it is related symbiotically to the park adapting naturally to the geometries of the pedestrian paths and relief forms. The roof of the building is a new hill of the park, a new meadow of smooth topography that will rise as a new viewpoint and can also be used as a rest area where one can read in the shade of the trees. A new path surrounds the roof of the library as a meander and incorporates it into the park as just another landscape element.
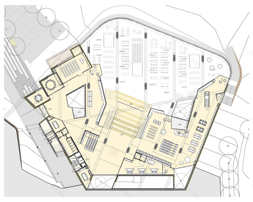
The library organization in horizontal is simple, through a main floor and a first floor or mezzanine, where the layout of the main pieces at the access level makes easier its use. Inside, a large main space on the ground floor is surrounded by smaller areas that ensure a human, domestic and comfortable dimension for its users.
The garden roof makes the library a particularly sustainable building. The great thermal insulation generated by the roof creates a semi-buried interior microclimate of great efficiency in consumption for interior conditioning. The facade, as well as three inner courtyards open to the roof, allows the entrance of light and ventilation to the central areas of the building.
The park will always be visible from the inside, but it is also possible to use outdoor areas for functions linked directly or indirectly to the library: concerts, children’s activities, reading spaces or cultural events.
FIRST PLACE IN PROPOSALS COMPETITION
客服
消息
收藏
下载
最近














