查看完整案例

收藏

下载
jægersborg have
År
2012-2014
Adresse
Jægersborg Allé, Gentofte
Bygherre
Gentofte kommune
Areal, m2
6700 m2
Samarbejdspartnere
Marianne Levinsen landskab, Moe & Brødsgaard, HHM
Kundens ønskeliste
hjemlighed
historisk kontekst
generøs åbenhed i institutionen
nytænkning i plejebolig
Projektkategori
bolig
institution
sundhed
kulturarv
totalentreprise
Jægersborg Have, et nyt plejecenter i Gentofte Kommune, genåbner området hvor Chr. D. 4.´s Jægersborg Slot engang lå som et naturligt og storslået centrum i et åbent landskab.
For enden af den aksiære Jægersborg Allé bor 72 ældre borgere i et firelænget ”slot” med et hovedhus der markerer sig i højden. Aksen der førhen ledte til kongen, fører i dag til stedets uformelle hjerte: et gårdrum der i sin kraft af sin skala, form og materialitet opleves som et quasi interiørt rum, hvor beboerne kan forlænge sommerens udeophold. Gårdrummet anvendes også til udadvendte offentlige events, som...
Jægersborg Have, et nyt plejecenter i Gentofte Kommune, genåbner området hvor Chr. D. 4.´s Jægersborg Slot engang lå som et naturligt og storslået centrum i et åbent landskab.
For enden af den aksiære Jægersborg Allé bor 72 ældre borgere i et firelænget ”slot” med et hovedhus der markerer sig i højden. Aksen der førhen ledte til kongen, fører i dag til stedets uformelle hjerte: et gårdrum der i sin kraft af sin skala, form og materialitet opleves som et quasi interiørt rum, hvor beboerne kan forlænge sommerens udeophold. Gårdrummet anvendes også til udadvendte offentlige events, som koraften, sommerballet eller grundlovstale.
Bygningen er med sine hvide facader og stramme enkelhed i familieskab med områdets gamle slotte. Den menneskelige skala er et vigtigt mål og findes bl.a. i soklen der bevæger sig frit i forhold til facadeflugt og danner bænke og terrasser rundt om bygningen.
...
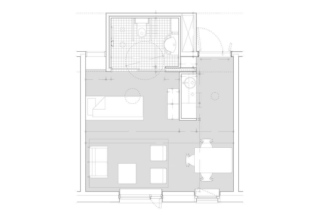
Beboerne flytter ind i en plejebolig hvor emner som hjemlighed, dagslys, privathed og overgang til fællesskabet har skubbet til den gængse indretning af plejeboligen. Mod fællesarealet findes en dyb niche hvor beboeren kan møblere og præge sin indgang personligt – en gradueret overgang mellem fællesskab og privat hjem.
Boligen kan transformeres i takt med beboerens skiftende behov – fra den selvhjulpen til sengeliggende, fra klart tænkende til dement. Den ældre flyttes ikke rundt til plejehjemmet, men bevarer sin værdighed i sit sidste tilpassende hjem.
客服
消息
收藏
下载
最近
























