查看完整案例

收藏

下载
073
Siège évolutif GB
—
Construction hors-site d'un immeuble de bureaux, une plateforme logistique, des atelier de préfabrication et parking en silo réversible en bureaux.
Maîtrise d’ouvrage
GA promotion
AMO
THEOP
Lieu
Gennevilliers (92)
Maîtrise d’œuvre
Atelier FUSO (architecte)
GA Construction
ETBM (thermique, fluides)
Surface
5.750 m² bureaux
960 m² ateliers
1.500 m² plateforme logistique
220 places de parking silo transformable en bureaux
Coût
26 M€
Label
RT
BREEAM
Calendrier
Livré en Mai 2021
Image
@ Charles Bouchaib
@ Arthur Crestani
Le projet s'inscrit dans un tissu principalement industriel, constitué d'entrepôts et de locaux d'activités.
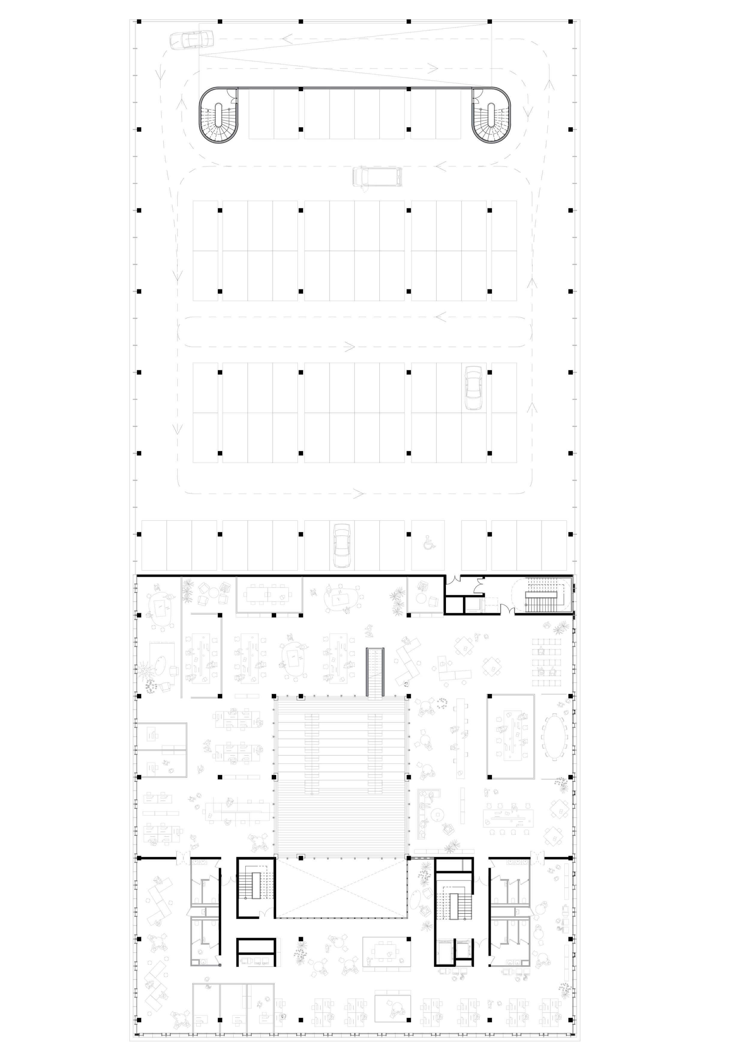
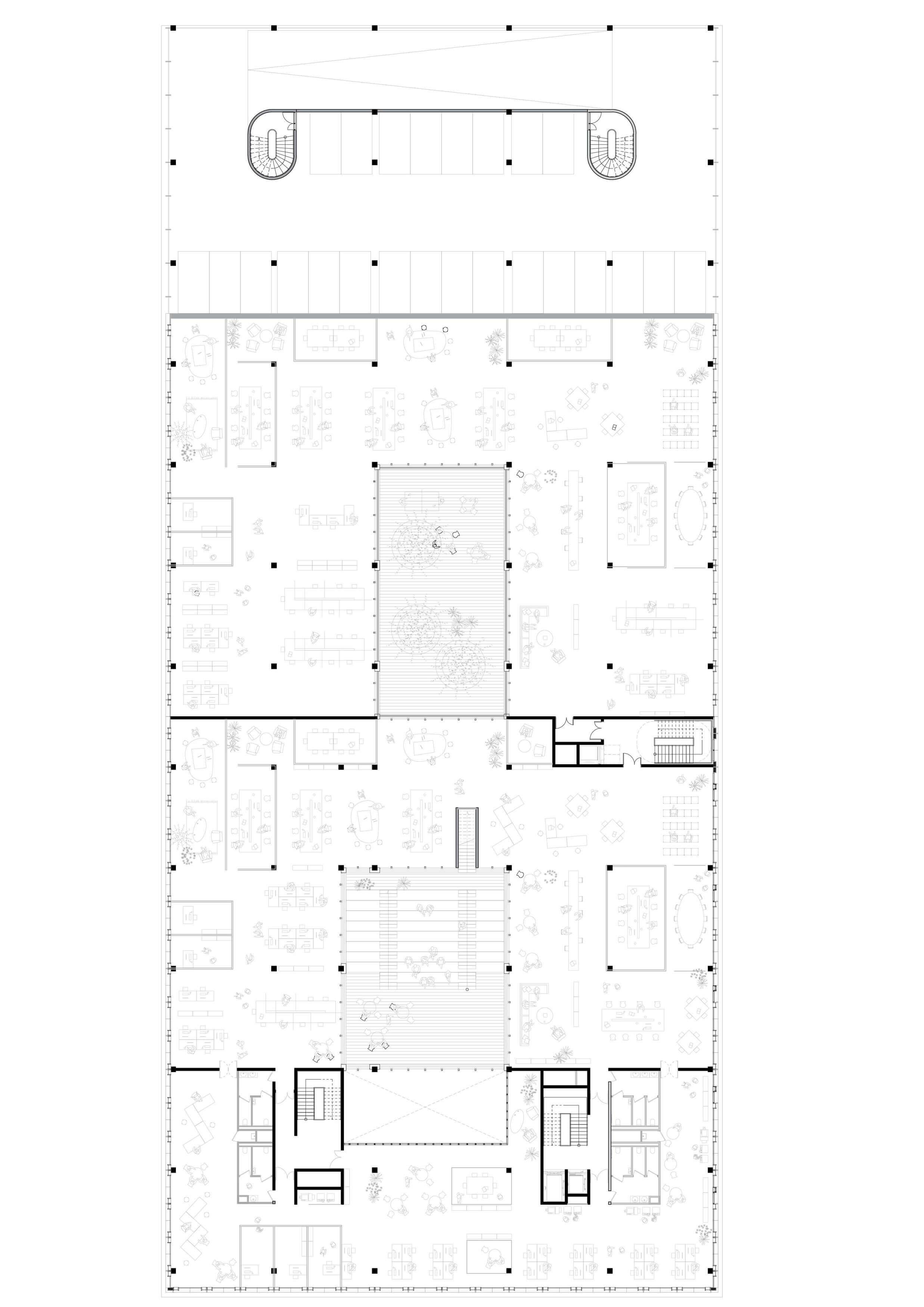
L'immeuble de bureaux s'articule autour d'un patio central en forme de gradins. Ce dispositif propose un parcours progressif depuis le rez-de-chaussée vers la terrasse du R+3. Les différents plateaux de bureaux sont donc reliés les uns aux aut res par une succession d'espaces extérieurs, augmentant ainsi la proportion des espaces éclairés naturellement.
Compte tenu du contexte urbain, le projet est conçu comme un "bâtiment- machine", et donne à lire son caractère industriel aussi bien par sa matérialité que par sa réponse aux enjeux programmatiques.
Il se compose en effet de 3 volumes principaux (le soubassement, le corps et l'émergence) en béton brut ou revêtus de bardage métallique. Par ailleurs,la moitié de son emprise est occupée par un parking "réversible" en superstructure conçu de façon à pouvoir être transformé en bureaux sur tout ou partie de sa surface.
客服
消息
收藏
下载
最近














