查看完整案例

收藏

下载
01 临危大任
01 Project Background
全球新冠疫情爆发暴露了我国公共卫生领域在基础教育和科研上的短板。2020年,王石先生推动了万科企业股中心将其持有的2亿股万科股票作为一次性捐赠,建立一个高起点、跨学科、创一流的全新公共卫生与健康学院,清华大学成了情理之中的不二之选。清华大学万科公共卫生与健康学院(以下简称“卫健学院”)成立后,面临的首要任务是尽快建成新院馆,以应对快速引进人才、开展科研和扩大交流的迫切需要。
In 2020, in response to the shortcomings revealed in public health following the global outbreak of COVID-19, and with the support of Mr. Wang Shi, the Vanke Enterprise Shareholding Center donated its 200 million stock shares to the Tsinghua University Education Foundation. Leveraging Tsinghua University’s strong multidisciplinary advantages, the two parties jointly initiated the establishment of a high-level, interdisciplinary, world-class institution—Vanke School of Public Health, Tsinghua University(hereinafter referred to as the “VSPH”).
▼项目概览,overview of the project© UK Studio
02 绝佳选址
02 Site Selection
在新增基建指标非常有限的情形下,为快速推进学院建设,学校决定将“近春园宾馆”改造为卫健学院新馆。清华之名源于清代三山五园。位于校园西部的近春园宾馆所在地属于康熙皇帝行宫熙春园的近春园。熙春园在乾隆年间并入圆明园体系,而道光皇帝又将熙春园一分为二,分赐给皇子,东部为清华园(工字厅一带),西部为近春园。英法联军火烧圆明园时,近春园内建筑尽数被毁,从此沦为“荒岛”。1960~1980年代,“荒岛”成为清华校内最浪漫的园林景区。1980年代末建成的近春园宾馆面向“荒岛”,推窗即可见朱自清《荷塘月色》的景致。这个宾馆的造型在当时既现代时尚,又有清华文脉,其立面顶层处理成暗红色斜墙面,暗喻清华学堂标志性的曼萨顶,是当时清华校园建筑的代表作。卫健学院选址于此,链接了皇家园林、文学名作、清华文脉三百余年的在地历史,何其荣焉。
To accelerate the development of the school amid very limited opportunities for new construction, the university decided to renovate the “Jin-Chun-Garden Hotel” for VSPH. Located on the west side of campus, the Jin-Chun-Garden Hotel sits on a site that once belonged to Jin-Chun-Garden—originally part of Emperor Kangxi’s Xi-Chun-Garden. Incorporated into the Old Summer Palace during the Qianlong era and later divided by Emperor Daoguang, its western half became Jin-Chun-Garden. All buildings were destroyed during the burning of the Old Summer Palace, leaving the area desolate until it gradually became one of Tsinghua’s most romantic areas from the 1960s to the 1980s. Completed in late 1980s, the guesthouse overlooks the scenery described in Zhu Ziqing’sMoonlit Lotus Pond. Its design, modern for its time yet echoing Tsinghua’s architectural heritage, features a dark red slanted façade cladding referencing the original Tsinghua College’s mansard roof. The building and its site intertwine imperial garden history, literary heritage, and Tsinghua’s culture, carrying over three centuries of historical depth.
03 苛刻条件
03 Tough Conditions
然而这个建筑的基底并不理想,除门厅和主餐厅外,其主体结构是以客房开间为模数的砖混剪力墙,层高只有3.2米,无以承载世界一流的教研空间需求。该建筑又处于北京西北部“三山五园”的建筑控制线内,原建筑的轮廓线已超出从颐和园、香山等核心景区向北京城区眺望的视控制线,如果拆除重盖,只能盖两层高的建筑了。建筑西侧毗邻流经清华的万泉河。这条河在这个段落虽然狭窄,但河道保护范围很宽,一旦重建,建筑的基地将所剩无几。
▼项目在清华校园位置,site location (within Tsinghua University Campus) © 都市实践
Built in the economically constrained 1980s, the building’s main structure, apart from the lobby and main dining hall, consists of a masonry shear wall system with modular guest rooms. It has deep floor plates, a floor-to-ceiling height of only 3.2 meters, and lacks sprinklers and centralized air conditioning. It is hard to imagine how such spatial conditions could accommodate a world-class school of public health. The primary reason the original building could not simply be demolished is that it lies within the setback line of the “Three Mountains and Five Gardens” area in northwest Beijing. Within this zone, the height, volume, and density of new construction are strictly regulated to protect key view corridors from major scenic sites such as the Summer Palace and Xiangshan Park toward the city. The current building’s profile already exceeds these limits; if it were completely torn down, any new structure on this site would be restricted to only two stories. Another practical reason is that the building sits directly east of the Wan-Quan River passing through Tsinghua. Although the river is only a narrow channel at this point, its protection zone is quite wide. If the building were to be reconstructed, the available footprint would be drastically reduced.
04 留拆改建
04 Adaptive redevelopment
近春园宾馆虽然只是个校办招待所,但在配套资源有限的清华校内,它一直是来访学者、返校校友、毕业班聚会、面试考生等首选的住宿餐饮地,成为很多人的校园记忆点。作为清华校友来操刀这个改造,设计的第一直觉就是尽量保留原貌。这也是设计中标的一个主要原因。对于一般改造项目而言,业主会千方百计做增量。但清华大学把握政策红线的原则极其严苛,坚决剔除非房本上的私搭乱建,这也为新设计腾挪出一点空间。而另一方面,因为要避免模棱两可的面积解释,以及不使公益基金的投入产生负面评价,学校严格要求建筑的合规性和使用的合理性,因此,也限制了设计的发挥。
▼拆改过程示意,illustration of the renovation process©都市实践
Although the Jin-Chun-Garden Hotel is not a high-end guesthouse, it is the top choice for visiting scholars, returning alumni, graduating class reunions, and visiting guests. Therefore, it has become an important site of collective memory on campus. As Tsinghua alumni undertaking this renovation, our first instinct was to preserve as much of the original structure as possible. In most renovation projects, owners try hard to increase floor area. Tsinghua University, however, strictly adheres to policy red lines, removing all unauthorized add-ons, which freed a small amount of space for the new design. At the same time, to avoid any ambiguity in area calculations and ensure responsible use of public funds, the university required full regulatory compliance and clear functional justification—conditions that also constrained the design.
原建筑的完工远早于当前城市管理机构对物业所进行的全面建档时间,原手工图纸的面积统计有不少疏漏,而后期运营中的多次增改,更带来面积的混乱。如何帮助学校及规划部门界定最终的建筑面积,成为平行于设计全过程的一项工作,其结论的动态变化如同一个定时炸弹,持续影响着设计进程,迫使方案反复调整。因此,设计的原则是在保留主体立面的前提下,尽量最大化功能使用的有效性,同时在有限的空间中营造高端学府的体面感和当代学校的松弛感。
For a building completed long before current urban management agencies implemented comprehensive property registration, manual drawings inevitably contain discrepancies in area calculations, and subsequent modifications during operation further complicate the floor area data. Determining the final building area for the university and planning authorities became a task running parallel to the entire design process, with the results’ dynamic nature acting like a ticking time bomb requiring constant adjustments to the design scheme. Therefore, the design principle was to preserve the main façade while maximizing functional efficiency and, within the limited space, create both the dignity of a top academic institution and the relaxed atmosphere of a contemporary campus.
▼沿河立面,riverside façade© UK Studio
05 结构手术
05 Structural Intervention
不打破原有的砖混结构的束缚,这个楼将毫无价值。而在有卫星监控的整个施工过程中,外立面又不能被拆除,否则施工将违法。经研究,改造设计采用“保留沿外墙的结构、拆除内部结构”的策略。原建筑在剪力墙结构之上,使用了当时比较流行的预制板,而沿外墙一圈约两米的范围则采用了现浇楼板。通过保留周边的剪力墙,可以使外立面结构独立站立,这样中间部分的可以彻底掏空。新的结构采用了“中间新建钢结构+外围加固砌体”的混合结构形式,以适应灵活的功能变化。为了解决钢结构和加固砌体结构两者间的刚度不匹配问题,采用了组合钢板剪力墙、钢支撑、加固砌体墙等多重混合抗侧力体系,确保结构在极端工况下的安全性。最终,在每个单元只新加了四片钢板剪力墙,既减小了结构厚度,又适于做展墙使用,并使空间分隔非常灵活。
▼结构改造示意,structural modification©都市实践
Without breaking free from the constraints of its original brick-masonry structure, the building would have no value. Yet throughout construction, monitored by satellite, the exterior façade could not be removed as doing so would render the work illegal. The structural design adopts an innovative hybrid system combining steel structure with reinforced masonry. The masonry structures on the east and west sides are retained and strengthened, while the central portion uses a steel structure to accommodate flexible functional requirements. To address stiffness differences between the steel and masonry systems, a combination of steel plate shear walls, steel braces, and reinforced masonry walls was used, ensuring safety under extreme conditions. Each unit only added four new steel shear walls, minimizing structural thickness while allowing highly flexible interior spaces.
06 结构施工
06 Structural Construction
保留四层高的建筑外墙,如果按正常方式自下而上施工,即使保留的外圈结构是T型的,外墙自身仍需要有额外的支撑措施。施工队是参与过北京“盘古大观”项目结构大手术的队伍,采用了一个创新的施工方案。在拆除顶层时,先架上顶层的天地梁及柱做成水平方向巨型结构,联系东西两侧的外墙,这样形成一个安全的整体结构,再拆下层的楼板。等楼板完全拆除后,开始做地下的基础,而此时,顶层的柱子已然悬挂在天上了。如果没有精准的测绘技术,这种逆做法是难以想象的。
In preserving the four-story exterior walls, a typical bottom-up construction would have required extensive temporary supports even though the structure around the perimeter was T-shaped walls. Drawing on experience from major structural projects such as Beijing’s Pangu Plaza, the construction team adopted an innovative reverse-build method. During demolition of the top floor, a system of beams and columns was first installed to create a massive horizontal truss linking the east and west exterior walls. This stabilized the structure, allowing the lower floor slabs to be safely removed. Only after the slabs were fully cleared did work begin on the new foundations while the top-level columns effectively hung in mid-air. Without precise surveying technology, such a reverse construction process would have been unimaginable.
07 润物无声
07 Subtle Upgrade
场地隔壁的校医院是高频次人流的场所,建成后,来往的人似乎都不太能感觉到这里有了天翻地覆的变化,原因在于掩映在绿化中的外立面基本上保留了原建筑的形式特征。保留外立面不等于无为而为,还需要体现时代的审美和技术。原建筑的客房间有阳台,在不“改头”的前提下,“换面”是让这个当年比较“洋气”的建筑重新“洋”起来的有效办法:用一整块大玻璃将阳台封闭成凸窗,从内外看都非常大气和清爽。凸窗间的内凹用方通格栅封上,组合型窗系统在这一侧有实板的通风开启扇,这样在外立面上就没有开启扇。这个空间本为分体机室外机机位,后来因系统改为集中空调没有用上,但作为取风口也不失为有用的立面处理。原建筑顶层斜墙面是对“曼萨顶”的模仿,再保留原来混凝土板不但会增加重量,形式上也显得粗糙。因此采用了自支撑的折边铝板,免去了龙骨。折边的宽度不一样,并有不同的打孔率,也带来了质感变化。晚上斜铝板又成为了内发光的灯笼。这些微妙的变化在润物细无声中完成了这个建筑的华丽转身。
▼立面改造,façade renovation©都市实践
Balconies are replaced by bay windows with single large glass panes, giving the building a refreshed, elegant appearance. The recessed areas between the bay windows are covered with louvers. The window systems are integrated with ventilation panels to eliminate visible operable sashes. The sloped walls on the top levels are upgraded with folded perforated aluminum panels, avoiding extra weight and adding a refined modern touch. Overall, the renovation functions as a subtle yet effective cosmetic upgrade. Next to the campus hospital with high frequency of visitors, the dramatic renovation of the building is less noticed by the people passing by because of such a subtle façade renovation. The late-1980s design already features well-proportioned façades and harmonious height variations, the new design is to update the building with modern aesthetics.
▼改造后立面,façade after renovation © UK Studio
▼办公室及图书阅览区窗口,windows © UK Studio
08 礼序空间
08 Ritualization of Space
教育建筑本身就有“教化”的功能,礼序化的空间序列的设置不可缺乏。首层整体平面通过一个礼仪化的序列把前场和后场贯通起来。前场是面向近春园“荒岛”开放的景观空间,用一道墙隔离停车场,不仅仅在绿地中辟出一条直通大门的路径,也让从停车场到达的人先遇到一个院门后再有仪式感地进入前院。这道有质感的GRC挂板墙穿插到建筑内部,并转个90度,包围出玻璃门斗。在空旷开放的前场,这道墙赋予了卫健学院领域感,在未移除原有乔木、未改变原建筑外界面的前提下,对建筑与属地关系进行了音准调整。入口接待处虽然是个小尺度的空间脖颈,但面向外面小院的落地窗与一条坐垫结合为一体,使这个空间有归家的亲近感。
On the ground floor, the layout establishes a ceremonial sequence that connects the front and back zones. Separated from the parking area by a newly designed low wall, the front zone opens toward the Jin-Chun-Garden. This design not only creates a direct path leading through the greenery to the main entrance, but also ensures that visitors arriving from the parking lot first encounter a courtyard gate, reinforcing a sense of ritual progression. This textured GRC cladding wall extends into the building and folds 90 degrees to enclose a glass entrance vestibule. In the open landscape, the wall defines the spatial domain of the VSPH. Without removing the existing trees or altering the original exterior, it subtly calibrates the relationship between the building and its site. Although modest in size, the reception area opens onto the exterior courtyard, where floor-to-ceiling glazing paired with a built-in bench creates a warm, home-like welcome.
▼入口接待处 ,reception© UK Studio
中庭是序列的高潮。原建筑标准层是客房布局,进深较大。将外墙扩展到阳台后,就能将省下的内核空间挖空为吹拔。在三个单元中都做了此种处理。作为门厅的中间单元的挑空空间直接落地,并用玻璃电梯贯通,在矮层高的空间中植入这样的大尺度光井,形成了近人尺度与宏大尺度的平衡,使本来先天不足的建筑显得体面且气派。
▼内中庭剖透视,sectional perspective of the interior atriums©都市实践
The atrium serves as the climax of the spatial sequence. The original building’s typical floors are hotel rooms with deep floor plates. By extending the exterior walls to the balconies, the core space could be excavated into a triple-volume void. This treatment is applied to all three units. In the central unit, functioning as the lobby, the atrium is dominated by a glass elevator. Introducing such a large-scale light well into a low-ceilinged space creates a balance between human-scale intimacy and the grandeur, making the modest building appear dignified and impressive.
▼环绕中庭沿外窗的龛式会客厅(一层)及图书馆和开放式办公区(二层),spaces around the atrium© UK Studio
环绕中庭的是原建筑保留下来的短支剪力墙,形成一系列沿外窗的龛式小客厅。它们重复的韵律增强了空间的礼仪性。二层是向跑马廊敞开的图书资料馆和开放式办公区,进一步用重复的书架和隔墙加强吹拔空间的礼仪感。过度的礼仪性又被以户外野生绿地为主题的中央会客区地毯打破。耀眼的橘色沙发和浅色木装修都渗透着学院年轻的生命力。
Surrounding the atrium are the shear walls retained from the original building, forming a series of niche-like small lounges along the periphery windows. Their repetitive rhythm enhances the ceremonial quality of the space. On the second floor, surrounding the atrium, the rhythmically repeating library bookshelves and partitions of temporary office further reinforce the ceremonial character of the lobby. The overly ceremonial atmosphere is offset by the carpet design in the lobby, with an outdoor wild-grass motif that reflects the school philosophy. Bright orange sofas and light wood finishes infuse the space with the youthful vitality of the school.
▼门厅中庭 ,lobby atrium© UK Studio
主流线继续向会议区展开,这里的气氛从门厅的礼序化转向交流空间的闲适化。一层由原餐厅改成的132座报告厅门外,是预设的咖啡厅,它的吊顶是门外河边廊子顶棚的延续。和大报告厅南侧门有个可以放松的小花园一样,二层的三间中小会议室北侧,则是个可以和后场河景直接联系的户外平台。
The main circulation continues into the conference area, where the atmosphere shifts from the ceremonial order of the lobby to a more relaxed, interactive space. On the ground floor, the former large dining hall has been converted into a 132-seat auditorium, complemented by a café. The cafe’s ceiling continues the language of the riverside corridor canopy. Echoing the small garden next to the auditorium, an outdoor terrace is connected to the second floor conference area and leads to the river bank.
▼原餐厅改成的报告厅,lecture hall converted from the former dining room© UK Studio
▼咖啡厅,cafe© UK Studio
09 人文角落
09 Humanistic Spaces
教师办公区的常见问题是封闭性,每个老师把自己办公室关上以后,走廊冷冷清清。原建筑是由三个重复的标准客房单元组成的。改造后,由于教师办公室所需进深小于客房,就可以在中部挖出一个中心空间,形成一个通高的中庭(为室内引入自然采光与通风)和垂直方向上串联的一系列研讨室,并配以水吧。这些人文化的空间设计所产生的凝聚力也是这个新成立的学院最需要的。
The original building consisted of three repeating modular units. After renovation, each unit now features an atrium, which not only brings natural light and ventilation, but also activates the core spaces.
▼交流区,interaction zone© UK Studio
建筑原有的3.2米层高内装下风管和喷淋管已非常勉强,它们也没法暴露,因为这在低层高中会显得很混乱。好在每个单元都不大,中庭会使空间显得高大宽敞,不感到压抑。
The original 3.2-meter floor-to-ceiling height barely accommodated ductwork and sprinklers. With careful design, utilities are all hidden within such a limited dimension. Fortunately, each unit is equipped with the atrium that makes the corridors feel spacious rather than depressed.
▼研讨室,meeting room© UK Studio
10 屋顶平台
10 Rooftop Terrace
在以教师封闭办公室为主体的学院楼中,设计不仅致力于将交通空间转化为可社交场所,更将目光投向建筑最大的冗余空间资源——屋顶平台。在被“三山五园”规划约束的建控区内,五层高的卫健学院是个难得的可登高看西山和校园的观景点。原建筑高低错落的屋顶不仅仅适用于观景,也是学院有限的内部空间的扩充。未来布置好户外家具后,这里是学院有效面积的拓展,以及一个理想的交往空间。
▼户外空间设计分析,outdoor space design©都市实践
In an academic building dominated by closed door faculty offices, the circulation spaces are designed to foster social interaction. The building’s most underutilized space is its rooftop terrace. Located within the height-restricted “Three Mountains and Five Gardens” planning zone, the five-story School of Public Health offers a rare vantage point over the Western Hills and the campus. The original building’s staggered roof levels not only serve as viewing platforms but also expand the limited interior spaces of the school. Once outdoor furniture is added, the rooftop will become an ideal social hub.
▼四层至五层屋顶平台连接台阶,rooftop terrace© UK Studio
▼屋顶平台,rooftop terrace© UK Studio
11 浪漫水岸
11 Romantic Waterfront
经过三十余年的使用,面向万泉河的建筑后勤部分被不断的加建变成了一个迷宫,也使流经这个区域的河段变成了冷漠的厨房后场。随着拆违,亮出了一片空地,使卫健学院有机会献给校园一份宝贵的空间礼物。鉴于校园内整条河的使用长期处于被边缘化状态,卫健学院的建设不失为一个激活万泉河的触媒。因此,设计的第一直觉不是拆后留白,而是用一条饱满的廊子去填补后勤围墙拆掉后的空间,占领学院用地的全长,与河畔的一行绿柳并行,重新定义积极的滨水空间。这个多层次的小景观设计,会引爆未来整条线型公园的提质改造,使之不仅仅成为户外的学术角,也是恋爱湾。隔岸观来,廊子犹如一个画框,把后面的休憩空间勾勒了出来,成为校园浪漫的打卡点。为了拓展这个空间的丰富性,室外消防梯把人流引向二层的会议室休息平台,并将之作为开放的公共场所。廊子的顶棚是用“人”字形的遮阳打孔板覆盖的,这个元素又延展为面向步道的室内咖啡厅的吊顶,使内外一体化。
Over the span of thirty years, the service areas along the Wan-Quan River has become a maze, leaving the riverfront cold and utilitarian. Removing these structures revealed an open area, offering the VSPH an opportunity to revitalize the river’s edge. Instead of leaving it vacant, a generous corridor was introduced along the full length of the site, running parallel to a row of willows to redefine an active waterfront. This small-scale landscape intervention also initiates the future development of a linear riverbank park. The corridor frames the resting spaces behind it, while an external fire stair connects the river garden to the second-floor conference terrace. Its perforated canopy extends into the building as the riverside café ceiling, unifying interior and exterior spaces.
▼滨河廊道,riverside walkway© UK Studio
12 案例意义
12 Project Significance
在减量发展的前提下,这个设计用润物细无声的方式,把一个有着1980年代末建筑设计典型特征的校园建筑予以保留,并使之达到当下国际一流教研机构的标准,传达出通过空间和环境的营造可以让高校师生感到个人工作高尚且体面、单位集体有大家庭氛围的人文建筑理念。在技术创新上,成功保留砖混结构外墙的经验,将对目前城市更新中大量存在的同类问题有示范性参考价值。本工程也是TVMD惯容阻尼器在国内的首次应用,为推广此先进技术提供了宝贵的案例。同时,对于清华校园而言,这个建筑的整体改造又是个触媒,对西校门万泉河滨水带的未来更新起到了推动作用。
▼轴测图,axonometric© UK Studio
This design subtly preserves a late 1980s campus building while upgrading it to meet world-class research and teaching facility standards, reflecting a humanistic philosophy where faculty and students feel their work is dignified and their institution a true community. Technically, the retention of the brick exterior walls offers a valuable precedent for similar urban-renewal projects. The building also marks the first domestic use of the TVMD tuned mass damper, offering a key case study for this technology. Additionally, the renovation acts as a catalyst for revitalizing the Wan-Quan River waterfront in Tsinghua campus.
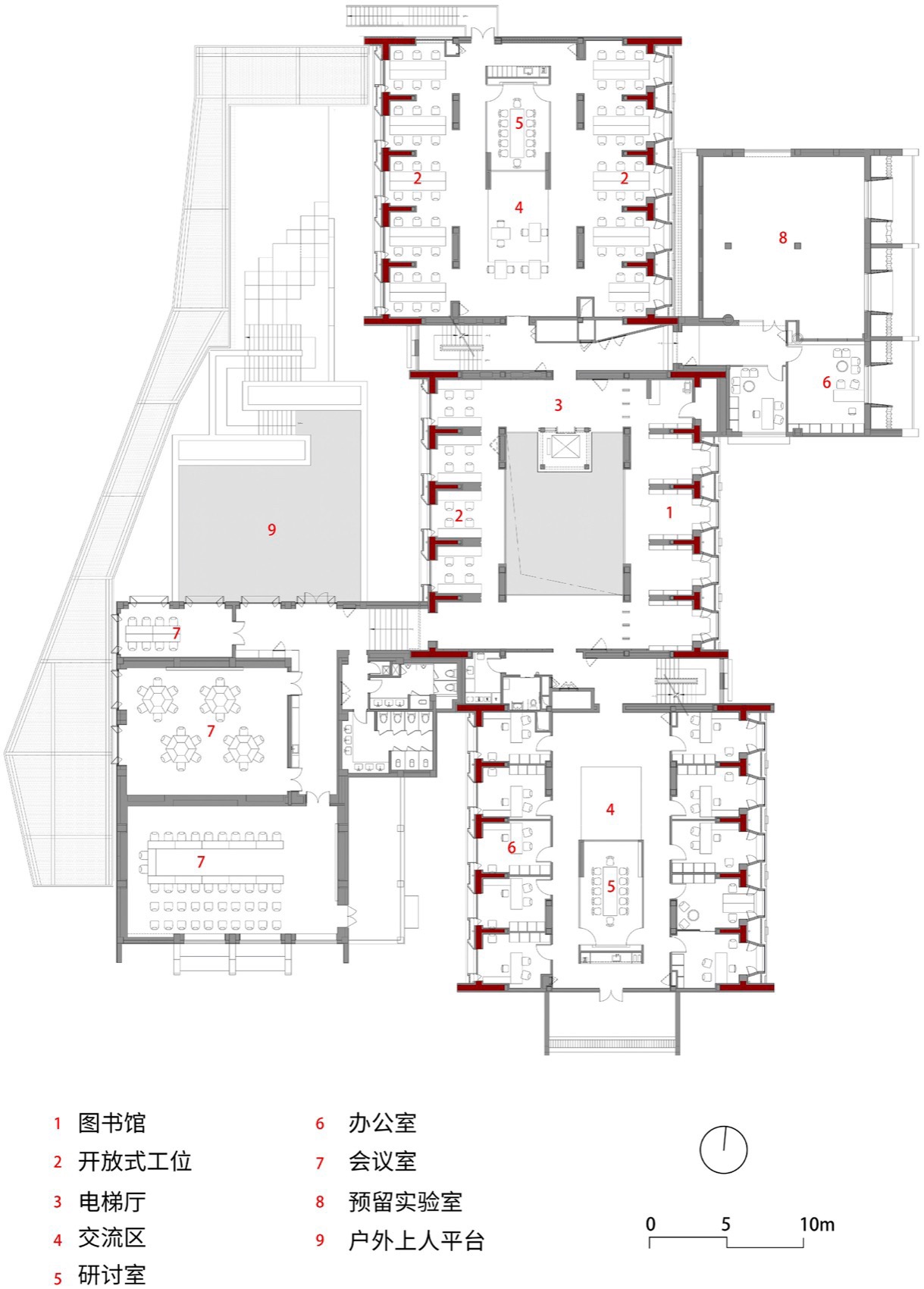
▼首层平面图,first floor plan© UK Studio
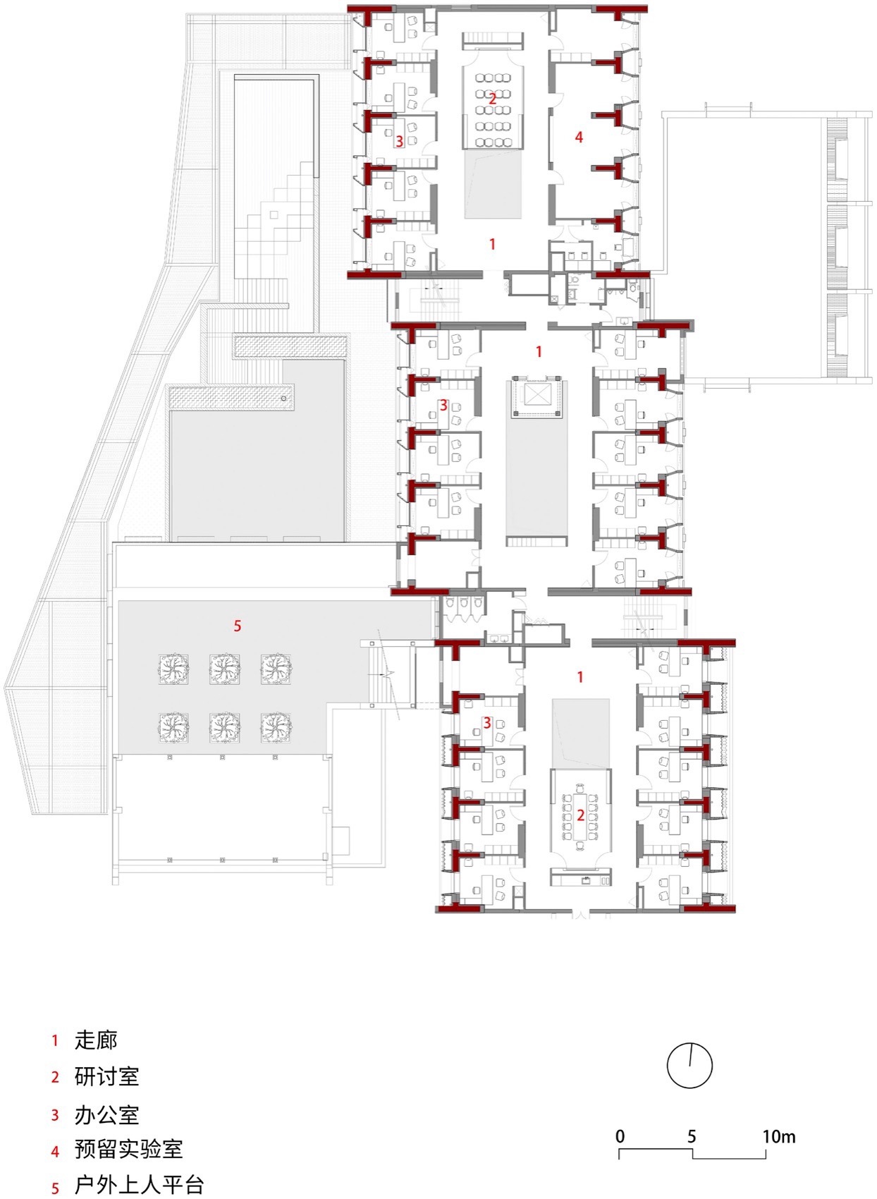
▼二层平面图,second floor plan© UK Studio
▼三层平面图,third floor plan© UK Studio
▼四层平面图,fourth floor plan © UK Studio
项目名称:清华大学万科公共卫生与健康学院
建设单位:清华大学
项目地点:北京市海淀区清华大学校区
用地面积:6152㎡
建筑面积:5950㎡
设计时间:2021—2023
建设时间:2023—2025
建筑、景观、室内设计:URBANUS都市实践建筑设计事务所
设计团队:王辉(主持建筑师)、王宇瞳(项目经理)| 投标阶段:韩吉喆、汪蕾、李晓烨 | 赵丛丛、左斯创(实习生)| 方案至施工图阶段:姚咏梅、张富军、王竞飞、赵萍、陈宇、柴秉江 等
合作设计:华诚博远工程技术集团有限公司(建筑施工图)| 崔力、黄一阳、李弢 等
华诚博远工程技术集团有限公司DS工作室(结构顾问)| 王立军、谭晋鹏、汪明、余文华
清华大学建筑学院张昕工作室(照明顾问)| 张昕、王丹、吴兆峰、张桢宏、蒋斌、赵晓波
清华大学美术学院空间智能与材料创新研究所(软装顾问)| 杨冬江、石硕、徐卜婷、刘清舟
清华大学建筑设计研究院有限公司建筑环境与节能设计研究分院(节能顾问)
幕华建设有限公司(幕墙顾问)
施工单位:北京市第三建筑工程有限公司
摄影:UKStudio
Project Name: Vanke School of Public Health, Tsinghua University
Client: Tsinghua University
Project Location: Tsinghua University, Haidian District, Beijing
Site Area: 6,152㎡
Floor Area: 5,950㎡
Design Period: 2021-2023
Construction Period: 2023-2025
Architecture & Landscape & Interior Design: URBANUS
Design Team: Wang Hui (Principal Architect), Wang Yutong (Project Manager) | Bidding Stage: Han Jizhe, Wang Lei, Li Xiaoye | Zhao Congcong, Zuo Sichuang (Intern) | SD to CD Phases: Yao Yongmei, Zhang Fujun, Wang Jingfei, Zhao Ping, Chen Yu, Chai Bingjiang, etc.
Collaborators:
Construction Documents: Huacheng Boyuan Engineering Technology Group Co., Ltd. | Cui Li, Huang Yiyang, Li Tao, etc.
Structural Consultant: DS Studio, Huacheng Boyuan Engineering Technology Group Co., Ltd. | Wang Lijun, Tan Jinpeng, Yu Wenhua
Lighting Consultant: X Studio, School of Architecture, Tsinghua University | Zhang Xin, Wang Dan, Wu Zhaofeng, Zhangzhenhong, Jiang Bin, Zhao Xiaobo
FF&E Consultant: Institute of Spatial Intelligence and Material Innovation, Academy of Arts & Design, Tsinghua University | Yang Dongjiang, Shi Shuo, Xu Buting, Liu Qingzhou
Energy Efficiency Consultant: Architectural Design & Research Institute of Tsinghua University Co., Ltd
Curtain Wall Consultant: Muhua Construction Co., Ltd.
General Contractor: Beijing Third Construction Engineering Co., Ltd.
Photographer: UKStudio
客服
消息
收藏
下载
最近




















































