查看完整案例

收藏

下载
世界一美しい調剤薬局の空間デザイン・建築設計(ゴダイ薬局御国野店)
建築設計 KTXアーキラボ
CLIENT DATA
顧客:クイーンドール
業種:調剤薬局
工事種別:新築工事
工期:約3か月
坪数:147.68㎡(45坪)
所在地:兵庫県姫路市御国野町国分寺153-5
TEL:079-253-5730
営業時間:9:00~18:00
定休日:日曜日・木曜午後
WEB:A Cutting Edge Pharmacy as a New Landmark
調剤薬局新築計画
消費者が調剤薬局に求めるものの本質は何か
総合病院に隣接する調剤薬局の新築計画でした。商環境を設計する際、「その施設がどのようなプロセスで消費者に選ばれるのか」これを読み解くことが設計のスタート地点となります。地理的要件を除けば、数ある薬局から選ばれる薬局とはどのようなものなのか、その答えは消費者が調剤薬局に求めるものの本質は何か、という考察の先にあります。
人が医療に求めている「癒し」とは
調剤薬局を訪れる目的は薬を買うことです。つまり消費者は病気や傷に対する「癒し」を求めて薬局を訪れます。医療関係機関の設計において、度々話題に上るキーワードが「癒し」です。「癒し」といえば「自然」、室内に植栽を置きしましょう、壁に木を使いましょう、というような自然を生かした癒しへと傾きがちです。それも確かに癒しの一要素ですが、人が医療に求めている「癒し」とは、本来違うベクトルの先にあるものと私たちは捉えています。
CG
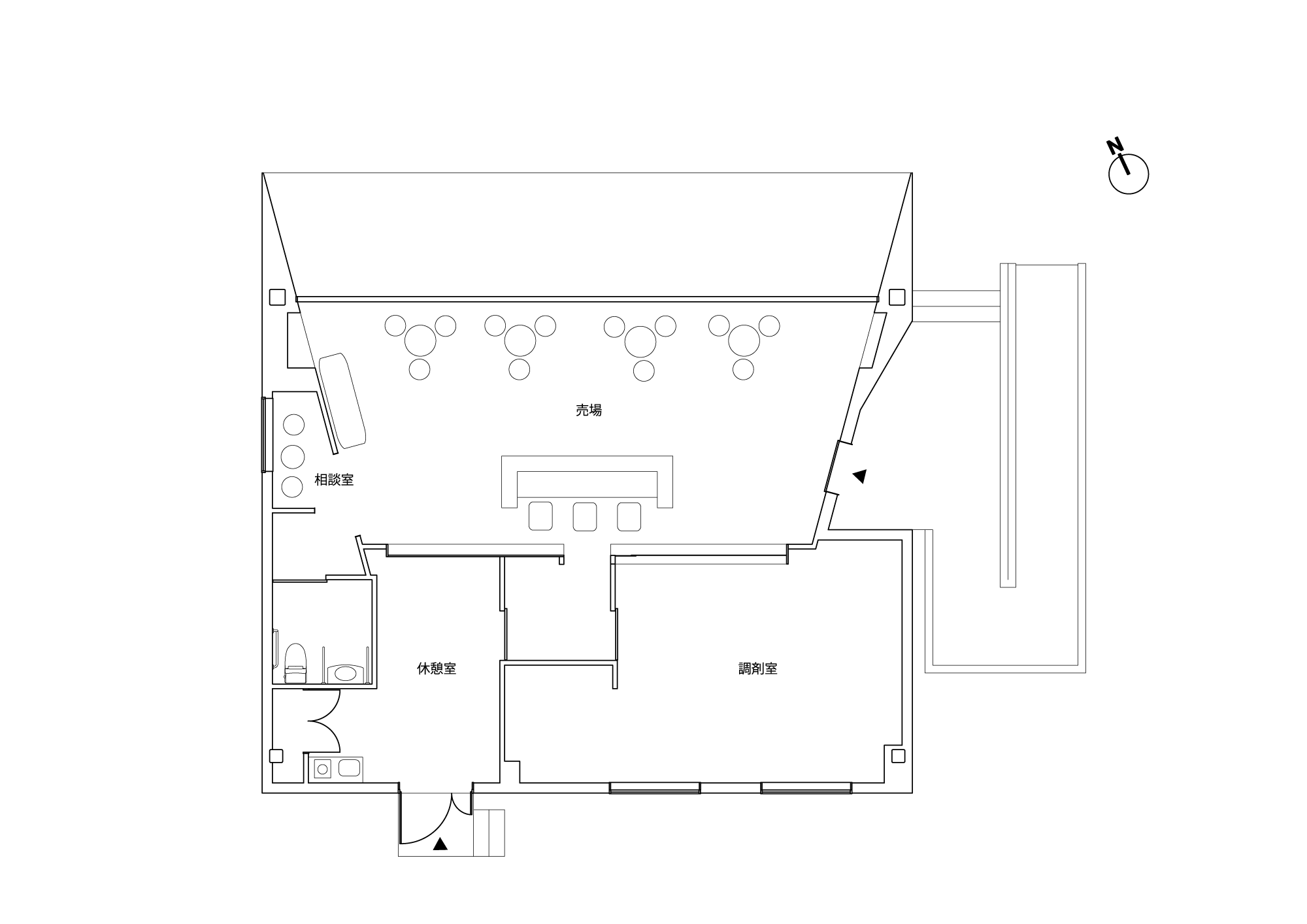
Plan
「最先端の高度な医療」をイメージさせる Section
医薬品を提供するプロセス
また、医薬品を提供するプロセスについても提案しています。従来の処方箋薬局は、客が処方箋を受付で手渡し、薬剤師が調剤し、カウンターに客を呼び出して説明と共に薬を渡します。しかし、ここへ来る客の大多数は隣接する病院から来る患者です。ここでは病気を患って来られる患者の体調を鑑みたオペレーションとして、席に座って待つ患者のもとへスタッフが移動し、薬の説明をするというオペレーションを提案しました。ささいなオペレーションの差が患者の潜在意識に「他の薬局とは違う」というイメージを与えてくれます。
on Construction
Photography
AWARDS
World Architecture Festival 2017
International Architecture Awards
DESIGN FOR ASIA AWARDS2017 BRONZE AWARD
JCD DESIGN AWARDS 2017 BEST100
GOOD DESIGN AWARD WINNER (AUS)
iF DESIGN AWARD 2018
A&D Trophy Awards 2017
Interior Design Best of Year Honoree
GOOD DESIGN USA
APIDA 2017 Shopping Space Category Winner
SPARK2017 GOLD AWARDS WINNER
IIDA BEST OF ASIA PACIFIC DESIGN AWARD 2017
AMERICAN ARCHITECTURE PRIZE
Red Dot Design Award
ICONIC AWARD Winner
A’DESIGN AWARD 2017
IDEA International Design Excellence Awards’17
THE PLAN AWARD
LIXIL STORE FRONT CONTEST VIDEO
建築界のワールドカップ WAF2017、今年はドイツで行われました。当事務所は建築部門、空間デザイン部門共に決勝に進出し、ベルリンにてプレゼンを行いました。
WAF商業建築部門
INSIDE商業空間デザイン部門
サンテレビ情報スタジアム4時キャッチ MEDIA
中国C-IDEA 年鑑
ロシアEurasian Prize年鑑
FRAME web
CABLE TV「三関王」
DESIGN INTERVIEWS
SUN TV 「4時!キャッチ」
TILE DESIGN BOOK
designboom
archdaily FRAME website
contract magazine
Hospitality Design Magazine
architektur FACHMAGAZIN
Architizer
ArchDaily
designboom
Vies de Villes
Kobe Newspaper
FRAME
JDN JAPAN DESIGN NET
VIEWPOINT MAGAZINE HOLLAND
SHOTEN KENCHIKU No.2017.5
客服
消息
收藏
下载
最近


































































