查看完整案例

收藏

下载
Hotel Concorde (today Sofitel Hotel), Berlin
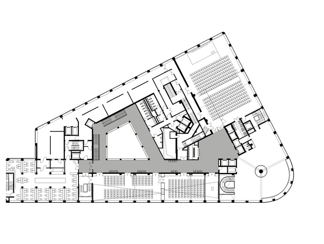
The task was to design a five star plus hotel for a site in Berlin at the junction of Augsburger Straße at Joachimstaler Straße, very close to the Kurfüstendamm. The new building should have 311 hotel rooms and the usual hotel type of rooms for conferences, banquets, a bar and a restaurant. There should also be space for non-hotel operations, such as shops, a spa, six stories of rental offices and apartments.
For an urban context, the site has several contradictory qualities. On the one hand, the height of most of the nearby buildings and blocks is limited to the traditional 22.5 meters; on the other hand, the buildings refer to the Joachimstaler Platz, which is the site of a few very high solitaires, the Allianz building, the Swissôtel and the Victoria Areal. The exterior of the new building brings this discrepancy into a compositional balance: It takes up the old building height and the block configuration, of which it considers itself a part, and ends at the building point symmetrically, giving the building its own self-referential dimension and independence. The work has a sculptural dynamic all of its own, developed with this corset, the corset of the block, and due to the height of the other buildings.
The façade is divided into an even rhythm – this underscores the sculptural effect of the building’s mass. They perform as contour lines the profiled horizontal bands around the building. The conventional principle of a building front and back no longer exists. Inside of the building the interlinking of the functions is picked out as a central theme: On the one hand, the main functional and public rooms are grouped around a central space, symmetrically, clearly defined in their design; on the other hand the individual areas merge into one another, so that the building can be perceived as a whole. The functional varieties within the building are subordinate to the exterior, which is aimed at projecting a unified appearance.
Architect : Jan Kleihues
Location : Augsburger Straße 41, 10789 Berlin
Client : Grothe Immobilien Projektierungs KG
Rooms : 311
Type of use: Hotel, Wellness, Retail, Gastronomy, Office, Housing
Service Phases : Lph 1-8 ; Building construction and interior design
Realization : 2002 – 2005
GFA : 45.000 m²
Costs : 67.5 Mio. €
客服
消息
收藏
下载
最近

























