查看完整案例

收藏

下载
Woonhuis Westzaan
In Westzaan hebben we dit bijzondere project gerealiseerd. Van ontwerp tot uitvoering is alles in eigen beheer en met eigen handen uitgevoerd. Het huis is klein van formaat maar groots in de indeling, elke ruimte is optimaal geordend en benut.
Als elk detail telt is dit de uitkomst, een huis als een meubel.
keuken volledig uit hout
erker vanuit binnen gezien
voorzijde houten erker met veel glas
zijkant houten erker tegen de bestaande bouw
plattegrond bestaande situatie
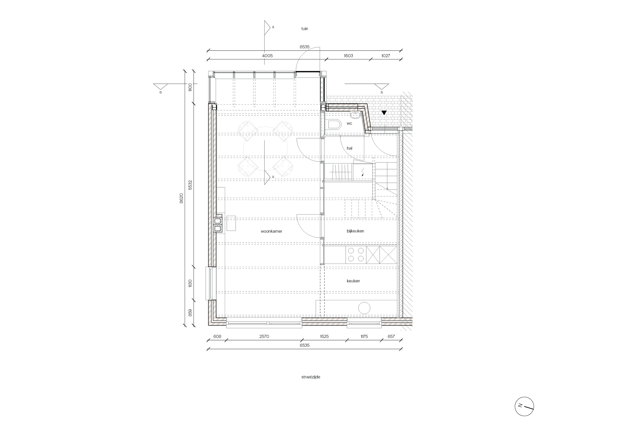
plattegrond nieuwe situatie
aanzicht bestaande situatie
aanzicht nieuwe situatie
meewerkende partijen
Timmerfabriek Cock Weijers
Koen de Koning houtbouw
NAP ingenieurs
客服
消息
收藏
下载
最近












