查看完整案例

收藏

下载
Floating Lights | Urban Penthouse
Year of construction 2023
Total Floor Area 70 m2
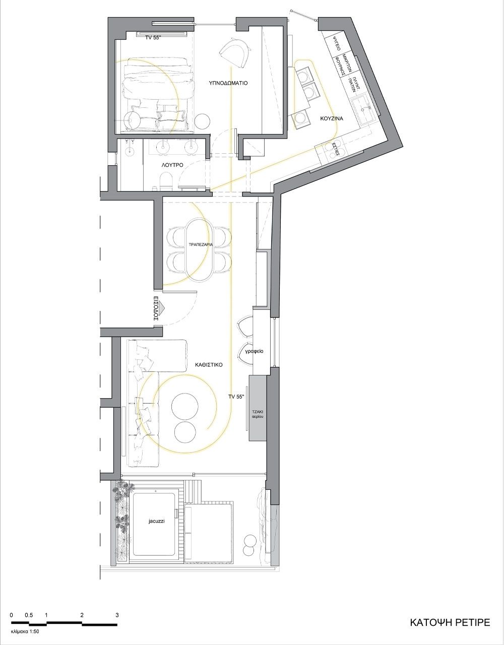
The “Floating Lights” project is a 70m2 8th-floor penthouse apartment located in Metaxourgeio, at the heart of Athens.
Our team took on the interior design, project management, construction and supervision of the project. The design process lasted 1 month and the construction phase 4 months. Emphasis was placed on the faithful application of the interior design study, with special attention to the choice of materials and the impeccable execution of the work.
Design-wise, we focused on creating a minimal, user-friendly space with urban and natural elements, perfect for short-term rental. A key aim was to highlight and bring out the view. The apartment offers unique views towards the Acropolis and Lycabettus hill from the living room and the main balcony.
The design concept was based around lighting: the dominant product is the "Light Tube," which creates optical escapes towards the view, giving the space a sense of flow.
The way the light tube evolves across the space serves as a functional connection between the various rooms and creates several focal points.
In the living room and dining room, for example, the light tube casts circles of light on the ceiling, adding an elegant and modern touch. The living room becomes the center of the apartment, with the light tubes gathering in a circle on the ceiling. In contrast, in traffic areas such as corridors, the lighting follows a straight line, providing uniform illumination.
The use of light tubes creates impressive lighting effects in all areas, improving the apartment’s aesthetics and functionality. The shapes and light qualities highlight the materials and make the design unique.
Our intention was to balance the urban element with colors and materials inspired by nature, so that the space exudes a sense of relaxation and harmony.
For that purpose, we chose materials such as wood and stone as well as natural textures, which create a harmonious combination. Moreover, we used natural shades of brown, beige and green.
The space was designed around curves and lines that create an interesting dynamic, and the lighting highlights the materials and textures used. The purpose was to create a comfortable and relaxing space for the visitors, in juxtaposition with the intensity of the urban center where the apartment is located. The use of natural materials is a more sustainable and environmentally friendly choice.
In this way, the design brings out the beauty and serenity that nature can offer, even within an urban environment.
A typical example is a work of art in the living room, which is a unique 3D representation of land levels. The work keeps to a modern aesthetic that aligns harmoniously with the rest of the style of the space.
We also included a steam fireplace in the living room, which enhances the earthy element and provides a sense of warmth. The fact that it is safe to use makes it an even more attractive choice.
The dining area is clearly defined by walls painted in a shade of green, which adds a fresh touch. Moreover, the curved lighting fixture on the ceiling creates a pleasant atmosphere and illuminates the room in an even way.
The mirror in the dining area exudes elegance, reflecting the green and “merging” with the wall behind it, creating a uniform and harmonious effect.
The kitchen was painted in earthy tones and features wooden furniture and surfaces that contribute towards a natural, warm effect. The walls are decorated with plants that add a fresh and natural touch. Lighting is dominant in here as well, “moving” towards the other rooms via another light tube.
The entrance to the bedroom is flanked by mirrors, enhancing the sense of depth and creating an interesting effect. The linear light tube on the ceiling enters the space visually from the living room and curves above the bed.
The bedroom was designed with the aim of conveying a nest-like feeling, and this is further enhanced by the wooden platform on which the bed is situated and the earthy shade that extends from the wall to the ceiling. This approach creates a calm and relaxing atmosphere, making it an ideal place to rest.
The bathroom is designed around alternating materials, and this is evident in the stone-textured and green tiles in the shower. The round mirrors and the “free-style” light tube create a cohesion with the design of the rest of the space.
For the balcony, natural materials were used, the dominant one being wood; furthermore, the rock on the wall adds another dimension to the design. This is where you will also find the jacuzzi, an ideal spot for the visitors to relax while enjoying the magnificent view towards the Acropolis.
The criterion for choosing the materials for the project was their sustainability. The majority of the materials are environmentally friendly and have a low energy footprint.
Κάτοψη Διαμερίσματος
Living Room with view of the Acropolis
Special storage and office construction with view of Lycabettus
Dining area
Living room area
Living room and outdoor Jacuzzi area
Outdoor Living Room and Jacuzzi area
Outdoor Living Room and Jacuzzi area
Kitchen area
Bedroom area
Bedroom area
Bathroom area
Outdoor Area with special construction of Lounge and Jacuzzi
客服
消息
收藏
下载
最近
















