查看完整案例

收藏

下载
Icarus Apartment Complex
Year of study
2024
Total Floor Area
1800 m
2
Total Plot Area
707 m
2
This modern residential complex is located in Perama, Attica, which is an ideal location for families and professionals looking for a balanced quality of life.
Perama is just 4.5km from the port of Piraeus, while its shipyard is also home to Cosco’s headquarters and facilities.
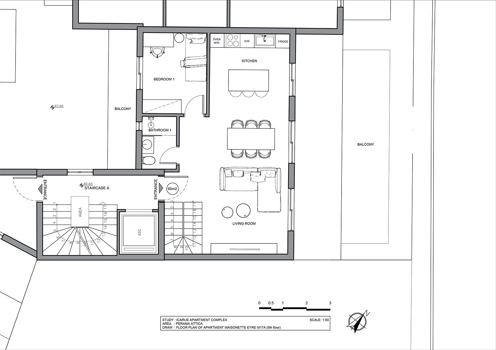
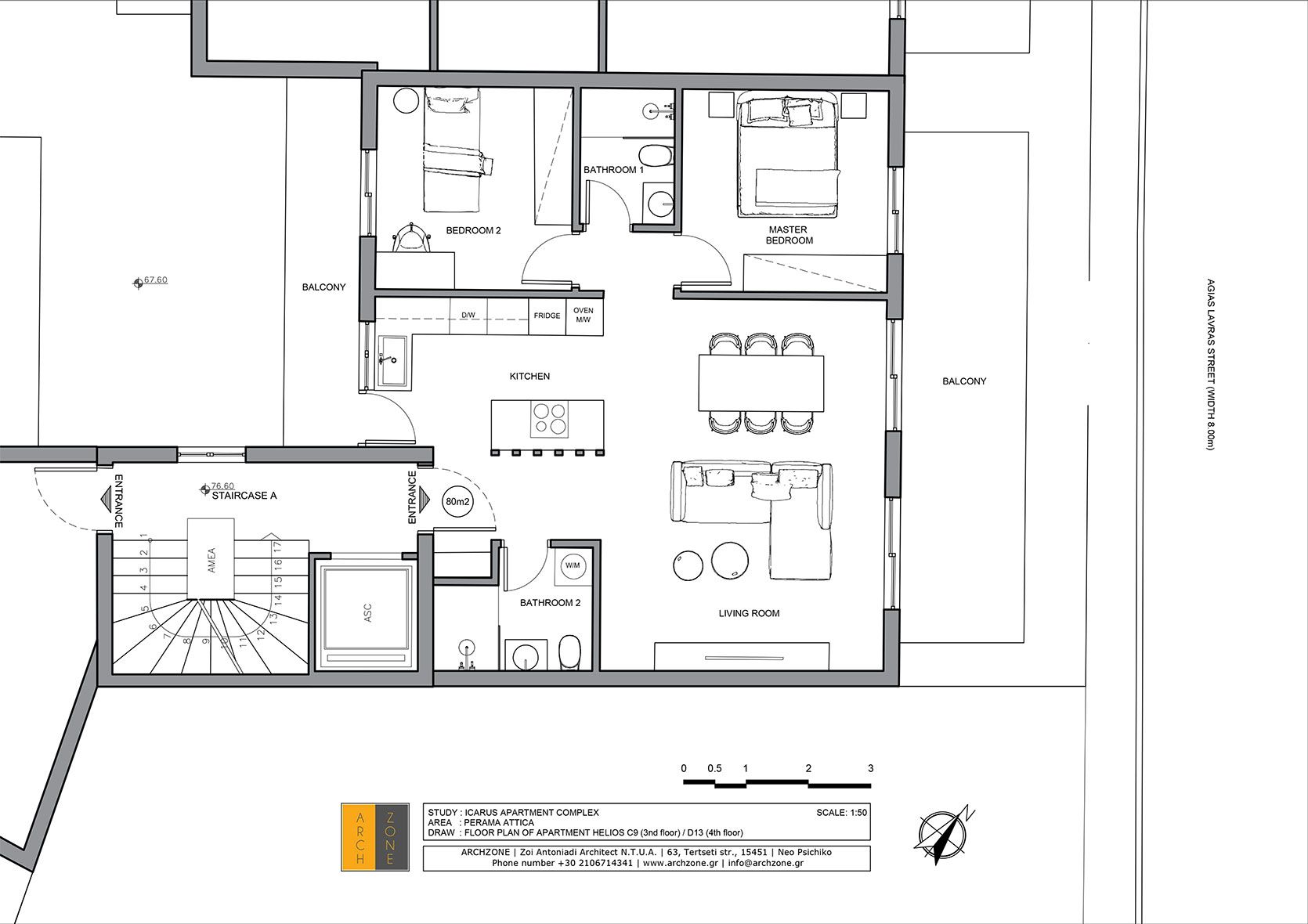
Icarus Apartment complex covers a total surface area of 1,800sq.m. and consists of 6 floors, pilotis and a basement.
It provides easy access, as it faces two streets and has two central staircases with a lift.
The 707-square-meter plot is within the urban planning scheme and has a facade facing two streets. Its distance from the sea and Perama town hall is just 1000 meters, making this location ideal for those who enjoy the nearby seaside life, but also the convenience of urban amenities.
The apartments are defined by their minimal aesthetics, combining simplicity with modern aesthetics, and creating cozy and functional spaces. Each house is designed with attention to detail, offering flexible and comfortable spaces, ideal for the modern lifestyle
The architectural and interior design of this project has been undertaken by our firm, ArchZone, which is also responsible for fully implementing construction of the project based on modern building methods.
Icarus Apartment Complex
Icarus Apartment Complex
Icarus Apartment Complex
Icarus Apartment Complex
Icarus Apartment Complex
Icarus Apartment Complex
Icarus Apartment Complex
Icarus Apartment Complex
Icarus Apartment Complex
Icarus Apartment Complex
Icarus Apartment Complex
Icarus Apartment Complex
Icarus Apartment Complex
Icarus Apartment Complex
Icarus Apartment Complex
Icarus Apartment Complex
Icarus Apartment Complex
Icarus Apartment Complex
客服
消息
收藏
下载
最近



















