查看完整案例

收藏

下载
Львівський міський крематорій
Громадський комплекс, Львів
Львівський міський крематорій
Дуже важкий емоційно, але надзвичайно цікавий проект наших архітекторів, який увійшов до шорт-листа цьогорічного конкурсу WAF – Крематорій на Голосковському кладовищі у місті Львів.
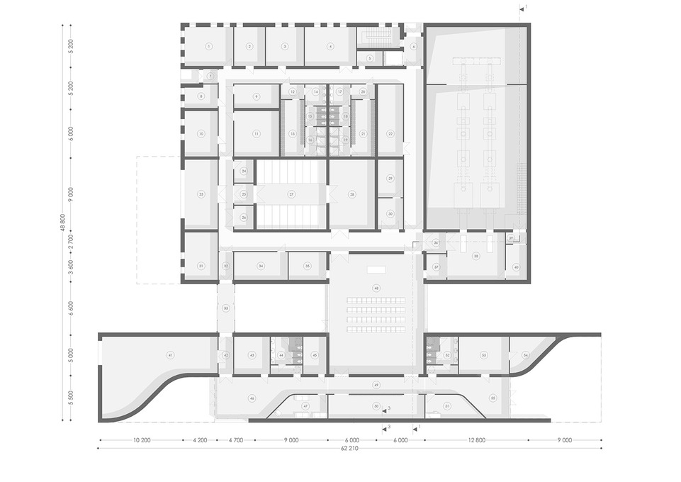
Монументального образу споруди досягнуто використанням простих форм і грубої фактури оздоблювальних матеріалів. Конструкція складається з чотирьох основних функціональних блоків різної висоти з різних матеріалів. Головною ідеєю архітектурно-планувального вирішення будівлі є організація залу останніх прощань як місця максимального напруження та останнього перетину живих людей з померлими.
Ритуальний зал поєднує в собі два різнофункціональні блоки, зокрема блок для відвідувачів крематорію та блок підготовки померлих, які перетинаються на місці останнього прощання. Лінія життя і лінія смерті були відображені в генплані та планувальних рішеннях. Ідея останнього перетину ліній життя і смерті є фундаментальною ідеєю, яка вплинула на формування планувальних рішень.
В інтер’єрі завдяки градієнтному переходу в оздобленні стін душевна напруга поступово спадає в напрямку руху. Велика кількість світла на виході посилює ефект емоційної розрядки. Світлове рішення внутрішніх просторів динамічно змінюється і супроводжує відвідувачів на всьому шляху. Інтер'єр залу останнього прощання є найбільш освітленим приміщенням крематорію, світлове оздоблення стін і підлоги допомагає збалансувати емоційний стан під час церемонії, а для психологічного розвантаження передбачена організація внутрішнього дворика з садом. З цієїю ж метою на виході влаштований декоративний басейн.
1843
м
2
Площа
2021
Таймлайн
Концепція
Статус
客服
消息
收藏
下载
最近












