查看完整案例

收藏

下载
Проект мансардного дома с террасой, балконом и навесом «КМ-49»
189.6 м²
90.9 м²
Планы этажей
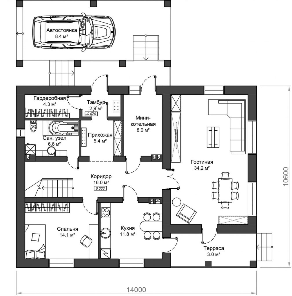
1 этаж
мансардный этаж
Фасады дома
Слева
Спереди
Сзади
Справа
Характеристики
Общая площадь
Площадь застройки
Габариты
Этажность
С/у и ванных
189.6 м²
194.9 м²
10.60x14.00
1
2
Конструкции
Тип фундамента
Наружные стены
Тип перекрытий
Кровля
сборный / монолитный ленточный
пеноблоки / газобетон + утеплитель
плиты перекрытия / деревянные балки
металлочерепица, гибкая черепица, ондулин или др.
Проект КМ-49
Архитектурные решения
Архитектурный проект - это стандартный комплект проектной документации, необходимый для согласования проекта дома в администрации района и получения разрешения на строительство дома на отведенном земельном участке
Полный проект дома включает в себя
Архитектурные решения
Конструктивные решения
Комплект чертежей, на основании которого ведется строительство дома. Содержит детальную информацию о технологии и этапах строительства дома, начиная от фундамента и заканчивая коньком кровли. Состоит из конструктивных чертежей, узлов и деталей, ведомостей и спецификаций материалов для закупки.
Инженерные сети
Включают разделы: водоснабжение и канализация, отопление и вентиляция, электроснабжение. Позволяют на этапе проектирования подобрать подходящие характеристики инженерного оборудования и рассчитать эффективные схемы прокладки коммуникаций.
Дополнительные изменения в проекте
Зеркальный вариант
Изменение наружных габаритов
Перепланировка внутри
Изменение материалов конструкций
Адаптация фундамента
Срок подготовки проекта: 2-3 дня
Бесплатная доставка РБ и РФ
客服
消息
收藏
下载
最近










