查看完整案例

收藏

下载
Résidence d’artiste du Domaine Perdu
mission études et chantier
type réhabilitation
maître d’ouvrage M. et Mme Lajoinie
maître d’œuvre CoCo architecture
date 2013-2015
surface 157m²
prix 210000€ HT
lieu Meyrals (24)
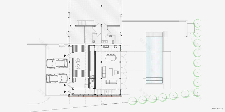
Le projet porte sur la création d’une résidence d’artiste dans un hangar du Domaine Perdu, un centre d’art privé installé à Meyrals en Dordogne.
La particularité du programme réside dans la flexibilité programmatique de cette résidence qui doit pouvoir être transformable en gite pour rentabiliser l’investissement et en galerie d’art contemporain pour compléter l’offre du domaine.
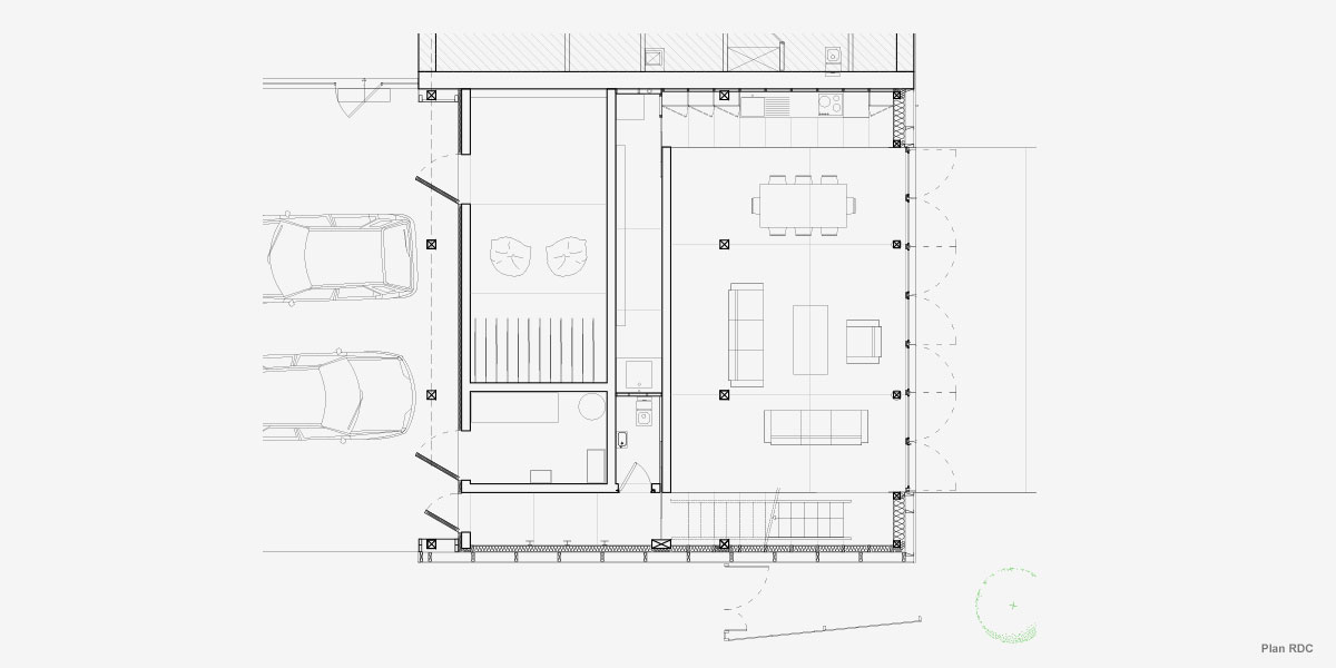
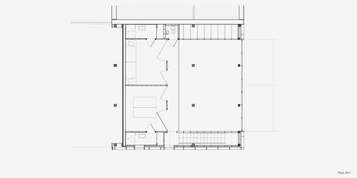
Inspiré par les performances de Gordon Matta-Clark, la proposition a consisté à intervenir sur le bâti à la manière d’une césure. Nous avons donc découpé le hangar en bois pour ouvrir une grande baie vers le paysage agricole. Une bande blanche, organise l’espace dans un pli, qui dessine les différentes fonctions depuis la piscine et la terrasse extérieures, en passant par la pièce principale au RDC, les chambres en mezzanine. Elle se termine en formant la casquette qui protège la baie d’un ensoleillement direct.
A l’intérieur, sur les côtés de cette bande, un agencement bois organise les parties techniques de la résidence: cuisine, escalier, salles d’eau et toilettes. Cet agencement est en châtaignier, un bois typique du pays.
CoCo architecture
Dordogne
2 rue Jean-Jacques Rousseau
F-24200 SARLAT LA CANEDA
France
Tel +33 (0)5 53 31 10 42
CoCo architecture
Aveyron
2 avenue de Sauveterre de Rouergue
F-12800 NAUCELLE
France
Tel +33 (0)5 65 46 11 35
CoCo architecture
Drôme
16 rue des Alpes
F-26400 CREST
France
Tel +33 (0)4 75 56 54 03
CoCo architecture
Normandie
120 Bd Amiral Mouchez
F-76600 LE HAVRE
France
Tel +33 (0)7 50 35 07 17
CoCo architecture
Autriche
Lenaugasse 2-4
A-1080 VIENNE
Autriche
Tel +43 (0)1 913 7621
客服
消息
收藏
下载
最近



























