查看完整案例

收藏

下载
1/7
more
2/7
more
3/7
more
4/7
more
5/7
more
6/7
more
7/7
more
Bismarck Quarter, Würzburg
Bismarck quarter, Würzburg – 2017
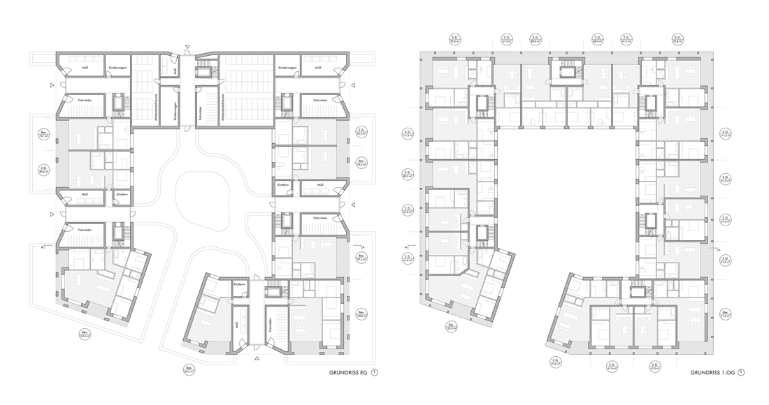
In the immediate vicinity of Würzburg Central Station, a new district with urban character is to be developed. The competition proposal formulates a structure of irregularly shaped blocks whose size and geometry are related to the medieval urban structure. The chosen ratio of building mass to outdoor space achieves a balance between the desired densification and good lighting – especially for the apartments. The sides of the block which are oriented to the west are divided into segments in order to bring the scale of the built volumes into line with the immediately adjacent existing buildings. In addition, the separation between courtyard and exterior space has thus been removed, creating a multitude of exciting visual relationships.
Following the spatial structure of Oberer and Unterer Markt as well as Marienplatz in the center of Würzburg, a series of public spaces with different proportions and characteristics are proposed for the new district. Two of the spaces are designed as three-sided urban squares. Toward the open fourth side, the square is interlocked with the district – in the south with Ringpark and in the north with the Würzburger Stein.
The office tower is located in the center of the urban develpment, similar to the position of Marienkapelle in the city, and has the function of a fulcrum that leads from one space to another. This mode of inclusion of the tower into the ensemble counteracts the typical dominance of tall buildings. Along the southern property boundary, the spatial framing of the Ringpark is strengthened by the continuous street wall of the facades. The existing post office tower is also integrated into the ensemble by adjoining a new hotel building and thus forming a block together with it. At the same time, however, its effect remains preserved as a solitary volume.
Architects: Jan Kleihues with Johannes Kressner
Client: beethovengruppe bismarckquartier GmbH
GFA: 82.480 m²
Type of use: Residential, office, hotel, retail, gastronomy, day care
Competition: 2018
客服
消息
收藏
下载
最近









